Bénéficiez des services de nos partenaires locaux soigneusement sélectionnés
pour vous accompagner dans votre parcours d'achat immobilier

Appartement 43m² à clermont-ferrand

— Clermont-Ferrand 63000 —
210 977 €
43 m²
2 pièces

Nos partenaires locaux
Iad France - Mathieu Pallix vous propose : T2 rénové - 42,90 m² - Hyper-centre Clermont-Ferrand - Résidence de la Cathédrale

Immeuble ancien entièrement réhabilité - Petite copropriété de 11 logements
Prestations modernes et rénovation complète
Programme éligible à la Loi Denormandie (réduction d'impôt possible) et porté par NOVIMMO, spécialiste de la rénovation de bâtiments anciens en centre-ville.
Adresse : 32 rue des gras, Clermont-Ferrand

* Points forts
Adresse premium en plein cOEur du centre historique
Rénovation complète d'un immeuble ancien
Prestations modernes et matériaux qualitatifs
Grande pièce de vie de plus de 25 m²
DPE minimum visé : classe D
Idéal pour une résidence principale ou un investissement locatif

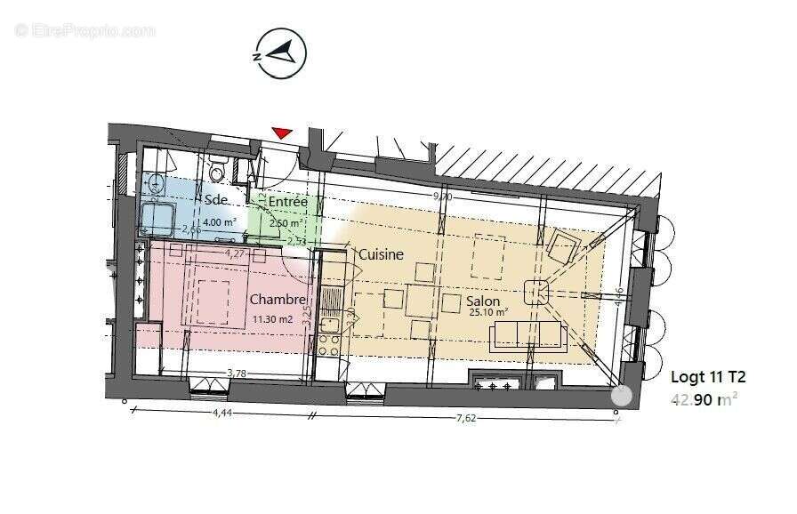
* Description du logement (Logt 11 - T2 - 42,90 m²)
Typologie : T2
Surface totale : 42,90 m²
Surface utile : 60,00 m² *

* Répartition des surfaces selon plan du logement :
Entrée : 2,50 m²
Séjour / Cuisine : 25,10 m²
Salle d'eau : 4,00 m²
Chambre : 11,30 m²

* Prestations incluses :
~ Isolation et structure:
Menuiseries bois à double vitrage
Volets bois rénovés ou neufs selon autorisation
Isolation thermique intérieure et isolation de la toiture
Isolation acoustique entre logements

~ Intérieur
Parquet stratifié ou parquet massif vitrifié selon les zones
Porte palière sécurisée à serrure trois points
Placard aménagé selon configuration
Radiateurs électriques à détection de présence
Production d'eau chaude par cumulus extra-plat
Ventilation mécanique contrôlée
Installation électrique conforme à la norme NF C15-100

~ Cuisine équipée
Meubles hauts et bas
Four, plaques de cuisson et hotte
Espace pour réfrigérateur et lave-linge selon plan

~ Salle d'eau
Bac à douche avec paroi
Meuble vasque avec miroir et éclairage intégré
Radiateur sèche-serviette

* Eligibilité Loi Denormandie :
>Réduction d'impôt jusqu'à 21 % selon durée d'engagement
>Engagement locatif possible de 6 à 12 ans
>Programme situé en centre-ville, dans une zone à forte demande locative
>Rénovation complète avec amélioration énergétique

* Localisation :
À une minute de la cathédrale
Tram accessible à pied (200m)
Gare à environ 7 minutes
Quartier historique recherché avec commerces et restaurants accessibles à pied

Contactez-moi pour plus d'informations

Avis de valeur de votre bien offert, confidentiel et sans engagement

La presente annonce immobiliere vise 2 lots situés dans une copropriété de 22 lots au total et ne faisant l'objet d'aucune procédure en cours citée à l'article L. 721-1 du code de la construction et de l'habitation. Montant moyen mensuel de charges déclaré par le vendeur : 25¤ par mois (soit 300 ¤ annuel). Honoraires d'agence à la charge du vendeur.
Bien non soumis au DPE. Les informations sur les risques auxquels ce bien est exposé, y compris l'obligation légale de débroussaillement, sont disponibles sur le site Géorisques : http://www.georisques.gouv.fr.
La présente annonce immobilière a été rédigée sous la responsabilité éditoriale de M Mathieu Pallix mandataire indépendant en immobilier (sans détention de fonds), agent commercial de la SAS I@D France immatriculé au RSAC de CLERMONT-FERRAND sous le numéro 931885289, titulaire de la carte de démarchage immobilier pour le compte de la société I@D France SAS.
Informations LOI ALUR :
Soumis au régime de copropriété.
Nombre de lots : 22.
Quote part annuelle(moyenne) : 300 euros.
Honoraires charge vendeur. (gedeon_6727_32276070)
Voir plus

Référence: 1902220
Bien en copropriété. Nombre de lots : 22. Charges de copropriété : 300 €.
Honoraires à la charge du vendeur.

Prêt immobilier

Vous souhaitez connaître votre capacité d’emprunt et trouver le meilleur crédit immobilier ?
Réaliser une simulation gratuite

Photo 1 - Appartement à CLERMONT-FERRAND
Photo 1
Photo 2 - Appartement à CLERMONT-FERRAND
Photo 2
Photo 3 - Appartement à CLERMONT-FERRAND
Photo 3
Photo 4 - Appartement à CLERMONT-FERRAND
Photo 4
Photo 5 - Appartement à CLERMONT-FERRAND
Photo 5
Photo 6 - Appartement à CLERMONT-FERRAND
Photo 6
Photo 7 - Appartement à CLERMONT-FERRAND
Photo 7
Photo 8 - Appartement à CLERMONT-FERRAND
Photo 8
Photo 9 - Appartement à CLERMONT-FERRAND
Photo 9
Ce site est protégé par reCAPTCHA la Politique de confidentialité et les Conditions d’utilisation de Google s’appliquent.
Obtenir un prêt immobilier au meilleur taux ?

En poursuivant votre navigation sans modifier vos paramètres, vous acceptez l'utilisation de cookies susceptibles de réaliser des statistiques de visite. Cliquez ici pour plus d'informations