Maison bénaménil 54450

— Benamenil 54450 —
135 000 €
250 m² / 1 300 m²
15 pièces
parkingbalcon/terrassejardin

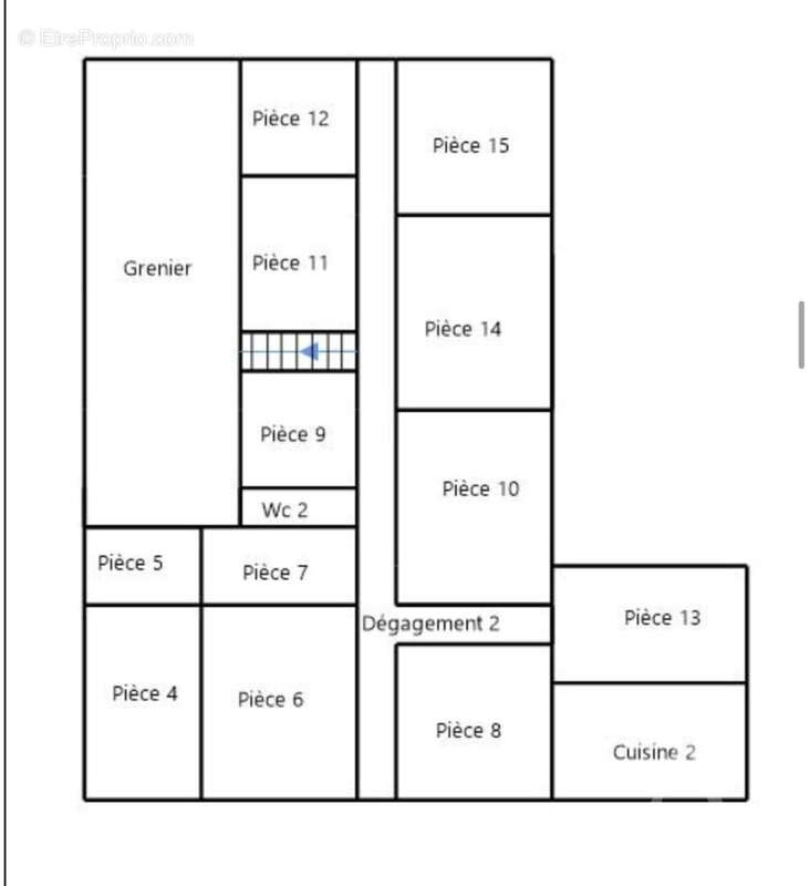
Maison à vendre en Exclusivité chez l'Adresse A découvrir sur notre site web ou en agence ! Présentation du Projet 3D Un aménagement d'intérieur innovant pour le salon/salle à manger, conçu de manière non contractuelle par un Architecte d'intérieur, illustrant le potentiel optimal de l'espace. Nous vous présentons une maison spacieuse de 15 pièces, offrant un cadre de vie privilégié et de nombreuses possibilités d'aménagement. 2 cuisines aménagées, une cuisine au rez-de-chaussée, idéale pour les repas en famille. Une seconde cuisine à l'étage pour un agencement fonctionnel. 2 salles d'eau, une salle d'eau au rez-de-chaussée et une à l'étage, assurant confort et praticité. 2 chambres au rez-de-chaussée avec un accès direct au jardin, parfait pour profiter des extérieurs. Accès au garage et dépendances Étage : Composé de plusieurs chambres et dressings, offrant des espaces privés et de rangement optimisé. Espace de rangement et de stationnement, avec la possibilité de transformation selon vos besoins. Note : Des travaux de rénovation sont à prévoir, permettant de personnaliser ce bien selon vos goûts. Cette propriété représente une opportunité idéale pour les investisseurs souhaitant créer 2 appartements d'environ 100 m² chacun, optimisant le potentiel locatif. Deux accès indépendants : Facilite l'accès pour les véhicules. Idéal pour une activité professionnelle indépendante ou pour la location. Le bien est idéalement situé dans un environnement calme et verdoyant, propice à une vie sereine. Terrain constructible de 1000 m² Offrant de multiples possibilités d'aménagement, que ce soit pour un projet personnel ou pour une exploitation locative. Vous souhaitez en savoir plus ou planifier une visite ? Contactez-nous dès maintenant pour obtenir le dossier complet et organiser une visite privée en exclusivité. Madame Julie HUMBERT (EI) Agence l'Adresse Tél : [Coordonnées masquées] (RSAC) Réf. 2627 Votre futur chez-vous vous attend !
Voir plus

Référence: 1024
Honoraires à la charge du vendeur.
DPE
A
B
C
D
E
F
G
GES
A
B
C
D
E
F
G

Prêt immobilier

Vous souhaitez connaître votre capacité d’emprunt et trouver le meilleur crédit immobilier ?
Réaliser une simulation gratuite

Maison à BENAMENIL
Maison à BENAMENIL
Maison à BENAMENIL
Maison à BENAMENIL
Maison à BENAMENIL
Maison à BENAMENIL
Maison à BENAMENIL
Maison à BENAMENIL
Maison à BENAMENIL
Maison à BENAMENIL
Maison à BENAMENIL
Maison à BENAMENIL
Maison à BENAMENIL
Maison à BENAMENIL
Maison à BENAMENIL
Maison à BENAMENIL
Maison à BENAMENIL
Maison à BENAMENIL
Ce site est protégé par reCAPTCHA la Politique de confidentialité et les Conditions d’utilisation de Google s’appliquent.
Obtenir un prêt immobilier au meilleur taux ?

En poursuivant votre navigation sans modifier vos paramètres, vous acceptez l'utilisation de cookies susceptibles de réaliser des statistiques de visite. Cliquez ici pour plus d'informations