Appartement lumineux de 34,6m² - boulevard saint-michel, paris - station luxembourg - cluny la sorbonne

— Paris-5e 75005 —
450 000 €
35 m²
1 pièce

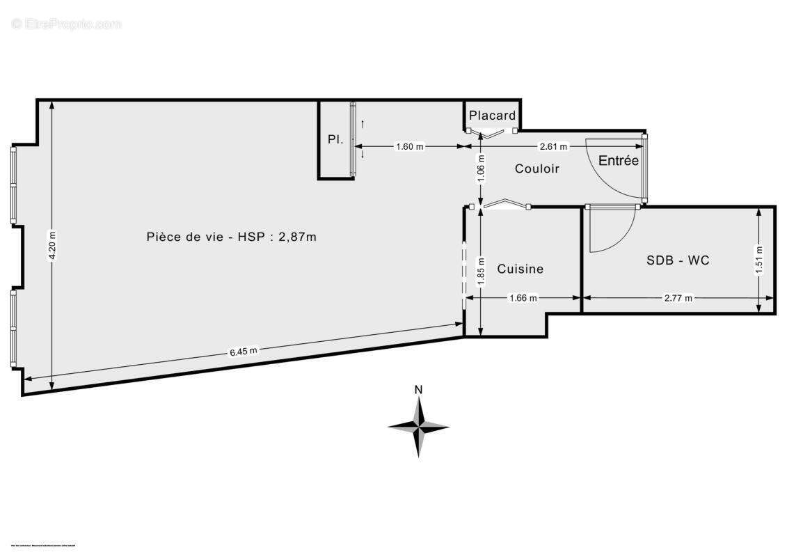
Situé au troisième étage d'un immeuble du Boulevard Saint-Michel à Paris, cet appartement d'une pièce offre une surface Carrez de 34,6 m².

Exposé à l'ouest, il bénéficie d'une luminosité remarquable grâce à ses deux grandes fenêtres et un vis-à-vis éloigné. Chauffé par un système collectif au gaz, l'appartement est à rénover entièrement et dispose d'une belle hauteur sous plafond. La cuisine est actuellement semi-ouverte sur le séjour.

L'immeuble lui-même est bien maintenu avec des parties communes en bon état et un local à vélos est à disposition des résidents. Il n'y a pas d'ascenseur ni de gardien. La taxe foncière n'est pas précisée, et les charges de copropriété s'élèvent à 650 € par trimestre.

Localisation du bien:

Le quartier Sorbonne, où se situe l'appartement, regorge de commodités. À moins de 500 mètres, vous trouverez des commerces variés, des restaurants ainsi que des lieux culturels tels que le Musée de Cluny. Pour les espaces verts, le Jardin du Luxembourg est à proximité, offrant un cadre agréable pour les moments de détente. En termes de transports, la station de métro Cluny - La Sorbonne (ligne 10) est accessible en environ 5 minutes à pied, tout comme le RER B à la station Luxembourg.

Le bien est soumis au statut de copropriété.

Planifiez facilement votre visite en choisissant le créneau qui vous convient depuis le site d'Hosman.

Hosman s'efforce de réinventer l'agence immobilière en offrant un service innovant et transparent aux acheteurs et aux vendeurs. Nos frais d'agence sont de 10 900 euros fixes à la charge du vendeur.

Si vous êtes un professionnel de l'immobilier (agent, mandataire ou chasseur immobilier), sachez que toutes les annonces Hosman sont ouvertes à la collaboration. N'hésitez pas à nous contacter pour en discuter.
Voir plus

Référence: 7f7f82
Bien en copropriété. Charges de copropriété : 216 €.
Honoraires à la charge du vendeur.
DPE
A
B
C
D
E
F
G
GES
A
B
C
D
E
F
G

Prêt immobilier

Vous souhaitez connaître votre capacité d’emprunt et trouver le meilleur crédit immobilier ?
Réaliser une simulation gratuite

Appartement à PARIS-5E
Appartement à PARIS-5E
Appartement à PARIS-5E
Appartement à PARIS-5E
Appartement à PARIS-5E
Ce site est protégé par reCAPTCHA la Politique de confidentialité et les Conditions d’utilisation de Google s’appliquent.
Obtenir un prêt immobilier au meilleur taux ?

En poursuivant votre navigation sans modifier vos paramètres, vous acceptez l'utilisation de cookies susceptibles de réaliser des statistiques de visite. Cliquez ici pour plus d'informations