Bénéficiez des services de nos partenaires locaux soigneusement sélectionnés
pour vous accompagner dans votre parcours d'achat immobilier

Maison 140 m2

— La Tour-De-Salvagny 69890 —
595 000 €
140 m² / 332 m²
5 pièces

Nos partenaires locaux
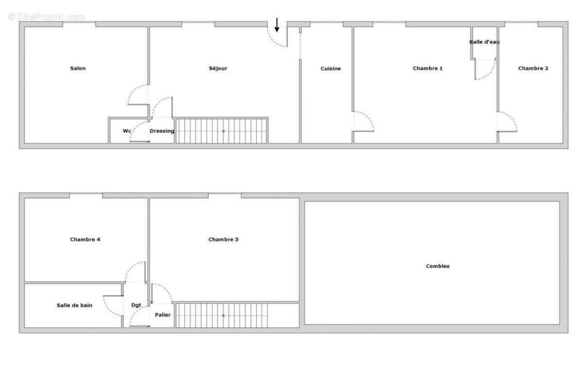
Coup de coeur assuré pour cette maison atypique et pleine de charme de 140M2 habitables, située à 5mn du centre de la Tour-De-Salvagny.
Le RDC se compose d'une vaste pièce de vie, orientée SUD-OUEST, avec cuisine ouverte, d'un salon à l'ambiance cocooning pour les soirées d'hiver et d'une grande chambre de près de 30M pouvant être transformée en suite parentale ou, de par entrée indépendante, en cabinet pour profession libérale ou habitation indépendante.
A l'étage deux grandes chambres, la 1ère de 20M2 avec grands placards muraux et la 2ème de 14M2. Une salle de bains avec wc complète l'étage.

La toiture est en parfait état et les combles sont isolés.
Prévoir des travaux de rafraichissement intérieur.

Pour toutes questions ou informations veuillez me contacter au [Coordonnées masquées]

DPE : Classe D - GES B - Montant moyen estimé des dépenses annuelles d'énergie pour un usage standard établi à partir des prix de l'énergie de l'année 2021 : entre 2150 euros et 2960 euros

Prix 644000 euros (honoraires charge VENDEUR )
« Informations sur le bien à vendre + DPE + mentions sur la copropriété le cas échéant »

Pour visiter et vous accompagner dans votre projet, contactez Paolo DA SILVA, au [Coordonnées masquées] ou par courriel à [Coordonnées masquées]
Selon l'article L.561.5 du Code Monétaire et Financier, pour l'organisation de la visite, la présentation d'une pièce d'identité vous sera demandée.

Cette présente annonce a été rédigée sous la responsabilité éditoriale de Paolo DA SILVA agissant sous le statut d'agent commercial immatriculé au RSAC lyon 401843800 auprès de la SAS PROPRIETES PRIVEES, au capital de 40 000 euros, ZAC LE CHÊNE FERRÉ - 44 ALLÉE DES CINQ CONTINENTS 44120 VERTOU; SIRET 487 624 777 00040, RCS Nantes. Carte professionnelle Transactions sur immeubles et fonds de commerce (T) et Gestion immobilière (G) n° CPI 44[Coordonnées masquées]10 388 délivrée par la CCI Nantes - Saint Nazaire. Compte séquestre n°3[Coordonnées masquées] BPA SAINT-SEBASTIEN-SUR-LOIRE (44230) ; Garantie GALIAN - 89 rue de la Boétie, 75008 Paris - n°28137 J pour 2 000 000 euros pour T et 120 000 euros pour G. Assurance responsabilité civile professionnelle par MMA Entreprise n° de police 120.137.405
Mandat réf : 426007 Le professionnel garantit et sécurise votre projet immobilier.

Paolo DA SILVA (EI) Agent Commercial - Numéro RSAC : lyon 401843800 - .
Les informations sur les risques auxquels ce bien est exposé sont disponibles sur le site Géorisques : www. georisques. gouv. fr
Voir plus

Référence: 426007PAOD
Honoraires à la charge du vendeur.
DPE
A
B
C
D
E
F
G
GES
A
B
C
D
E
F
G

Prêt immobilier

Vous souhaitez connaître votre capacité d’emprunt et trouver le meilleur crédit immobilier ?
Réaliser une simulation gratuite

Maison à LA TOUR-DE-SALVAGNY
Maison à LA TOUR-DE-SALVAGNY
Maison à LA TOUR-DE-SALVAGNY
Maison à LA TOUR-DE-SALVAGNY
Maison à LA TOUR-DE-SALVAGNY
Maison à LA TOUR-DE-SALVAGNY
Maison à LA TOUR-DE-SALVAGNY
Maison à LA TOUR-DE-SALVAGNY
Maison à LA TOUR-DE-SALVAGNY
Maison à LA TOUR-DE-SALVAGNY
Maison à LA TOUR-DE-SALVAGNY
Maison à LA TOUR-DE-SALVAGNY
Maison à LA TOUR-DE-SALVAGNY
Ce site est protégé par reCAPTCHA la Politique de confidentialité et les Conditions d’utilisation de Google s’appliquent.
Obtenir un prêt immobilier au meilleur taux ?

En poursuivant votre navigation sans modifier vos paramètres, vous acceptez l'utilisation de cookies susceptibles de réaliser des statistiques de visite. Cliquez ici pour plus d'informations