Bénéficiez des services de nos partenaires locaux soigneusement sélectionnés
pour vous accompagner dans votre parcours d'achat immobilier

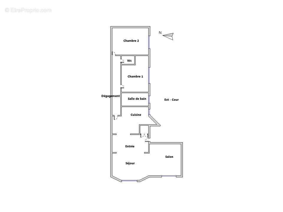
Asnières 4 pièces 81 m² 4ème étage

— Asnieres-Sur-Seine 92600 —
710 000 €
81 m²
4 pièces
ascenseur

Nos partenaires locaux
ASNIÈRES - BÉCON : L'agence STONEO vous propose en exclusivité un appartement de 4 pièces de 81m² carrez au 4ème étage d'une copropriété bien entretenue.

Ce bien refait à neuf, est composé d'un double séjour, d'une cuisine semi ouverte, de 2 chambres dont 1 avec placards intégrés, d'une salle de bain et un WC séparé.

Cet appartement bénéficie d'une belle luminosité grâce à son étage élevé, sa vue dégagée sans vis à vis. L'orientation Sud-Est des chambres et Sud-Ouest de la pièce de vie offrent un ensoleillement tout au long de la journée.

La copropriété calme et sécurisée, dispose d'un ascenseur.

L'appartement est complété par une cave.

Charges de copropriété : 323€ par mois (comprenant les charges générales, l'ascenseur, l'eau chaude, le chauffage...)
DPE : E
Taxe foncière : 1 115€

L'appartement est situé dans un environnement calme et familial, face au square Gilbert Thomain, à proximité de la station Bécon-les-Bruyères (ligne L), permettant de rejoindre Saint-Lazare et La Défense en 15 minutes.
Le quartier offre également un large choix de commerces, de crèches, d'écoles et d'infrastructures sportives, dont des terrains de tennis situés à deux pas (sous lesquels il est possible de louer une place de parking).

STONEO est une agence immobilière innovante qui s'est affirmée comme un acteur incontournable à Boulogne grâce à son équipe dynamique et expérimentée, un fichier de plus de 3 000 acheteurs actifs, la mise en place de stratégies de commercialisation personnalisées et une commission réduite à 2,8%. Nos clients sont satisfaits (4,9/5 sur Google) et nous recommandent.
Les informations sur les risques auxquels ce bien est exposé sont disponibles sur le site www.georisques.gouv.fr
Voir plus

Référence: PXGK8733C
Bien en copropriété.
DPE
A
B
C
D
E
F
G
GES
A
B
C
D
E
F
G

Prêt immobilier

Vous souhaitez connaître votre capacité d’emprunt et trouver le meilleur crédit immobilier ?
Réaliser une simulation gratuite

Appartement à ASNIERES-SUR-SEINE
Appartement à ASNIERES-SUR-SEINE
Appartement à ASNIERES-SUR-SEINE
Appartement à ASNIERES-SUR-SEINE
Appartement à ASNIERES-SUR-SEINE
Appartement à ASNIERES-SUR-SEINE
Appartement à ASNIERES-SUR-SEINE
Appartement à ASNIERES-SUR-SEINE
Appartement à ASNIERES-SUR-SEINE
Appartement à ASNIERES-SUR-SEINE
Ce site est protégé par reCAPTCHA la Politique de confidentialité et les Conditions d’utilisation de Google s’appliquent.
Obtenir un prêt immobilier au meilleur taux ?

En poursuivant votre navigation sans modifier vos paramètres, vous acceptez l'utilisation de cookies susceptibles de réaliser des statistiques de visite. Cliquez ici pour plus d'informations