Bénéficiez des services de nos partenaires locaux soigneusement sélectionnés
pour vous accompagner dans votre parcours d'achat immobilier

Appartement 4 pièce(s) 3 chambre(s) 82,13 m2

— Rueil-Malmaison 92500 —
438 900 €
82 m²
4 pièces
parkingbalcon/terrasse

Nos partenaires locaux
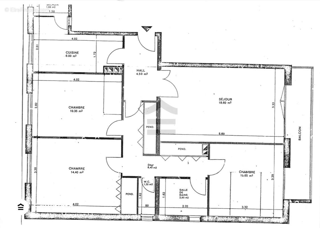
Equinimo, l'agence à commission fixe la plus recommandée (8 900 €), vous propose à la vente, à Rueil-Malmaison dans le quartier Buzenval, cet appartement de 4 pièces de 82 m2, en bon état, traversant et situé au dernier étage, route de l’Empereur.
Ce bien, situé au 3ᵉ et dernier étage, se compose d'une entrée, d’un séjour de 19m2 exposé Est avec accès au balcon, d’une cuisine séparée et aménagée avec un coin buanderie, de trois chambres exposé Ouest, d’une salle de bains et d’un WC indépendant.
Le bien bénéficie notamment de parquet, de nombreux rangements, ainsi que de fenêtres en double vitrage et de volets roulants électriques.
Une cave et une place de parking sont incluses dans cette vente.
Les charges, de 290 euros par mois, incluent notamment l’eau froide, l’eau chaude, le chauffage et l’entretien des parties communes. Pour davantage de précisions, le plan et la vidéo de présentation complète de ce bien, vous pouvez également consulter l'annonce sur le site Equinimo.
Voir plus

Bien en copropriété. Nombre de lots : 215.
Barème des honoraires
DPE
A
B
C
D
E
F
G

Prêt immobilier

Vous souhaitez connaître votre capacité d’emprunt et trouver le meilleur crédit immobilier ?
Réaliser une simulation gratuite

Appartement à RUEIL-MALMAISON
Appartement à RUEIL-MALMAISON
Appartement à RUEIL-MALMAISON
Appartement à RUEIL-MALMAISON
Appartement à RUEIL-MALMAISON
Appartement à RUEIL-MALMAISON
Appartement à RUEIL-MALMAISON
Appartement à RUEIL-MALMAISON
Appartement à RUEIL-MALMAISON
Appartement à RUEIL-MALMAISON
Appartement à RUEIL-MALMAISON
Appartement à RUEIL-MALMAISON
Appartement à RUEIL-MALMAISON
Appartement à RUEIL-MALMAISON
Appartement à RUEIL-MALMAISON
Ce site est protégé par reCAPTCHA la Politique de confidentialité et les Conditions d’utilisation de Google s’appliquent.
Obtenir un prêt immobilier au meilleur taux ?

En poursuivant votre navigation sans modifier vos paramètres, vous acceptez l'utilisation de cookies susceptibles de réaliser des statistiques de visite. Cliquez ici pour plus d'informations