Bénéficiez des services de nos partenaires locaux soigneusement sélectionnés
pour vous accompagner dans votre parcours d'achat immobilier

Appartement 3 pièces de 60m2 entièrement rénové rue de l' aiguillerie

— Montpellier 34000 —
240 000 €
58 m²
3 pièces

Nos partenaires locaux
35.7immobilier vous présente en EXCLUSIVITE:
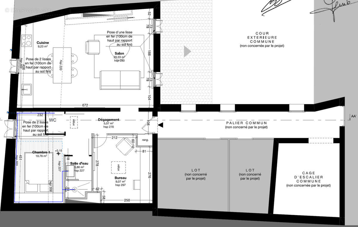
En plein centre historique de Montpellier Rue de l' Aiguillerie!
Au calme au 3ème et dernier étage d'un bel immeuble avec porte cochère, ce très beau T3 traversant entièrement refait à neuf et décoré avec soin.
En entrant sur votre droite, vous découvrirez un grand séjour avec cuisine ouverte, très chaleureux, sur 30 m2 environ.
En poursuivant la visite, sur la partie gauche, une première chambre de 9 m2 avecf velux, une salle d'eau avec grande douche et WC, puis une deuxième chambre de plus de 11 m2.
L' appartement est très fonctionnel, optimisé, sans perte d'espace, et lumineux.
Il ne donne pas directement sur la rue animée, et est donc très calme, tout en pouvant profiter des commerces en bas de chez soi.
C'est neuf, c'est bien placé.
Il dispose d'un bon rendement locatif, actuellement en saisonnier courte durée.
Visite virtuelle disponible dans l'annonce et sur le site de l'agence
Les honoraires sont à la charge du vendeur
Voir plus

Barème des honoraires
DPE
A
B
C
D
E
F
G
GES
A
B
C
D
E
F
G

Prêt immobilier

Vous souhaitez connaître votre capacité d’emprunt et trouver le meilleur crédit immobilier ?
Réaliser une simulation gratuite

Appartement à MONTPELLIER
Appartement à MONTPELLIER
Appartement à MONTPELLIER
Appartement à MONTPELLIER
Appartement à MONTPELLIER
Appartement à MONTPELLIER
Appartement à MONTPELLIER
Appartement à MONTPELLIER
Appartement à MONTPELLIER
Appartement à MONTPELLIER
Appartement à MONTPELLIER
Appartement à MONTPELLIER
Appartement à MONTPELLIER
Appartement à MONTPELLIER
Appartement à MONTPELLIER
Appartement à MONTPELLIER
Appartement à MONTPELLIER
Ce site est protégé par reCAPTCHA la Politique de confidentialité et les Conditions d’utilisation de Google s’appliquent.
Obtenir un prêt immobilier au meilleur taux ?

En poursuivant votre navigation sans modifier vos paramètres, vous acceptez l'utilisation de cookies susceptibles de réaliser des statistiques de visite. Cliquez ici pour plus d'informations