Bénéficiez des services de nos partenaires locaux soigneusement sélectionnés
pour vous accompagner dans votre parcours d'achat immobilier

Courbevoie - centre ville - loft 4 chambres

— Courbevoie 92400 —
999 000 €
326 m²
6 pièces
parkingascenseur

Nos partenaires locaux
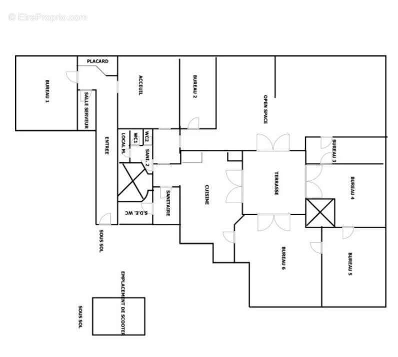
L’agence MAXIME DESPÈRES vous propose à proximité des commerces et de la gare de Courbevoie, un local commercial de 325.63m2, au sein d’une petite copropriété de 1991. Ce local en sous sol dispose d'un permis de construire pour un usage d'habitation. Ce loft en devenir se déploie autour d'un patio de 25m2 baigné de lumière grâce a ses baies vitrées coulissantes. Possibilité d'aménager ce bien atypique en 4 chambres. Il est composé à date d'une cuisine dinatoire, une salle de douche avec toilette et deux WC. Six places de parking complètent ce bien à hauteur de 15 000€ chacune
Honoraires à la charge de l'acquéreur de 2% (prix hors honoraires: 980000€). Pas de procédure en cours. Charges annuelles: 6848€/an. Nombre de lots: 53. Les informations sur les risques auxquels ce bien est exposé sont disponibles sur le site : www.georisques.gouv.fr
Voir plus

Référence: 86487225
Barème des honoraires
DPE
A
B
C
D
E
F
G
GES
A
B
C
D
E
F
G

Prêt immobilier

Vous souhaitez connaître votre capacité d’emprunt et trouver le meilleur crédit immobilier ?
Réaliser une simulation gratuite

Appartement à COURBEVOIE
Appartement à COURBEVOIE
Appartement à COURBEVOIE
Appartement à COURBEVOIE
Appartement à COURBEVOIE
Appartement à COURBEVOIE
Appartement à COURBEVOIE
Appartement à COURBEVOIE
Appartement à COURBEVOIE
Appartement à COURBEVOIE
Appartement à COURBEVOIE
Appartement à COURBEVOIE
Appartement à COURBEVOIE
Appartement à COURBEVOIE
Appartement à COURBEVOIE
Appartement à COURBEVOIE
Ce site est protégé par reCAPTCHA la Politique de confidentialité et les Conditions d’utilisation de Google s’appliquent.
Obtenir un prêt immobilier au meilleur taux ?

En poursuivant votre navigation sans modifier vos paramètres, vous acceptez l'utilisation de cookies susceptibles de réaliser des statistiques de visite. Cliquez ici pour plus d'informations