Bénéficiez des services de nos partenaires locaux soigneusement sélectionnés
pour vous accompagner dans votre parcours d'achat immobilier

Grande terrasse

— Toulouse 31300 —
367 000 €
94 m²
4 pièces
balcon/terrasseascenseur

Nos partenaires locaux
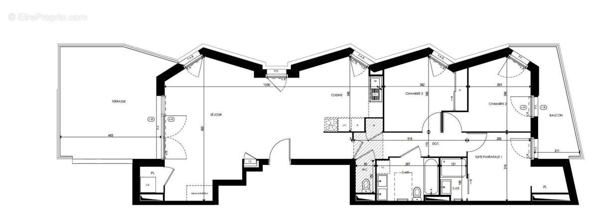
Toulouse St Martin du Touch Dernier étage sur grande terrasse. En 6ème et dernier étage cet appartement 4 pièces vous propose un séjour cuisine de 48,50m2 exposé nord ouest sur terrasse de 23,30m2, un wc indépendant, 2 chambres 10,10 et 10,60m2, une salle de bain-wc et une suite parentale de 13,40m2 salle d'eau incluse donnant sur le balcon de 8m2. Prestation de qualité : chauffage par système de pompe à chaleur air- eau, carrelage 45*45 au sol, parquet dans les chambres, peinture lisse, volets roulants électriques ..... Ancien village, rattaché à Toulouse au début du XIXe siècle, Saint-Martin-du-Touch a su préserver son esprit faubourg et sa douceur de vivre tout en s'intégrant pleinement à la Ville Rose. Son centre historique, traversé par la rivière du Touch, conserve une ambiance paisible et des monuments remarquables tels que l'église Saint-Martin et le moulin à vent restauré. Porté par la dynamique du pôle aéronautique et favorisé par une accessibilité optimale grâce à la rocade Arc-en- Ciel, le TER et le futur métro C, Saint-Martin-du-Touch se développe harmonieusement. Bien non soumis au DPE Pour tout renseignement : Féänor MAMEO [Coordonnées masquées]
Voir plus

Référence: HBO-C62
Honoraires à la charge du vendeur.

Prêt immobilier

Vous souhaitez connaître votre capacité d’emprunt et trouver le meilleur crédit immobilier ?
Réaliser une simulation gratuite

Appartement à TOULOUSE
Appartement à TOULOUSE
Appartement à TOULOUSE
Ce site est protégé par reCAPTCHA la Politique de confidentialité et les Conditions d’utilisation de Google s’appliquent.
Obtenir un prêt immobilier au meilleur taux ?

En poursuivant votre navigation sans modifier vos paramètres, vous acceptez l'utilisation de cookies susceptibles de réaliser des statistiques de visite. Cliquez ici pour plus d'informations