Bénéficiez des services de nos partenaires locaux soigneusement sélectionnés
pour vous accompagner dans votre parcours d'achat immobilier

Grande terrasse

— Toulouse 31400 —
579 000 €
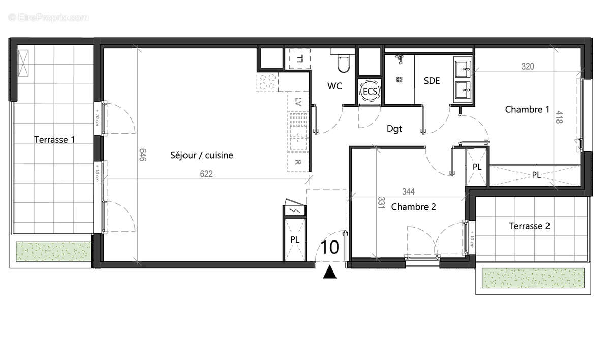
80 m²
3 pièces
parkingbalcon/terrasseascenseur

Nos partenaires locaux
Toulouse Demoiselle - Busca Appartement de standing avec 1 terrasse de 15,22m2. En 2ème étage sur 5 cet appartement développe un séjour cuisine de 37,51m2 sur terrasse de 15,22m2 exposée sud, une salle d'eau, un wc indépendant, 2 chambres de 13,34 et 12,14m2 et une seconde terrasse de 4,92m2 1 place de parking double (une place derrière l'autre) accessible depuis un monte voiture. Label RT2012, isolation renforcée, parquet contre-collé au sol, peinture lisse, volets roulants électriques, pompe à chaleur air, ballon thermodynamique ...... Quartier résidentiel très apprécié, le Busca abrite plusieurs sites incontournables tel que le jardin des plantes, le muséum d'histoire naturelle, le centre multiculturel le Quai des Savoirs ainsi que l'emblématique théâtre Sorano. Il offre d'agréables ballades au fil des rues, où artisans locaux et petites boutiques viennent compléter cet environnement exceptionnel. L'appartement est face aux Cales de Radoub et offre une vue imprenable sur cet ensemble classé monument historique ainsi que sur le Canal du Midi. Métro St Michel à 1,4km, Bus arrêt Crampel L9 en pied d'immeuble, Velo Toulouse à 1min, Rocade accessible en 5 minutes en voiture. BIEN NON SOUMIS AU DPE Pour tout renseignement : Féänor MAMEO [Coordonnées masquées]
Voir plus

Référence: VDE-07

Prêt immobilier

Vous souhaitez connaître votre capacité d’emprunt et trouver le meilleur crédit immobilier ?
Réaliser une simulation gratuite

Appartement à TOULOUSE
Appartement à TOULOUSE
Appartement à TOULOUSE
Appartement à TOULOUSE
Ce site est protégé par reCAPTCHA la Politique de confidentialité et les Conditions d’utilisation de Google s’appliquent.
Obtenir un prêt immobilier au meilleur taux ?

En poursuivant votre navigation sans modifier vos paramètres, vous acceptez l'utilisation de cookies susceptibles de réaliser des statistiques de visite. Cliquez ici pour plus d'informations