Bénéficiez des services de nos partenaires locaux soigneusement sélectionnés
pour vous accompagner dans votre parcours d'achat immobilier

Appartement paris 4 pièces 3 chambres de 102 m²

— Paris-14e 75014 —
1 075 000 €
102 m²
4 pièces
balcon/terrasseascenseur

Nos partenaires locaux
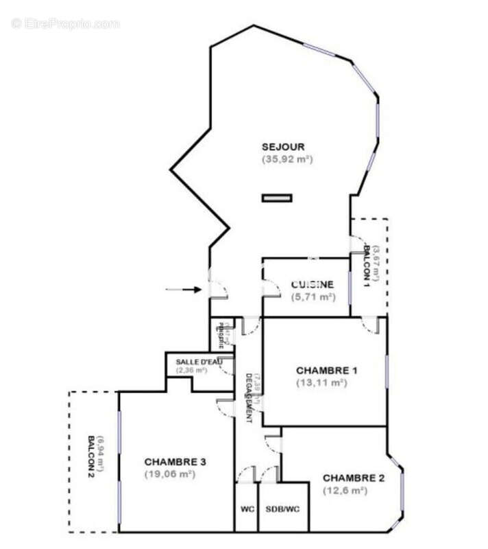
L'agence Laforêt Boulard ([Coordonnées masquées]) vous invite à découvrir ce bel appartement familial, idéalement situé entre Port-Royal et Denfert-Rochereau. Au calme, bénéficiant d'une double exposition et d'un agencement optimal, ce bien offre un cadre de vie agréable et fonctionnel. Vous serez séduit par sa vaste pièce de vie de 36 m², lumineuse, sans vis-à-vis, ouvrant sur un balcon. La cuisine indépendante peut aisément être ouverte sur le séjour. L'espace nuit se compose de trois grandes chambres, dont une avec accès à une terrasse. L'appartement dispose également de deux pièces d'eau (une salle de bains et une salle d'eau), de deux WC dont un séparé, ainsi que de nombreux rangements. Une cave complète ce bien, avec la possibilité d'acquérir en supplément un double box au sein de l'immeuble. L'environnement est particulièrement recherché, à proximité immédiate des établissements scolaires suivants : maternelle publique Jean Dolent, primaire publique Arago, collège Saint-Exupéry et école privée Notre-Dame de France. Côté transports, vous bénéficierez d'un accès rapide aux métros lignes 4 et 6 ainsi qu'au RER B, stations Denfert-Rochereau, Glacière, Saint-Jacques et Port-Royal. (6.44 % honoraires TTC à la charge de l'acquéreur.) Copropriété de 264 lots - dont 91 lots habitation. (Pas de procédure en cours). Charges annuelles : 3436 euros.
Voir plus

Référence: 2215
Bien en copropriété. Nombre de lots : 264. Charges de copropriété : 3436 €.
Honoraires d'agence de 6.44% à la charge de l'acquéreur
Barème des honoraires
DPE
A
B
C
D
E
F
G
GES
A
B
C
D
E
F
G

Prêt immobilier

Vous souhaitez connaître votre capacité d’emprunt et trouver le meilleur crédit immobilier ?
Réaliser une simulation gratuite

Appartement à PARIS-14E
Appartement à PARIS-14E
Appartement à PARIS-14E
Appartement à PARIS-14E
Appartement à PARIS-14E
Appartement à PARIS-14E
Ce site est protégé par reCAPTCHA la Politique de confidentialité et les Conditions d’utilisation de Google s’appliquent.
Obtenir un prêt immobilier au meilleur taux ?

En poursuivant votre navigation sans modifier vos paramètres, vous acceptez l'utilisation de cookies susceptibles de réaliser des statistiques de visite. Cliquez ici pour plus d'informations