Bénéficiez des services de nos partenaires locaux soigneusement sélectionnés
pour vous accompagner dans votre parcours d'achat immobilier

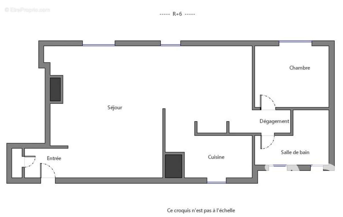
Appartement 49m² à paris-13e

— Paris-13e 75013 —
468 000 €
49 m²
2 pièces
balcon/terrasseascenseur

Nos partenaires locaux
Iad France - Grégory HOVSEPIAN vous propose : Métro Ligne 5 CAMPO FORMIO à 2 min, JARDIN DES PLANTES à 500m

Dans un immeuble haussmanien, découvrez ce charmant appartement situé au 6e et dernier étage avec ASCENSEUR.

Très lumineux grâce à sa DOUBLE EXPOSITION, ce bien dispose d'un agencement idéal, sans perte de place. L'entrée ouvre sur un beau DOUBLE SEJOUR disposant de 2 petits balcons.

La cuisine est indépendante et est entièrement équipée.

La chambre permet d'accueillir un grand lit ainsi qu'un bureau. La salle de bain spacieuse bénéficie d'une baignoire ainsi que de wc.

En complément vous pourrez profiter de la praticité d'une cave.

Un rafraîchissement est nécessaire et vous permettra de mettre en valeur tout le potentiel et le charme de cet appartement.

Très belle opportunité à découvrir sans tarder !



La presente annonce immobiliere vise 2 lots situés dans une copropriété de 61 lots au total et ne faisant l'objet d'aucune procédure en cours citée à l'article L. 721-1 du code de la construction et de l'habitation. Montant moyen mensuel de charges déclaré par le vendeur : 105.33¤ par mois (soit 1264 ¤ annuel). Honoraires d'agence à la charge du vendeur.
Information d'affichage énergétique sur ce bien : classe ENERGIE F indice 358 et classe CLIMAT F indice 78. Les informations sur les risques auxquels ce bien est exposé, y compris l'obligation légale de débroussaillement, sont disponibles sur le site Géorisques : http://www.georisques.gouv.fr.
La présente annonce immobilière a été rédigée sous la responsabilité éditoriale de M Grégory HOVSEPIAN mandataire indépendant en immobilier (sans détention de fonds), agent commercial de la SAS I@D France immatriculé au RSAC de Créteil sous le numéro 484508387, titulaire de la carte de démarchage immobilier pour le compte de la société I@D France SAS.
Informations LOI ALUR :
Soumis au régime de copropriété.
Nombre de lots : 61.
Quote part annuelle(moyenne) : 1264 euros.
Honoraires charge vendeur. (gedeon_6727_32294519)
Voir plus

Référence: 1903824
Bien en copropriété. Nombre de lots : 61. Charges de copropriété : 1264 €.
Honoraires à la charge du vendeur.
DPE
A
B
C
D
E
F
G
GES
A
B
C
D
E
F
G

Prêt immobilier

Vous souhaitez connaître votre capacité d’emprunt et trouver le meilleur crédit immobilier ?
Réaliser une simulation gratuite

Photo 1 - Appartement à PARIS-13E
Photo 1
Photo 2 - Appartement à PARIS-13E
Photo 2
Photo 3 - Appartement à PARIS-13E
Photo 3
Photo 4 - Appartement à PARIS-13E
Photo 4
Photo 5 - Appartement à PARIS-13E
Photo 5
Photo 6 - Appartement à PARIS-13E
Photo 6
Photo 7 - Appartement à PARIS-13E
Photo 7
Photo 8 - Appartement à PARIS-13E
Photo 8
Ce site est protégé par reCAPTCHA la Politique de confidentialité et les Conditions d’utilisation de Google s’appliquent.
Obtenir un prêt immobilier au meilleur taux ?

En poursuivant votre navigation sans modifier vos paramètres, vous acceptez l'utilisation de cookies susceptibles de réaliser des statistiques de visite. Cliquez ici pour plus d'informations