Bénéficiez des services de nos partenaires locaux soigneusement sélectionnés
pour vous accompagner dans votre parcours d'achat immobilier

Corps de ferme à rénover

— Allonzier-La-Caille 74350 —
424 000 €
145 m²
7 pièces
parking

Nos partenaires locaux
74350 ALLONZIER_LA_CAILLE

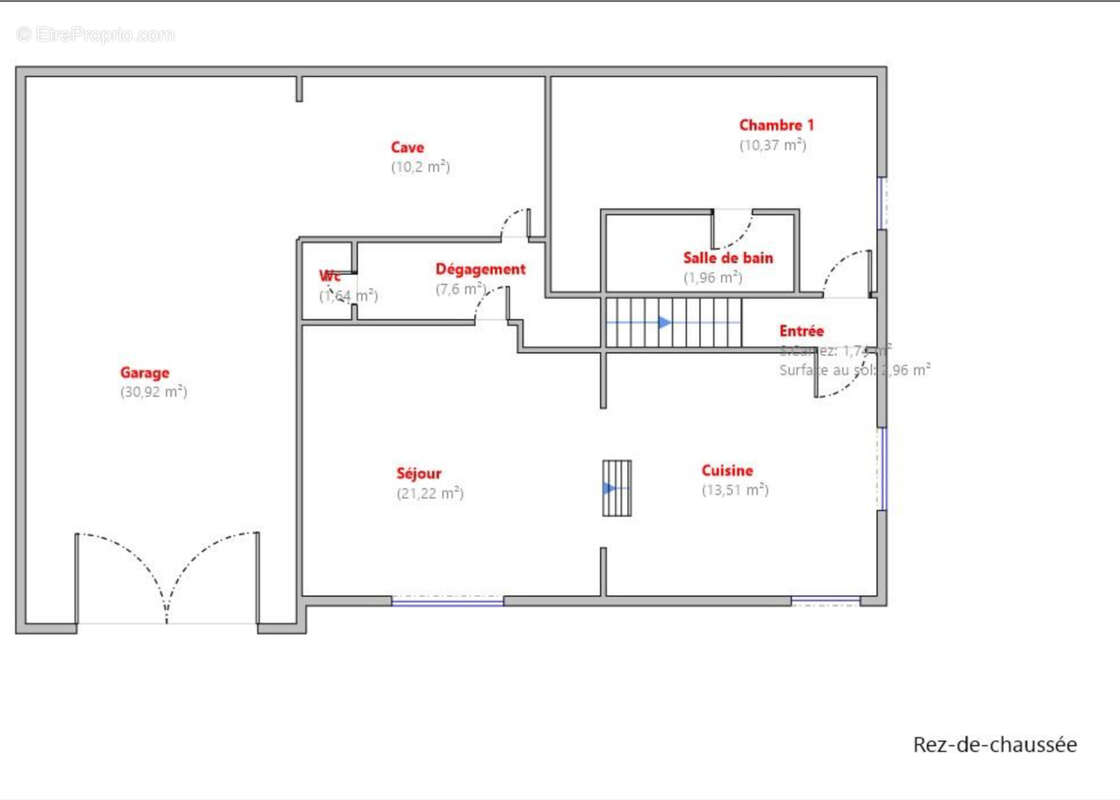
CAROLI IMMOBILIER vous propose en exclusivité un corps de ferme à rénover - 190 m2 au sol avec grenier aménageable sur 600 m2 de terrain

Situé sur la commune recherchée d'Allonzier-la-Caille, ce bien offre de beaux volumes et un fort potentiel après travaux.

Il se compose, d'un séjour, d'une cuisine, de 6 chambres, d'un bureau, ainsi que 2 salles de bain, offrant une configartion idéale pour une famille ou un projet d'investissement.

A l'exterieur, vous profiterez d'une terrasse privative, parfaite pour les beaux jours.

Le bien dispose également de 2 places de parking, d'un garage, ainsi qu'une cave accessible directement depuis le garage, apportant un confort et des espaces de rangement appréciables.

Environnement calme, à proximité des axes principaux.

Vous pourrez envisager de diviser la propriété en plusieurs appartements ou de tout réhabiliter en une maison familiale unique.

La toiture a été entièrement rénovée, garantissant une structure saine pour vos projets futurs. Le chauffage est déjà équipé d'un poêle à bois.

Pour plus d’informations contactez Laetitia BELLIOT au [Coordonnées masquées] ou par mail à [Coordonnées masquées]


Voir plus

Référence: 969
Barème des honoraires
DPE
A
B
C
D
E
F
G
GES
A
B
C
D
E
F
G
Maison à ALLONZIER-LA-CAILLE
Maison à ALLONZIER-LA-CAILLE
Maison à ALLONZIER-LA-CAILLE
Maison à ALLONZIER-LA-CAILLE
Maison à ALLONZIER-LA-CAILLE
Maison à ALLONZIER-LA-CAILLE
Maison à ALLONZIER-LA-CAILLE
Maison à ALLONZIER-LA-CAILLE
Maison à ALLONZIER-LA-CAILLE
Maison à ALLONZIER-LA-CAILLE
Maison à ALLONZIER-LA-CAILLE
Maison à ALLONZIER-LA-CAILLE
Géorisques

Les informations sur les risques auxquels ce bien est exposé sont disponibles sur le site Géorisques : www.georisques.gouv.fr

Ce site est protégé par hCaptcha Politique de confidentialité et Conditions d’utilisation s’appliquent.

En poursuivant votre navigation sans modifier vos paramètres, vous acceptez l'utilisation de cookies susceptibles de réaliser des statistiques de visite. Cliquez ici pour plus d'informations