Bénéficiez des services de nos partenaires locaux soigneusement sélectionnés
pour vous accompagner dans votre parcours d'achat immobilier

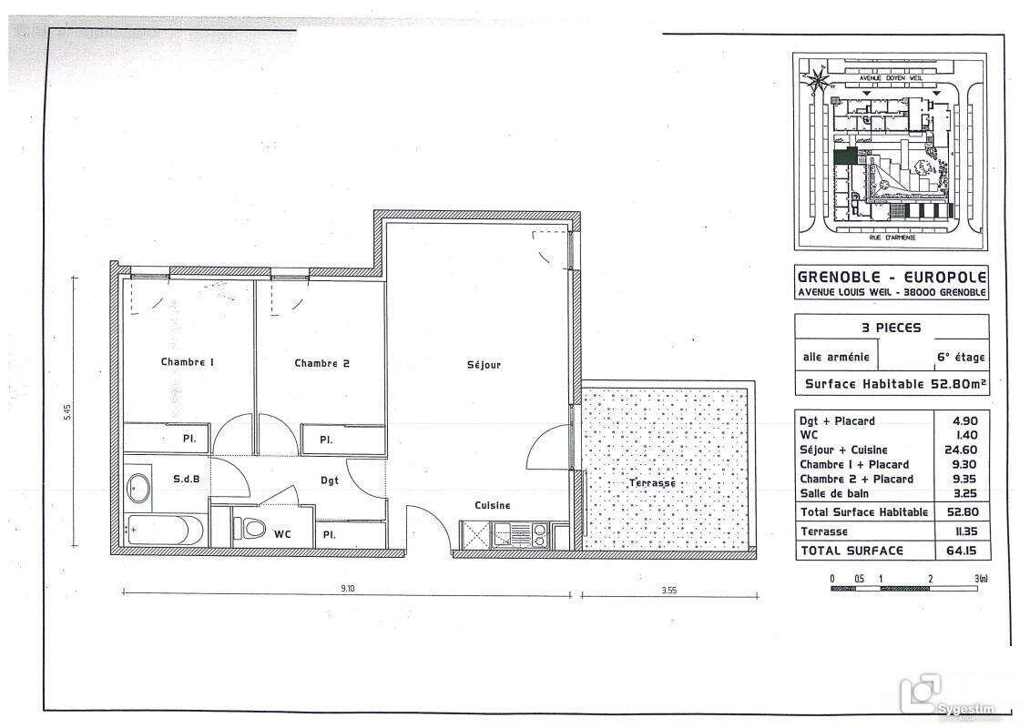
Vente - appartement en résidence services - 3 pièces - 52,38 m²

— Grenoble 38000 —
147 000 €
52 m²
3 pièces
balcon/terrasseascenseur

Nos partenaires locaux
Conseil en vente Laetitia Harhour o6 2I 93 I6 8I - [Coordonnées masquées]

GRENOBLE – INVESTISSEMENT LOCATIF MEUBLÉ – Quartier Europole – Résidence Le Hüb – Bail commercial en cours – Statut LMNP/LMP - Investissement 100 % meublé sous bail commercial – pas d'occupation personnelle possible

Adresse : 25 avenue Doyen Louis Weill 38000 GRENOBLE
Appartement T3 de 52,38 m², situé au 6e étage avec terrasse, Stationnement inclus

LE BIEN
Appartement T3 de 52,38 m², situé au 6e étage
Terrasse de 11,35 m² exposée Sud-Ouest
Stationnement en sous-sol inclus
Revenu locatif HT annuel : 10 370 € Hors Taxes et Hors Charges
Loyer contractuel, versé que le bien soit loué ou non
Versement dès signature de l'acte authentique
Bail commercial en cours

Localisation stratégique
Le bien se situe au cœur du quartier Europole, à deux pas de :
- Grenoble École de Management, IUT, écoles d'ingénieurs
- World Trade Center, centre-ville, Gare SNCF
- Transports (Tram A & B, bus, autoroute)
Un secteur recherché par les étudiants, actifs et voyageurs d'affaires.

La Résidence Le Hüb
Résidence innovante, mixant hébergement étudiant, affaires et tourisme.
Elle propose 121 logements et de nombreux services :
- Réception, salle de fitness, bar/snacking, co-working, jardin, laverie
- Espaces de détente et de co-living modernes
- Accessibilité PMR, parking, petit-déjeuner, lounge, etc.

LOCATAIRE COMMERCIAL
Exploitée par Privilodges, gestionnaire reconnu, spécialiste de l'hébergement meublé.

Investissement LMNP / LMP : une fiscalité optimisée
- Loyers déclarés au régime BIC réel (non imposés pendant plusieurs années grâce à l'amortissement)
- Gestion sans souci, grâce au bail commercial
- Charges connues, aucun aléa locatif
- Aucune occupation personnelle possible (pas de résidence principale, ni de bail d'habitation)

INFORMATIONS IMPORTANTES
Ce bien est destiné exclusivement à un usage locatif en meublé sous bail commercial.
Il ne peut pas être occupé à titre personnel, ni être loué dans le cadre d'un bail d'habitation classique.
Transport : La résidence bénéficie d'une situation idéale au cœur du quartier Europole, parfaitement desservi par les transports :

Tramway à 2 min à pied (lignes A & B)
Gare SNCF de Grenoble à 5 min à pied
Accès rapide aux autoroutes A480 et A41
Réseau TAG (bus & tram) très dense
Centre-ville accessible en quelques minutes

Une localisation stratégique pour étudiants, actifs et voyageurs de passage.
Quartier : Quartier Europole – Un environnement dynamique et recherché
Située au cœur du quartier Europole, la résidence bénéficie d'un emplacement stratégique mêlant vie étudiante, activités tertiaires et pôles de formation.

Le quartier accueille :
Grenoble École de Management (GEM)
Des écoles d'ingénieurs et un IUT
Le World Trade Center de Grenoble
Un large pôle d'entreprises, start-ups, et centres de recherche
De nombreux services : restaurants, commerces, transports, etc.
Europole est un secteur vivant, moderne et bien desservi, qui attire aussi bien les étudiants, les jeunes actifs que les professionnels en déplacement.

Un emplacement parfaitement adapté à un investissement locatif meublé sous bail commercial.
Immeuble : La résidence Le Hüb Europole est un concept innovant mêlant hébergement étudiant, affaires et tourisme.
Elle propose 121
Voir plus

Référence: 49036
Honoraires à la charge du vendeur.
Barème des honoraires
DPE
A
B
C
D
E
F
G
GES
A
B
C
D
E
F
G

Prêt immobilier

Vous souhaitez connaître votre capacité d’emprunt et trouver le meilleur crédit immobilier ?
Réaliser une simulation gratuite

Appartement à GRENOBLE
Appartement à GRENOBLE
Appartement à GRENOBLE
Appartement à GRENOBLE
Appartement à GRENOBLE
Appartement à GRENOBLE
Appartement à GRENOBLE
Appartement à GRENOBLE
Appartement à GRENOBLE
Appartement à GRENOBLE
Appartement à GRENOBLE
Appartement à GRENOBLE
Appartement à GRENOBLE
Appartement à GRENOBLE
Appartement à GRENOBLE
Appartement à GRENOBLE
Appartement à GRENOBLE
Appartement à GRENOBLE
Appartement à GRENOBLE
Appartement à GRENOBLE
Appartement à GRENOBLE
Appartement à GRENOBLE
Ce site est protégé par reCAPTCHA la Politique de confidentialité et les Conditions d’utilisation de Google s’appliquent.
Obtenir un prêt immobilier au meilleur taux ?

En poursuivant votre navigation sans modifier vos paramètres, vous acceptez l'utilisation de cookies susceptibles de réaliser des statistiques de visite. Cliquez ici pour plus d'informations