**à vendre : boutique : local commercial brut de 105 m2 à clichy, rue de neuilly - emplacement de choix**

— Clichy 92110 —
575 000 €
105 m²

IDEAL BOULANGERIE

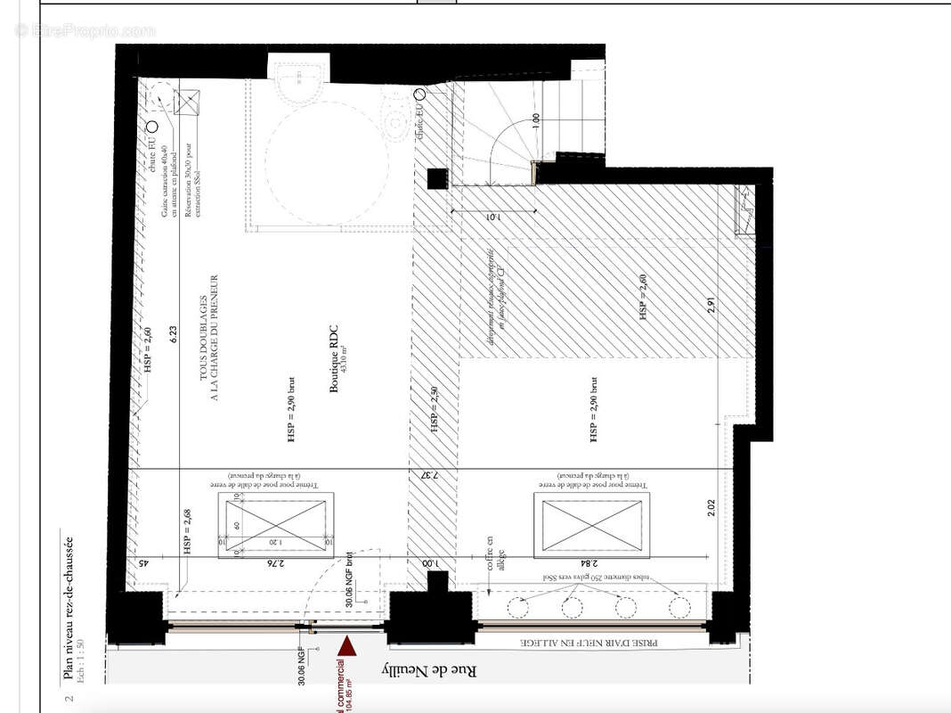
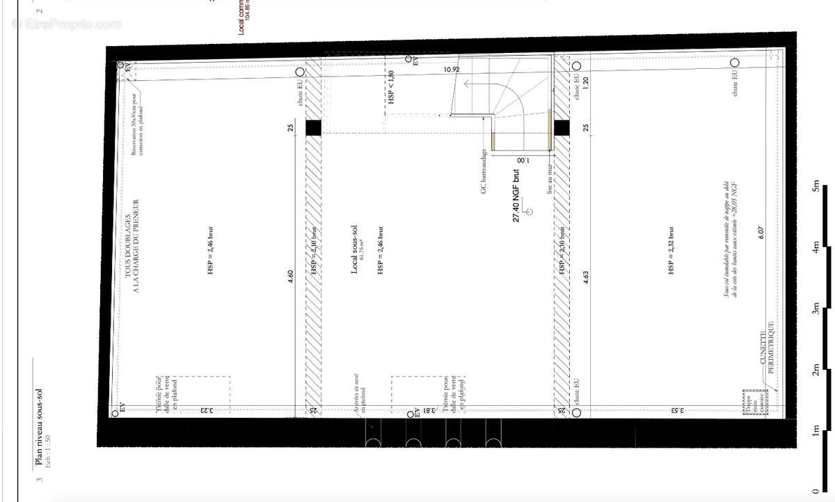
**À Vendre : Local Commercial de 105 m2 à Clichy, Rue de Neuilly - Emplacement de Choix** Opportunité rare à saisir dans le secteur commerçant de la rue de Neuilly à Clichy ! Nous vous proposons ce local commercial de 105 m2 idéalement situé au rez-de-chaussée d'un immeuble magnifiquement rénové. Ce bien offre une surface de 45 m2 au rez-de-chaussée, complétée par 60 m2 au sous-sol, bénéficiant d'un éclairage zénithal et d'un escalier d'accès direct d'une largeur de 1 mètre. Ce local de charme dispose d'une superbe façade en bois brut, d'une largeur de 6 mètres, garantissant une excellente visibilité et un attrait esthétique indéniable dans un environnement très dynamique. **Caractéristiques principales :**
-Extraction diamétre 25. - Superficie totale : 105 m2 (45 m2 au rez-de-chaussée, 60 m2 en sous-sol) - Éclairage zénithal au sous-sol - Escalier d'accès direct de 1 mètre de large - Largeur de façade : 6 mètres - Superbe façade en bois brut - Situé dans un immeuble magnifiquement rénové - Libre de toute occupation **Prix de vente : 575 000 € HT** Ne manquez pas cette occasion unique d'implanter votre activité au cœur d'un quartier en pleine effervescence. Pour plus d'informations ou pour organiser une visite, contactez-nous dès maintenant. Faites de ce local votre nouvelle adresse !
Voir plus

Bien en copropriété. Nombre de lots : 20.
Honoraires d'agence de 5.91% à la charge de l'acquéreur
Barème des honoraires

Prêt immobilier

Vous souhaitez connaître votre capacité d’emprunt et trouver le meilleur crédit immobilier ?
Réaliser une simulation gratuite

Commerce à CLICHY
Commerce à CLICHY
Commerce à CLICHY
Commerce à CLICHY
Ce site est protégé par reCAPTCHA la Politique de confidentialité et les Conditions d’utilisation de Google s’appliquent.
Obtenir un prêt immobilier au meilleur taux ?

En poursuivant votre navigation sans modifier vos paramètres, vous acceptez l'utilisation de cookies susceptibles de réaliser des statistiques de visite. Cliquez ici pour plus d'informations