Bénéficiez des services de nos partenaires locaux soigneusement sélectionnés
pour vous accompagner dans votre parcours d'achat immobilier

Doly - maison - quartier bel air

— Saint-Denis 93200 —
698 000 €
226 m² / 77 m²
7 pièces
balcon/terrasse

Nos partenaires locaux
MAISON DE VILLE 7 PIÈCES/6 CHAMBRES À SAINT DENIS/QUARTIER BEL AIR DANS UNE JOLIE IMPASSE AU CALME

UN HAVRE DE PAIX, TRÈS LUMINEUX, ÉNORME POTENTIEL, RARE DANS LE QUARTIER BEL AIR, À SAISIR !

À 200m du Canal et à 3mn à pied du Stade de France/La Plaine et de ses commerces, cinéma et restaurants.

À 10mn de la station St Denis-Porte de Paris / ligne 13

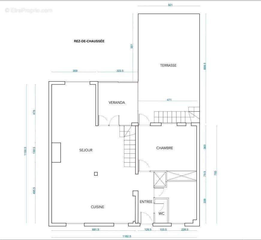
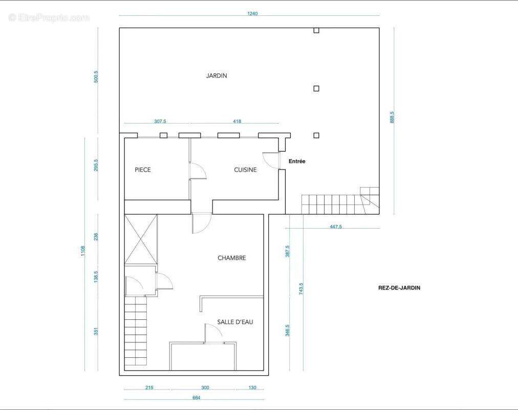
DOLY vous présente une maison traversante de 211m2 habitables sur une parcelle de 308m2 disposant de 80m2 de jardin, enrichie par deux terrasses (haute et basse), une véranda et une dépendance pouvant faire office d'atelier, de bureau ou de studio indépendant

Cette maison sur 3 niveaux bénéficie de très beaux volumes et de différentes perspectives grâce à ses nombreux espaces extérieurs.

Côté Villa Thierry, la maison s'ouvre sur une entrée desservant un vaste séjour/cuisine traversant de 46m2, avec cheminée et parquet en chêne.
Cette pièce de vie dispose d'un accès direct sur la véranda de 7m2 qui surplombe le jardin.
Sur ce même niveau, une chambre avec accès direct à la terrasse haute de 15m2, une salle de bain et un toilette.

Au premier étage, deux belles chambres avec de nombreux rangements, un point d'eau et un toilette.

En rez-de-jardin, une vaste chambre, une cuisine d'été, un bureau/chambre, une salle d'eau avec espace buanderie et un toilette invité.

Une terrasse dans le jardin dessert la dépendance de 17m2 accessible par l'entrée de la maison côté Cours du Ru de Montfort, tout comme le garage.

RER B ou D à 15mn, au pied des Bus 170-239-253 desservant le Parc de la Villette et le Parc de la Courneuve.

De nombreux commerces de proximité à deux pas de la maison.

Maison entièrement rénovée entre 2003 et 2006 et rafraîchie en 2023.

Premières images meublées par IA

Pompe à chaleur installée cette année

Fenêtres double vitrage, murs isolés.

HSP: 2,48M EN RDC - 2,12M EN RDJ - 2,33M AU 1ER ÉTAGE

La maison est construite sur un terrain traversant de 308m2 constitué de deux parcelles de 150m2 et 158m2 disposant de deux entrées indépendantes Villa Thierry et Cours du Ru de Montfort.Pas de mitoyenneté au sol.
Voir plus

Référence: DOM14678-36
Honoraires d'agence de 4.2% à la charge de l'acquéreur
DPE
A
B
C
D
E
F
G
GES
A
B
C
D
E
F
G

Prêt immobilier

Vous souhaitez connaître votre capacité d’emprunt et trouver le meilleur crédit immobilier ?
Réaliser une simulation gratuite

Maison à SAINT-DENIS
Maison à SAINT-DENIS
Maison à SAINT-DENIS
Maison à SAINT-DENIS
Maison à SAINT-DENIS
Maison à SAINT-DENIS
Maison à SAINT-DENIS
Maison à SAINT-DENIS
Maison à SAINT-DENIS
Maison à SAINT-DENIS
Maison à SAINT-DENIS
Maison à SAINT-DENIS
Maison à SAINT-DENIS
Maison à SAINT-DENIS
Maison à SAINT-DENIS
Maison à SAINT-DENIS
Maison à SAINT-DENIS
Ce site est protégé par reCAPTCHA la Politique de confidentialité et les Conditions d’utilisation de Google s’appliquent.
Obtenir un prêt immobilier au meilleur taux ?

En poursuivant votre navigation sans modifier vos paramètres, vous acceptez l'utilisation de cookies susceptibles de réaliser des statistiques de visite. Cliquez ici pour plus d'informations