Nice ouest - villa d'environ 150 m2 + garage - calme absolu

— Nice 06200 —
715 000 €
150 m² / 2 000 m²
5 pièces
parkingjardinpiscine

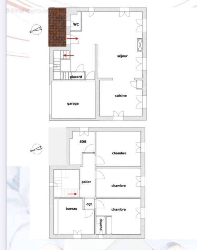
Située à l'OUEST DE NICE , entre les quartiers recherchés de Saint Roman de Bellet et Saint Isidore, venez découvrir cette charmante villa 150 m2 habitable avec ses 2000 m2 de terrain.

A environ 10 mn en voiture des commerces, des écoles et des transports, cette maison représente une belle opportunité pour ceux qui recherchent la tranquillité sans renoncer à la proximité de la ville.

Construite en 2002 avec des matériaux de qualité, la maison a été construite avec des briques pleines de 40 cm offrant une excellente inertie thermique.

Le séjour-salon profite d'une exposition PLEIN SUD et la piscine s'ouvre sur une VUE DÉGAGÉE INCROYABLE donnant sur les coteaux de BELLET où vous pourrez profiter du CALME ABSOLU !

L'étage se compose d'une suite parentale, deux chambres, une salle de douche et un bureau-chambre d'amis.

DEUX PLACES DE PARKING et un GARAGE FERMÉ accompagnent ce bien.

Pour visiter et vous accompagner dans votre projet, contactez-moi au [Coordonnées masquées]

PRIX : 715 000 euros ( honoraires charge vendeur)
DPE : D (189) - GES : B (6)
Montant estimé des dépenses annuelles d'énergie pour un usage standard entre 1540 et 2120 euros indexées aux années 2021, 2022 et 2023 (ou 2021 uniquement) (si logement F ou G 'Logement à consommation énergétique excessive : classe F ou G')
Pour visiter et vous accompagner dans votre projet, contactez Milena PERRAULT, au [Coordonnées masquées] ou, par courriel à [Coordonnées masquées].
Selon l'article L.561.5 du Code Monétaire et Financier, pour l'organisation de la visite, la présentation d'une pièce d'identité vous sera demandée.
Cette présente annonce a été rédigée sous la responsabilité éditoriale de Milena PERRAULT agissant sous le statut d'agent commercial immatriculé au RSAC NICE 978924645 auprès de SAS PROPRIETES PRIVEES, au capital de 44 920 euros, ZAC LE CHÊNE FERRÉ - 44 ALLÉE DES CINQ CONTINENTS 44120 VERTOU; SIRET 487 624 777 00040, RCS Nantes. Carte Professionnelle Transactions sur immeubles et fonds de commerce (T) et Gestion immobilière (G) n°CPI 44[Coordonnées masquées]10 388 délivrée par la CCI Nantes - Saint Nazaire. Compte séquestre n°3[Coordonnées masquées] BPA SAINT-SEBASTIEN-SUR-LOIRE (44230). Garantie GALIAN-SMABTP - 89 rue de la Boétie, 75008 Paris - n°28137 J pour 2 000 000 euros pour T et 120 000 euros pour G. Assurance responsabilité civile professionnelle par GALIAN-SMABTP n° de police 28137.J

Mandat réf : 429 775 - Le professionnel garantit et sécurise votre projet immobilier.

Milena PERRAULT (EI) Agent Commercial - Numéro RSAC : NICE 978924645 - .
Voir plus

Référence: 429775PERR
Honoraires à la charge du vendeur.
DPE
A
B
C
D
E
F
G
GES
A
B
C
D
E
F
G

Prêt immobilier

Vous souhaitez connaître votre capacité d’emprunt et trouver le meilleur crédit immobilier ?
Réaliser une simulation gratuite

Maison à NICE
Maison à NICE
Maison à NICE
Maison à NICE
Maison à NICE
Maison à NICE
Maison à NICE
Maison à NICE
Maison à NICE
Maison à NICE
Maison à NICE
Maison à NICE
Maison à NICE
Maison à NICE
Maison à NICE
Ce site est protégé par reCAPTCHA la Politique de confidentialité et les Conditions d’utilisation de Google s’appliquent.
Obtenir un prêt immobilier au meilleur taux ?

En poursuivant votre navigation sans modifier vos paramètres, vous acceptez l'utilisation de cookies susceptibles de réaliser des statistiques de visite. Cliquez ici pour plus d'informations