Maison familiale au calme sainte luce sur loire

— Sainte-Luce-Sur-Loire 44980 —
542 850 €
186 m² / 1 080 m²
7 pièces
parkingbalcon/terrassejardinpiscine

Grande maison familiale avec piscine En impasse au calme , terrain arboré de + de 1000 m²

Le marché actuel offre de belles opportunités et celle-ci en est une à ne pas manquer !

Située sur les hauteurs de Sainte-Luce-sur-Loire, au coeur du secteur résidentiel très apprécié de La Bougrière, cette belle maison familiale au charme néo breton bénéficie d'un environnement privilégié :
à moins de 3 minutes à pied des transports,
à moins de 300 mètres du futur groupe scolaire,
proche des commerces, espaces verts, chemins de promenade et des accès rapides vers Nantes.

Un emplacement recherché, idéal pour concilier tranquillité et vie pratique.

L'allée privative de plus de 11 m permet de stationner aisément 2 véhicules sur la propriété.
Un cadre de vie rare : intimité et nature préservée, sans vis à vis.
Sur plus de 1000 m² de terrain intimiste et arboré, vous profitez d'un véritable havre de paix :
nombreux arbres fruitiers (pruniers, pommiers, framboisiers)ainsi qu'un potager.
piscine au brome (3,5 x 7 m)
terrasse conviviale
puits fonctionnel avec pompe
véranda à réaménager selon vos envies

Des volumes généreux et un agencement pensé pour le confort
La maison développe 186 m² au sol, offrant de grands espaces et un étage en plancher béton pour un confort acoustique optimal.

Rez-de-chaussée :
Grande entrée avec rangements
vaste pièce de vie d'environ 60 m² (salon et son poêle à bois / séjour / cuisine ouverte)
1 chambre de plain-pied
1 salle de bain avec douche
1 WC indépendant
1 grand garage de plus de 35m2 + arrière garage.

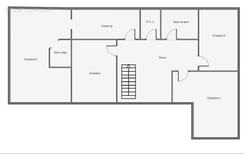
Étage :
large palier avec rangements
4 chambres, dont une suite parentale (salle d'eau + dressing)
1 salle de bain
1 WC indépendant

sous-pentes très raisonnables : aucune perte d'espace

Prix 542 800 euros dont 3.4% d'honoraires charge acquéreur, soit 525 000 euros hors honoraires.

DPE C GES C
Montant estimé des dépenses annuelles d'énergie pour un usage standard entre 1850 euros et 2560 euros indexées aux années 2021, 2022 et 2023 .
Pour visiter et vous accompagner dans votre projet, contactez Léa LAUMONE, au [Coordonnées masquées] ou, par courriel à [Coordonnées masquées].
Selon l'article L.561.5 du Code Monétaire et Financier, pour l'organisation de la visite, la présentation d'une pièce d'identité vous sera demandée.
Cette présente annonce a été rédigée sous la responsabilité éditoriale de Léa LAUMONE agissant sous le statut d'agent commercial immatriculé au RSAC NANTES 930477765 auprès de SAS PROPRIETES PRIVEES, au capital de 44 920 euros, ZAC LE CHÊNE FERRÉ - 44 ALLÉE DES CINQ CONTINENTS 44120 VERTOU; SIRET 487 624 777 00040, RCS Nantes. Carte Professionnelle Transactions sur immeubles et fonds de commerce (T) et Gestion immobilière (G) n°CPI 44[Coordonnées masquées]10 388 délivrée par la CCI Nantes - Saint Nazaire. Compte séquestre n°3[Coordonnées masquées] BPA SAINT-SEBASTIEN-SUR-LOIRE (44230). Garantie GALIAN-SMABTP - 89 rue de la Boétie, 75008 Paris - n°28137 J pour 2 000 000 euros pour T et 120 000 euros pour G. Assurance responsabilité civile professionnelle par GALIAN-SMABTP n° de police 28137.J

Mandat réf : 431836 - Le professionnel garantit et sécurise votre projet immobilier.

(3.40 % honoraires TTC à la charge de l'acquéreur.)

Léa LAUMONE (EI) Agent Commercial - Numéro RSAC : NANTES 930477765 - .
Les informations sur les risques auxquels ce bien est exposé sont disponibles sur le site Géorisques : www. georisques. gouv. fr
Voir plus

Référence: 431836LLAU
Honoraires d'agence de 3.4% à la charge de l'acquéreur
DPE
A
B
C
D
E
F
G
GES
A
B
C
D
E
F
G

Prêt immobilier

Vous souhaitez connaître votre capacité d’emprunt et trouver le meilleur crédit immobilier ?
Réaliser une simulation gratuite

Maison à SAINTE-LUCE-SUR-LOIRE
Maison à SAINTE-LUCE-SUR-LOIRE
Maison à SAINTE-LUCE-SUR-LOIRE
Maison à SAINTE-LUCE-SUR-LOIRE
Maison à SAINTE-LUCE-SUR-LOIRE
Maison à SAINTE-LUCE-SUR-LOIRE
Maison à SAINTE-LUCE-SUR-LOIRE
Maison à SAINTE-LUCE-SUR-LOIRE
Maison à SAINTE-LUCE-SUR-LOIRE
Maison à SAINTE-LUCE-SUR-LOIRE
Maison à SAINTE-LUCE-SUR-LOIRE
Maison à SAINTE-LUCE-SUR-LOIRE
Maison à SAINTE-LUCE-SUR-LOIRE
Maison à SAINTE-LUCE-SUR-LOIRE
Maison à SAINTE-LUCE-SUR-LOIRE
Ce site est protégé par reCAPTCHA la Politique de confidentialité et les Conditions d’utilisation de Google s’appliquent.
Obtenir un prêt immobilier au meilleur taux ?

En poursuivant votre navigation sans modifier vos paramètres, vous acceptez l'utilisation de cookies susceptibles de réaliser des statistiques de visite. Cliquez ici pour plus d'informations