Bénéficiez des services de nos partenaires locaux soigneusement sélectionnés
pour vous accompagner dans votre parcours d'achat immobilier

Isère (38) - a vendre grenoble - hyper-centre - studio 22m2 - 2ème étage - rue brocherie

— Grenoble 38000 —
85 000 €
23 m²
1 pièce

Nos partenaires locaux
NOUVEAUTE Comptoir Immobilier de France Grenoble : Idéal Investisseur !

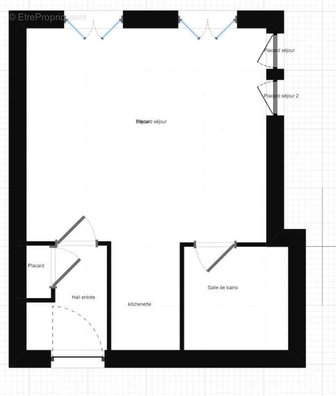
HYPER CENTRE de Grenoble, à 2 pas de la place aux Herbes à Grenoble, situé rue Brocherie, dans un environnement proche de toutes commodités (commerces, écoles, Tram, bus, etc.. ), je vous propose ce studio de 22m2 au 2ème étage sans asenseur.
Dans un immeuble ancien, avec interphone, ce studio offre des avantages intéressants.

Entièrement sécurisé avec interphone, il est composé d'une entrée avec placard de rangement donnant sur la pièce de vie, avec un coin cuisine équipé (machine à laver), une salle de bains avec baignoire et wc.

Venez découvrir rapidement ce studio loué 470eur/mois.

Taxe foncière: 698€ / Charges de copropriété: 400€/an comprenant les charges communes : entretien, assurance / DPE : F en Janvier 2026

CIF GRENOBLE GRESIVAUDAN - Lucie RIONDEL O6 08 68 19 99
Cette annonce vous est proposée par Mme. Lucie RIONDEL - EI - NoRSAC: 889 131 611, Enregistré au Greffe du tribunal de commerce de GRENOBLE COMPTOIR IMMOBILIER DE FRANCE - Plus d'informations sur cif-immo.com - « Les informations sur les risques auxquels ce bien est exposé sont disponibles sur le site Géorisques : www.georisques.gouv.fr »
Voir plus

Référence: 20897
Bien en copropriété. Nombre de lots : 12. Charges de copropriété : 400 €.
Honoraires à la charge du vendeur.
Barème des honoraires
DPE
A
B
C
D
E
F
G
GES
A
B
C
D
E
F
G

Prêt immobilier

Vous souhaitez connaître votre capacité d’emprunt et trouver le meilleur crédit immobilier ?
Réaliser une simulation gratuite

Appartement à GRENOBLE
Appartement à GRENOBLE
Appartement à GRENOBLE
Appartement à GRENOBLE
Appartement à GRENOBLE
Appartement à GRENOBLE
Appartement à GRENOBLE
Ce site est protégé par reCAPTCHA la Politique de confidentialité et les Conditions d’utilisation de Google s’appliquent.
Obtenir un prêt immobilier au meilleur taux ?

En poursuivant votre navigation sans modifier vos paramètres, vous acceptez l'utilisation de cookies susceptibles de réaliser des statistiques de visite. Cliquez ici pour plus d'informations