Maison familiale avec jardin située au calme dans un quartier recherché

— L'hay-Les-Roses 94240 —
460 000 €
130 m² / 250 m²
6 pièces
parkingbalcon/terrassejardin

Quartier Centre Ville. L'Agence le Réseau avec une commission fixe de 8 500€ vous propose  à la vente cette Maison au calme et  individuelle de 130m2 avec 4 chambres sur une parcelle de 240m2, avec son jardin et sa terrasse, idéalement située au calme dans un quartier résidentiel et recherché  à proximité du métro ligne 14, des commerces, du marché et des écoles.
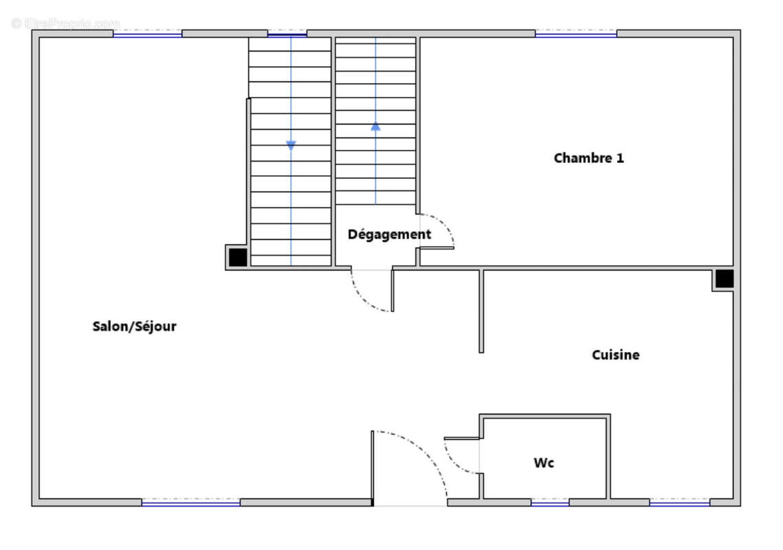
Cette Maison familiale au calme avec jardin de 1930 est individuelle et se compose :

Au rez de chaussée : d’une entrée, d'un double séjour traversant avec sa cuisine américaine aménagée et équipée, d'une chambre au calme avec rangements, et d'unWC séparé.
 
Au premier étage: se compose d'un palier desservant 2 chambres au calme avec rangements, et de nombreux rangements.

Au rez de jardin se compose d'un chambre avec rangements, d'une buanderie et d'une salle de bains avec WC.

La Maison dispose également d'une terrasse aménagée, d'un jardin et d'un cabanon.
 
De conception moderne, la maison bénéficie également d'une isolation faîte par l'extèrieure ainsi que la toîture, et de fenêtres en double vitrage.
 
Le DPE est en C.
 
Le prix de vente est de 460 000 euros incluant 8 500 euros d'honoraires d’agence (soit 451 500 euros hors honoraires d'agence et 1,2% d'honoraires à la charge de l'acquéreur).
Voir plus

Honoraires d'agence de 1.88% à la charge de l'acquéreur
Barème des honoraires
DPE
A
B
C
D
E
F
G
GES
A
B
C
D
E
F
G

Prêt immobilier

Vous souhaitez connaître votre capacité d’emprunt et trouver le meilleur crédit immobilier ?
Réaliser une simulation gratuite

Maison à L'HAY-LES-ROSES
Maison à L'HAY-LES-ROSES
Maison à L'HAY-LES-ROSES
Maison à L'HAY-LES-ROSES
Maison à L'HAY-LES-ROSES
Maison à L'HAY-LES-ROSES
Maison à L'HAY-LES-ROSES
Maison à L'HAY-LES-ROSES
Maison à L'HAY-LES-ROSES
Maison à L'HAY-LES-ROSES
Maison à L'HAY-LES-ROSES
Maison à L'HAY-LES-ROSES
Maison à L'HAY-LES-ROSES
Maison à L'HAY-LES-ROSES
Maison à L'HAY-LES-ROSES
Maison à L'HAY-LES-ROSES
Ce site est protégé par reCAPTCHA la Politique de confidentialité et les Conditions d’utilisation de Google s’appliquent.
Obtenir un prêt immobilier au meilleur taux ?

En poursuivant votre navigation sans modifier vos paramètres, vous acceptez l'utilisation de cookies susceptibles de réaliser des statistiques de visite. Cliquez ici pour plus d'informations