Bénéficiez des services de nos partenaires locaux soigneusement sélectionnés
pour vous accompagner dans votre parcours d'achat immobilier

Chatou quartier brimont terrain à bâtir de 800 m² à 10 mn du rer vendu avec permis de construire

— Chatou 78400 —
960 000 €
800 m²
parking

Nos partenaires locaux
Au coeur du quartier BRIMONT résidentiel et prisé découvrez ce terrain à bâtir de 800 m² en lot arrière, au calme et idéalement exposé plein sud. Situé à seulement 10 minutes à pied du RER, il offre un cadre privilégié pour réaliser un projet familial.

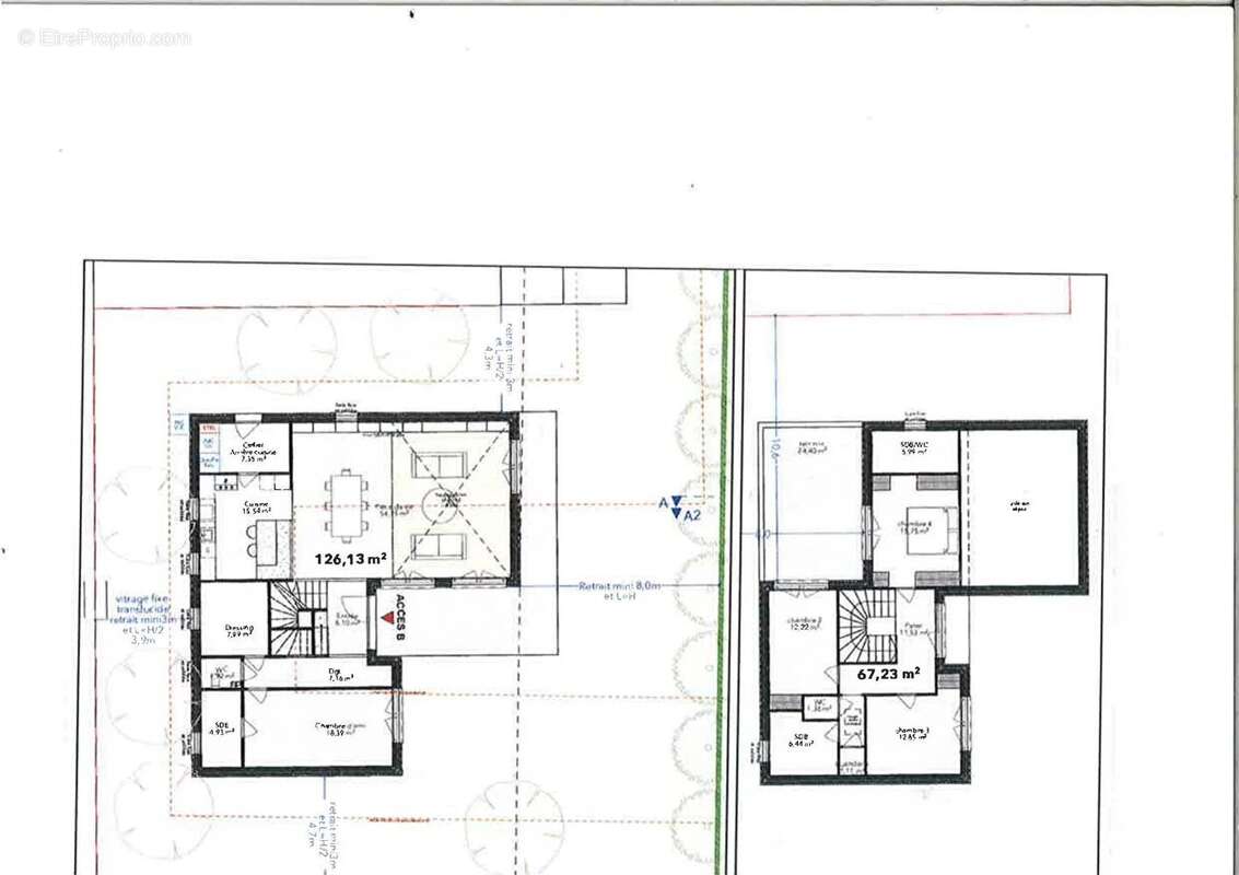
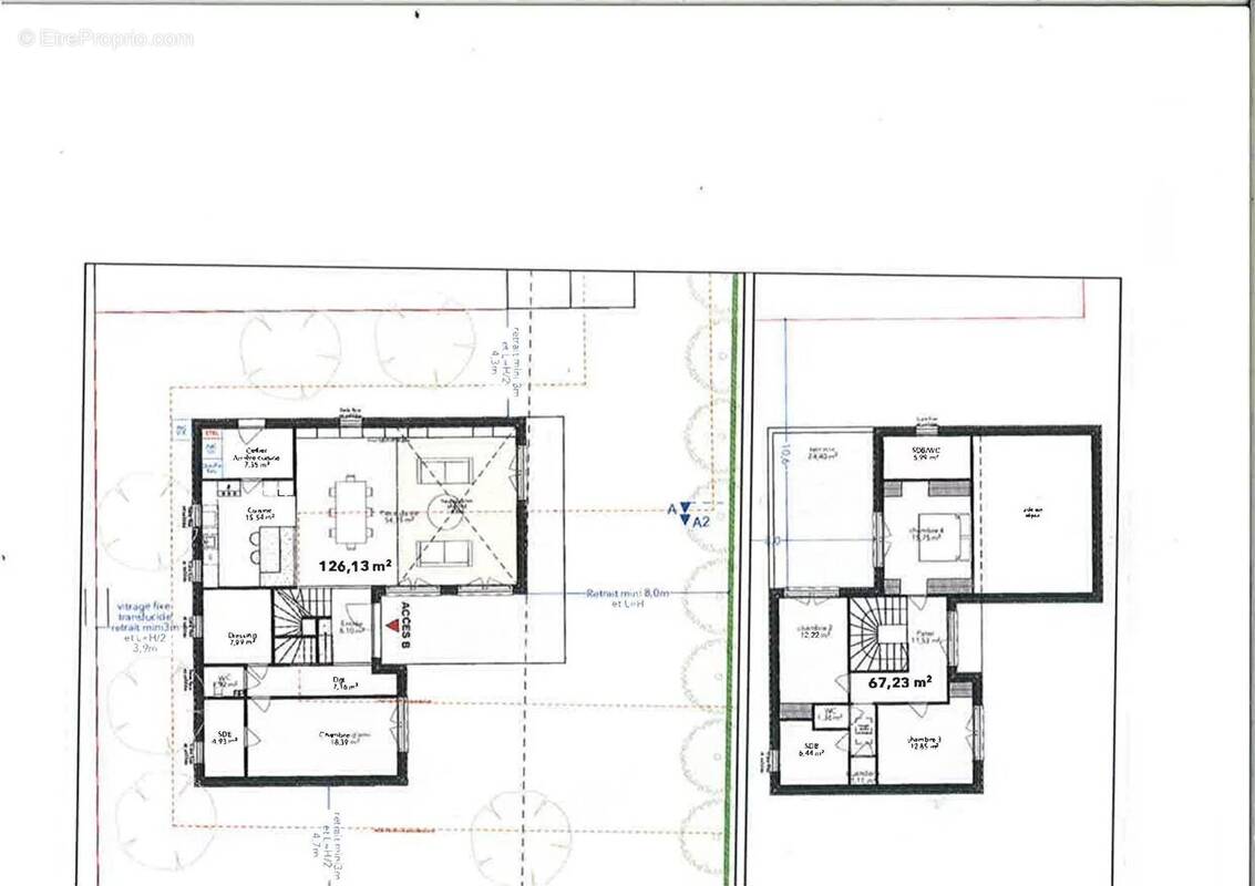
Le terrain est vendu avec un permis de construire déjà validé pour une maison contemporaine de 193 m² habitables avec sous-sol. Les propriétaires prennent en charge l'étude de sol ainsi que les honoraires d'architecte, vous permettant de lancer votre projet sereinement et sans démarches supplémentaires.

Le permis prévoit au rez-de-chaussée une vaste pièce de vie lumineuse de 70 m² avec salon, salle à manger et cuisine ouverte, complétée par une suite parentale de 31 m², un WC et une arrière-cuisine. À l'étage, trois chambres, deux salles de bains et un WC assurent confort et fonctionnalité. S'ajoutent un sous-sol ainsi que plusieurs places de stationnement extérieures.

Un terrain rare dans un environnement agréable et parfaitement adapté à une vie de famille. (3.23 % d'honoraires TTC à la charge de l'acquéreur.)
Voir plus

Référence: 5098

Prêt immobilier

Vous souhaitez connaître votre capacité d’emprunt et trouver le meilleur crédit immobilier ?
Réaliser une simulation gratuite

Terrain à CHATOU
Terrain à CHATOU
Terrain à CHATOU
Terrain à CHATOU
Ce site est protégé par reCAPTCHA la Politique de confidentialité et les Conditions d’utilisation de Google s’appliquent.
Obtenir un prêt immobilier au meilleur taux ?

En poursuivant votre navigation sans modifier vos paramètres, vous acceptez l'utilisation de cookies susceptibles de réaliser des statistiques de visite. Cliquez ici pour plus d'informations