Bénéficiez des services de nos partenaires locaux soigneusement sélectionnés
pour vous accompagner dans votre parcours d'achat immobilier

Beau t4 récent avec grande terrasse et deux garages – chamalières / carrefour europe

— Chamalieres 63400 —
309 900 €
72 m²
4 pièces
parkingbalcon/terrasseascenseur

Nos partenaires locaux
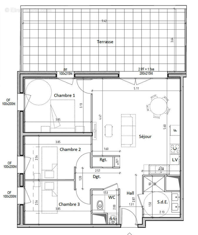
Situé à Chamalières, secteur Carrefour Europe, dans une résidence moderne de 2023, cet appartement T4 offre un cadre de vie confortable et pratique.
Il se compose d’un séjour lumineux avec cuisine ouverte, donnant directement sur une grande terrasse de 34 m².
La partie nuit comprend trois chambres, une salle d’eau et un WC séparé.
Atout rare dans le secteur : l’appartement dispose de deux garages fermés.
Un bien récent, bien placé et facile à vivre, proche des commerces, transports et écoles.
Voir plus

Référence: 462
DPE
A
B
C
D
E
F
G
GES
A
B
C
D
E
F
G

Prêt immobilier

Vous souhaitez connaître votre capacité d’emprunt et trouver le meilleur crédit immobilier ?
Réaliser une simulation gratuite

Appartement à CHAMALIERES
Appartement à CHAMALIERES
Appartement à CHAMALIERES
Appartement à CHAMALIERES
Appartement à CHAMALIERES
Appartement à CHAMALIERES
Appartement à CHAMALIERES
Appartement à CHAMALIERES
Ce site est protégé par reCAPTCHA la Politique de confidentialité et les Conditions d’utilisation de Google s’appliquent.
Obtenir un prêt immobilier au meilleur taux ?

En poursuivant votre navigation sans modifier vos paramètres, vous acceptez l'utilisation de cookies susceptibles de réaliser des statistiques de visite. Cliquez ici pour plus d'informations