Bénéficiez des services de nos partenaires locaux soigneusement sélectionnés
pour vous accompagner dans votre parcours d'achat immobilier

Appartement t2 de 40m² + parking - résidence 'les nouveaux thermes'

— Aix-Les-Bains 73100 —
281 000 €
40 m²
2 pièces
parkingbalcon/terrasseascenseur

Nos partenaires locaux
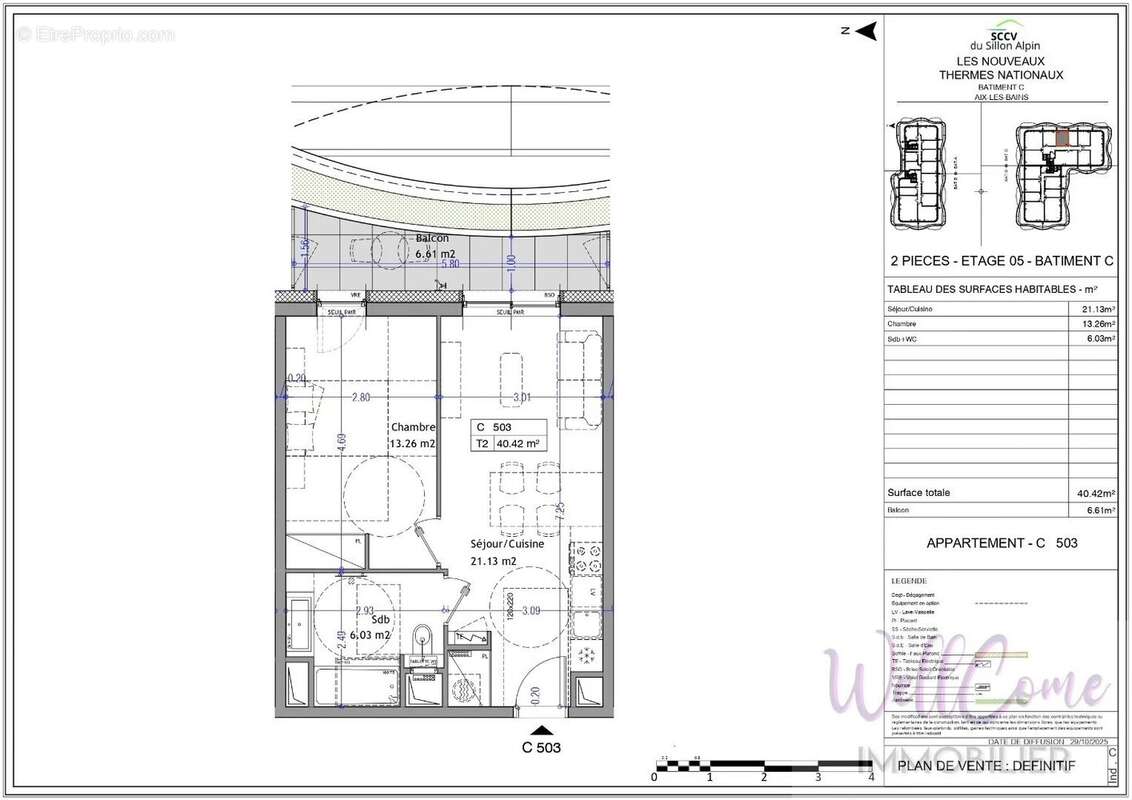
À Aix-les-Bains, dans la prestigieuse résidence « Les Nouveaux Thermes » - Découvrez cet appartement neuf 2 pièces de 40,42m² située au 5ème étage côté Est du bâtiment Sud. Cet appartement haut de gamme comprend : pièce de vie de 21,13 m² accueillant séjour cuisine et prolongée par un balcon végétalisée de 6,61m² orienté Est. une chambre de 13,26m², une salle de bains avec wc. Vendu avec 1 stationnement en sous-sol sécurisé. La résidence se distingue par ses prestations premium et son engagement environnemental : façades végétalisées sur 3,5 km, plus de 15 000 plantes, toitures vertes, récupération des eaux pluviales et planchers chauffants/rafraîchissants par géothermie. Contactez votre agence WellCome Immobilier pour réserver cet appartement dexception parmi les premiers lots disponibles ! Dautres appartements neufs du T1 au T6 sont également proposés. Frais de notaire réduits Programme certifié RE2020 seuil 2022 & NF Habitat HQE Livraison 1er trimestre 2029 Surface CARREZ : 40.42 m²
Voir plus

Référence: 73028803
Barème des honoraires

Prêt immobilier

Vous souhaitez connaître votre capacité d’emprunt et trouver le meilleur crédit immobilier ?
Réaliser une simulation gratuite

Appartement à AIX-LES-BAINS
Appartement à AIX-LES-BAINS
Appartement à AIX-LES-BAINS
Appartement à AIX-LES-BAINS
Appartement à AIX-LES-BAINS
Appartement à AIX-LES-BAINS
Appartement à AIX-LES-BAINS
Appartement à AIX-LES-BAINS
Appartement à AIX-LES-BAINS
Appartement à AIX-LES-BAINS
Ce site est protégé par reCAPTCHA la Politique de confidentialité et les Conditions d’utilisation de Google s’appliquent.
Obtenir un prêt immobilier au meilleur taux ?

En poursuivant votre navigation sans modifier vos paramètres, vous acceptez l'utilisation de cookies susceptibles de réaliser des statistiques de visite. Cliquez ici pour plus d'informations