Maison 2 chambre(s) à vendre

— Haucourt-Moulaine 54860 —
135 000 €
70 m² / 195 m²
5 pièces
parking

Maison mitoyenne 70 m² – 2 chambres – Jardin & dépendance – Haucourt-Moulaine

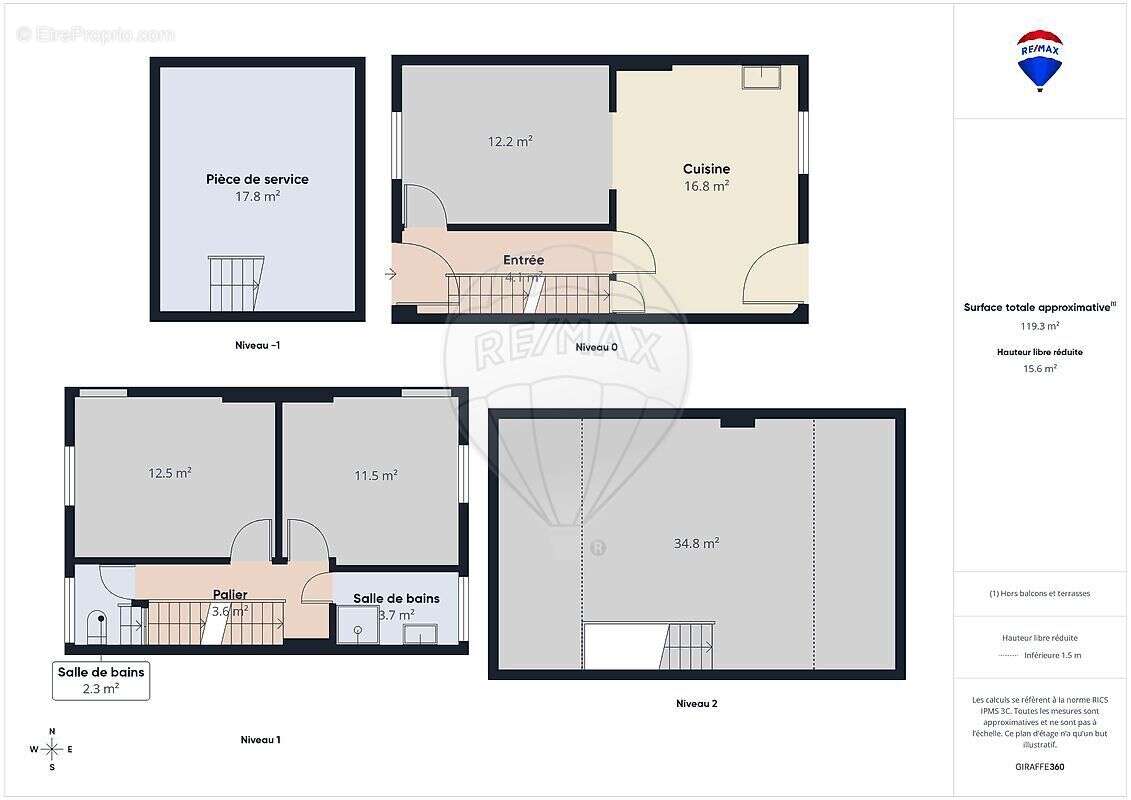
Située dans un quartier calme de Haucourt-Moulaine, à proximité immédiate des commodités et de la frontière luxembourgeoise, cette maison mitoyenne des deux côtés offre 70 m² habitables avec un grenier aménageable de 35 m² et un beau potentiel d’évolution.

Description du bien

Au rez-de-chaussée, vous trouverez :

Une pièce de vie ouverte regroupant cuisine, salle à manger et salon
Un accès direct depuis la cuisine vers la terrasse et le jardin

À l’étage :

Deux chambres
Une salle de douche
Un toilette séparé

Un grenier aménageable vient compléter l’ensemble, idéal pour créer une chambre supplémentaire, un bureau ou un espace de loisirs.

La maison dispose également d’une cave bétonnée parfaite pour le stockage.

À l’arrière :

Une terrasse
Une dépendance de 18 m²
Un jardin en hauteur, accessible par un escalier directement depuis la terrasse

Éléments techniques
Toiture refaite en 2014
Fenêtres et portes de 1995
Chaudière gaz 2021
Pas d’isolation murale ni sous toiture

Maison saine, fonctionnelle, mais nécessitant un rafraîchissement et une amélioration énergétique.*

Points forts
La maison bénéficie d’une localisation calme et proche des axes routiers, offrant un cadre de vie pratique et agréable. Elle dispose également d’un grenier aménageable permettant d’augmenter la surface habitable selon vos besoins. La dépendance de 18 m² à l’arrière constitue un vrai atout supplémentaire pour du stockage ou un futur aménagement.

Points faibles
Un rafraîchissement général est à prévoir afin de moderniser l’ensemble. Le bien ne possède pas de garage, ce qui peut nécessiter du stationnement extérieur. Des travaux énergétiques seront également à envisager pour améliorer les performances et le confort.




 
Honoraires à la charge du vendeur.
Les informations sur les risques auxquels ce bien est exposé sont disponibles sur le site Géorisques : www.georisques.gouv.fr .
Voir plus

Référence: 749241111-10
Honoraires à la charge du vendeur.
DPE
A
B
C
D
E
F
G
GES
A
B
C
D
E
F
G

Prêt immobilier

Vous souhaitez connaître votre capacité d’emprunt et trouver le meilleur crédit immobilier ?
Réaliser une simulation gratuite

Maison à HAUCOURT-MOULAINE
Maison à HAUCOURT-MOULAINE
Maison à HAUCOURT-MOULAINE
Maison à HAUCOURT-MOULAINE
Maison à HAUCOURT-MOULAINE
Maison à HAUCOURT-MOULAINE
Maison à HAUCOURT-MOULAINE
Maison à HAUCOURT-MOULAINE
Maison à HAUCOURT-MOULAINE
Maison à HAUCOURT-MOULAINE
Maison à HAUCOURT-MOULAINE
Maison à HAUCOURT-MOULAINE
Maison à HAUCOURT-MOULAINE
Maison à HAUCOURT-MOULAINE
Maison à HAUCOURT-MOULAINE
Maison à HAUCOURT-MOULAINE
Maison à HAUCOURT-MOULAINE
Maison à HAUCOURT-MOULAINE
Maison à HAUCOURT-MOULAINE
Maison à HAUCOURT-MOULAINE
Maison à HAUCOURT-MOULAINE
Ce site est protégé par reCAPTCHA la Politique de confidentialité et les Conditions d’utilisation de Google s’appliquent.
Obtenir un prêt immobilier au meilleur taux ?

En poursuivant votre navigation sans modifier vos paramètres, vous acceptez l'utilisation de cookies susceptibles de réaliser des statistiques de visite. Cliquez ici pour plus d'informations