Bénéficiez des services de nos partenaires locaux soigneusement sélectionnés
pour vous accompagner dans votre parcours d'achat immobilier

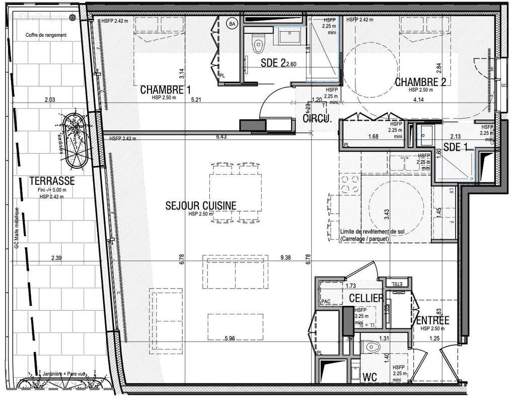
Appartement 93m² à pornichet

— Pornichet 44380 —
1 495 000 €
94 m²
3 pièces
parkingbalcon/terrasseascenseur

Nos partenaires locaux
L'agence 'MON BIEN A LA MER', spécialiste de l'immobilier neuf sur les côtes Bretonnes, vous présente :

Très rare : résidence neuve en front de mer en cours d'achèvement à PORNICHET.
Seulement 23 appartements de grand standing.
Situation exceptionnelle : sur la place centrale, marché plage commerces à pied.
Livraison printemps 2026, frais de notaire réduits.

Ascenseur, parkings sous sol & Boxs, local vélo, local planches surf, boites aux lettres connectés, plancher chauffant/rafraichissant, grandes surfaces vitrées toute hauteur, prises individuelles pour voitures électriques, pompe à chaleur, domotique : tout a été pensé pour votre confort.

Cet appartement de 93,6m2 est situé au 2è étage, plein front de mer, exposé sud-ouest.
Le séjour de 50,8m2+cellier et la suite parentale s'ouvrent sur une superbe terrasse de 23,3m2.
La deuxième chambre possède aussi sa propre salle d'eau.
Placards dans chaque chambre.
Dans l'entrée : wc séparés et placards.
Parking sous sol inclus.

Nous Consulter pour visite du chantier.

Honoraires à la charge du vendeur. Non soumis au DPE. Les informations sur les risques auxquels ce bien est exposé sont disponibles sur le site Géorisques : georisques.gouv.fr.

Votre conseiller MON BIEN A LA MER : Gérant - .fr MON BIEN A LA MER
Carte T CPI 22[Coordonnées masquées]25 040
RCP ACM IARD B1 7025278
Voir plus

Référence: VA6266-BIENALAMER
Honoraires à la charge du vendeur.
Barème des honoraires

Prêt immobilier

Vous souhaitez connaître votre capacité d’emprunt et trouver le meilleur crédit immobilier ?
Réaliser une simulation gratuite

Appartement à PORNICHET
Appartement à PORNICHET
Appartement à PORNICHET
Appartement à PORNICHET
Appartement à PORNICHET
Appartement à PORNICHET
Appartement à PORNICHET
Appartement à PORNICHET
Appartement à PORNICHET
Ce site est protégé par reCAPTCHA la Politique de confidentialité et les Conditions d’utilisation de Google s’appliquent.
Obtenir un prêt immobilier au meilleur taux ?

En poursuivant votre navigation sans modifier vos paramètres, vous acceptez l'utilisation de cookies susceptibles de réaliser des statistiques de visite. Cliquez ici pour plus d'informations