4 pièces lumineux avec accès direct au parc - saint-brice

— Saint-Brice-Sous-Foret 95350 —
238 000 €
81 m²
4 pièces
parking

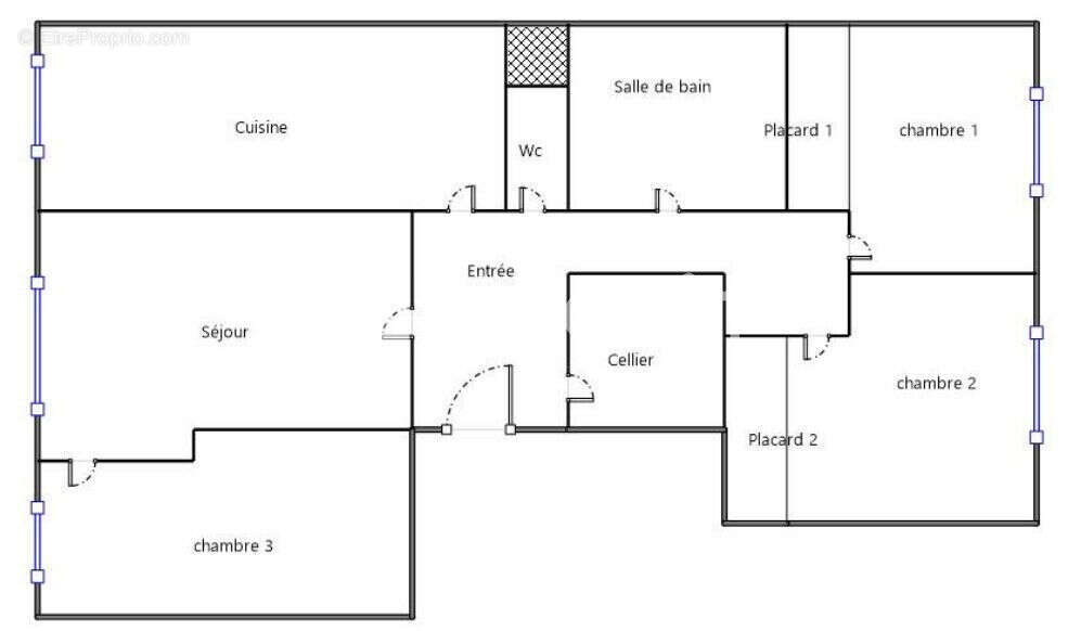
Laforêt Montmorency propose cet appartement 4 pièces de 80,67 m², situé au 1er étage d'une résidence calme et verdoyante de Saint-Brice-sous-Forêt, organisée autour d'une placette arborée avec accès direct au parc Georges Brassens et à ses équipements sportifs. Il offre une entrée spacieuse, un séjour lumineux, une cuisine indépendante aménagée, trois chambres confortables, une salle de bains, un dressing et un WC séparé. La distribution est fluide et l'environnement particulièrement agréable, avec une vue dégagée sur les espaces verts. Une place de parking extérieure complète ce bien. On aime : - Le séjour lumineux et la vue dégagée - Les 3 chambres et le dressing - La proximité immédiate du parc Georges Brassens (aires de jeux, city stade, espaces sportifs) - La résidence calme, arborée et familiale - La cuisine indépendante équipée - La classe énergétique C - Les commerces et écoles facilement accessibles Copropriété de 16 lots (Pas de procédure en cours). Charges annuelles : 1200 euros.
Voir plus

Référence: 398
Bien en copropriété. Nombre de lots : 16. Charges de copropriété : 1200 €.
Honoraires à la charge du vendeur.
Barème des honoraires
DPE
A
B
C
D
E
F
G
GES
A
B
C
D
E
F
G

Prêt immobilier

Vous souhaitez connaître votre capacité d’emprunt et trouver le meilleur crédit immobilier ?
Réaliser une simulation gratuite

Appartement à SAINT-BRICE-SOUS-FORET
Appartement à SAINT-BRICE-SOUS-FORET
Appartement à SAINT-BRICE-SOUS-FORET
Appartement à SAINT-BRICE-SOUS-FORET
Appartement à SAINT-BRICE-SOUS-FORET
Appartement à SAINT-BRICE-SOUS-FORET
Appartement à SAINT-BRICE-SOUS-FORET
Appartement à SAINT-BRICE-SOUS-FORET
Appartement à SAINT-BRICE-SOUS-FORET
Ce site est protégé par reCAPTCHA la Politique de confidentialité et les Conditions d’utilisation de Google s’appliquent.
Obtenir un prêt immobilier au meilleur taux ?

En poursuivant votre navigation sans modifier vos paramètres, vous acceptez l'utilisation de cookies susceptibles de réaliser des statistiques de visite. Cliquez ici pour plus d'informations