Bénéficiez des services de nos partenaires locaux soigneusement sélectionnés
pour vous accompagner dans votre parcours d'achat immobilier

Appartement 150m² à montpellier

— Montpellier 34000 —
780 000 €
150 m²
6 pièces

Nos partenaires locaux
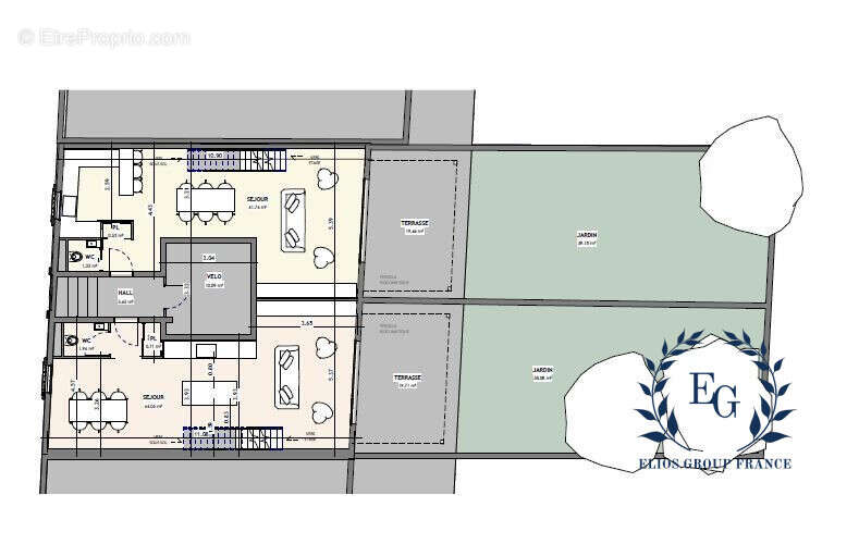
À deux pas de l'avenue Clémenceau, dans un quartier central de Montpellier en pleine redynamisation, découvrez un projet aussi rare que séduisant : la réhabilitation complète d'un immeuble des années 1930, au charme d'époque préservé, qui donnera naissance à deux magnifiques triplex avec jardins privatifs.

Dans cette maison de maître aux lignes élégantes et aux détails architecturaux typiques, 2 lots de près de 150 m² déploiera ses volumes sur trois niveaux.

Le rez-de-chaussée s'ouvrira sur une spacieuse pièce de vie traversante, baignée de lumière grâce à une superbe véranda donnant sur un jardin intime au clame d'environ 80 m², un véritable luxe en ville.
L'étage enfant, au premier niveau, accueillera trois belles chambres et deux salles d'eau modernes. Enfin, sous les toits, place au calme et à l'intimité avec une grande suite parentale dotée d'une verrière majestueuse, de deux dressings, d'un bureau, et d'une salle de bain contemporaine, le tout avec une vue imprenable sur les toits montpelliérains.

Pensés comme de véritables maisons de ville, ces deux triplex jumeaux offriront également chacun un accès privatif à une cave indépendante de plus de 50 m2, idéales pour le stockage, ainsi qu'un espace commun dédié aux vélos.

La qualité de la rénovation à venir, alliée à la noblesse de l'existant (hauteurs sous plafond, ferronneries, volumes...), en fait une opportunité rare sur le marché.

Visites de l'immeuble déjà possibles. Une belle histoire à écrire dès aujourd'hui !

Contactez-nous dès maintenant pour en savoir plus et réserver votre visite au [Coordonnées masquées]

Non soumis au DPE. Les informations sur les risques auxquels ce bien est exposé sont disponibles sur le site Géorisques : georisques.gouv.fr.

Votre conseiller ELIOS GROUP IMMOBILIER : Emilie BARRA
Agent commercial (Entreprise individuelle)
RSAC 921 017 638.
Les informations sur les risques auxquels ce bien est exposé sont disponibles sur le site Géorisques : www.georisques.gouv.fr
Voir plus

Référence: 1282-ELIOSGROUP1
Honoraires à la charge de l'acquéreur.
Barème des honoraires

Prêt immobilier

Vous souhaitez connaître votre capacité d’emprunt et trouver le meilleur crédit immobilier ?
Réaliser une simulation gratuite

Appartement à MONTPELLIER
Appartement à MONTPELLIER
Appartement à MONTPELLIER
Appartement à MONTPELLIER
Appartement à MONTPELLIER
Appartement à MONTPELLIER
Appartement à MONTPELLIER
Ce site est protégé par reCAPTCHA la Politique de confidentialité et les Conditions d’utilisation de Google s’appliquent.
Obtenir un prêt immobilier au meilleur taux ?

En poursuivant votre navigation sans modifier vos paramètres, vous acceptez l'utilisation de cookies susceptibles de réaliser des statistiques de visite. Cliquez ici pour plus d'informations