Bénéficiez des services de nos partenaires locaux soigneusement sélectionnés
pour vous accompagner dans votre parcours d'achat immobilier

Appartement 14m² à viroflay

— Viroflay 78220 —
77 500 €
14 m²
1 pièce
ascenseur

Nos partenaires locaux
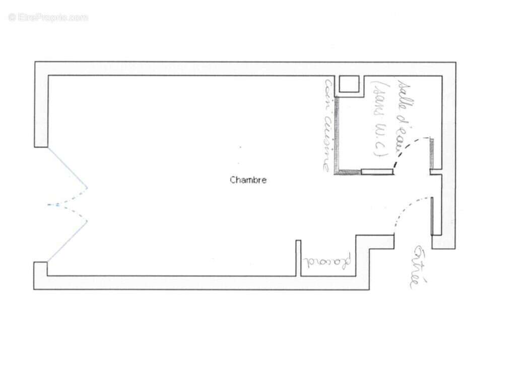
RIVE-DROITE-POINTE DE CHAVILLE: Dans une copropriété en pierre de taille avec gardien, chambre de service de 14 m² située en rez-de-chaussée, donnant sur la verdure.Cette chambre et dans une copropriété sécurisée, bien entretenue et offre un environnement calme et sans vis-à-vis.
Cette chambre de service, en bon état, présente un réel potentiel d'aménagement.Possibilité de créer une salle d'eau à l'emplacement actuel du coin cuisine. La nouvelle cuisine pourrait alors être déplacée le long du mur aveugle mitoyen de la future salle d'eau, permettant ainsi d'optimiser l'espace de travail et les rangements.
Ce bien est soumis au statut de la copropriété. Copropriété de 75 lots principaux, aucune procédure en cours.Quote-part des charges annuelles : 617,38€ /an. Charges récupérables : 409,77€.Estimation des coûts annuels d'énergie du logement entre 190€ et 320€ (consommation énergie primaire 227kWh/m2/an et émission de gaz à effet de serre 43kg CO2/m2/an).Prix de vente 70000€ hors honoraires. Honoraires forfaitaire de 7500€ TTC à la charge de l'acquéreur, soit un prix net vendeur de 70 000€. Ce bien est proposé par un agent commercial, siren 800 339 715.

Honoraires inclus de 10.71% TTC à la charge de l'acquéreur. Prix hors honoraires 70 000 €. Dans une copropriété de 75 lots. Quote-part moyenne du budget prévisionnel 656,44 €/an. Aucune procédure n'est en cours. Classe énergie D, Classe climat D Montant moyen estimé des dépenses annuelles d'énergie pour un usage standard, établi à partir des prix de l'énergie de l'année 2021 : entre 190.00 et 320.00 €. Les informations sur les risques auxquels ce bien est exposé sont disponibles sur le site Géorisques : georisques.gouv.fr.

Votre conseiller Clic et Biens Viroflay : Nikhil Bournisien
Agent commercial (Entreprise individuelle)
RSAC 800339715
RCP SO.CAF
Voir plus

Référence: V-BIS1-CLICETBIENS78220
Bien en copropriété. Nombre de lots : 75. Charges de copropriété : 656 €.
Honoraires d'agence de 10.71% à la charge de l'acquéreur
Barème des honoraires
DPE
A
B
C
D
E
F
G
GES
A
B
C
D
E
F
G

Prêt immobilier

Vous souhaitez connaître votre capacité d’emprunt et trouver le meilleur crédit immobilier ?
Réaliser une simulation gratuite

Appartement à VIROFLAY
Appartement à VIROFLAY
Appartement à VIROFLAY
Appartement à VIROFLAY
Appartement à VIROFLAY
Etat actuel sans salle d'eau - Appartement à VIROFLAY
Etat actuel sans salle d'eau
Etat projeté avec salle d'eau - Appartement à VIROFLAY
Etat projeté avec salle d'eau
Ce site est protégé par reCAPTCHA la Politique de confidentialité et les Conditions d’utilisation de Google s’appliquent.
Obtenir un prêt immobilier au meilleur taux ?

En poursuivant votre navigation sans modifier vos paramètres, vous acceptez l'utilisation de cookies susceptibles de réaliser des statistiques de visite. Cliquez ici pour plus d'informations