Bénéficiez des services de nos partenaires locaux soigneusement sélectionnés
pour vous accompagner dans votre parcours d'achat immobilier

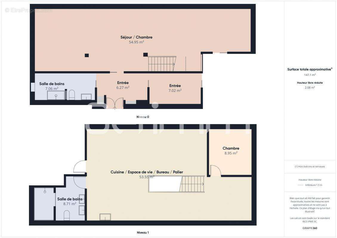
Vente - appartement - duplex 5 pièces - 158,36 m² - 469 000 € -

— Grenoble 38000 —
469 000 €
158 m²
5 pièces

Nos partenaires locaux
Grenoble – Rue Docteur Mazet

Appartement atypique en duplex type loft

Situé dans une rue recherchée et prisée du centre de Grenoble, découvrez ce bien rare alliant charme, volume et prestations haut de gamme.

Cet appartement en monopropriété, à l'arrière d'une copropriété, offre un calme absolu tout en restant à proximité immédiate des commerces, des transports et de l'hyper-centre.

Les atouts :

• Superficie généreuse répartie sur deux niveaux

• Deux belles chambres confortables

• Deux salles de bain

• Un espace bureau idéal pour le télétravail

• Deux pièces de vie distinctes offrant de multiples possibilités d'aménagement

• Cuisine entièrement équipée, ouverte sur un séjour lumineux au style loft

• Volumes atypiques et ambiance chaleureuse

Ce bien séduira les amateurs de lieux de vie uniques, recherchant à la fois le cachet de l'ancien et le confort du contemporain.

- Emplacement prisé – Rue Dr Mazet, Grenoble

Pour plus d'informations ou organiser une visite, contactez Cloé Renaudin.
Bien soumis au statut de la copropriété : Non.
Procédure en cours sur la copropriété : Non.
DPE : 90 (B).
Pour découvrir cette réelle opportunité d'acquisition, contactez-moi : Cloé RENAUDIN - [Coordonnées masquées] - gerimm - 27 Boulevard des Alpes - 38240 MEYLAN.
Nos honoraires : https://www.gerimm.fr/metier/honoraires-agence
Voir plus

Référence: 75314
Honoraires à la charge du vendeur.
DPE
A
B
C
D
E
F
G
GES
A
B
C
D
E
F
G

Prêt immobilier

Vous souhaitez connaître votre capacité d’emprunt et trouver le meilleur crédit immobilier ?
Réaliser une simulation gratuite

Appartement à GRENOBLE
Appartement à GRENOBLE
Appartement à GRENOBLE
Appartement à GRENOBLE
Appartement à GRENOBLE
Appartement à GRENOBLE
Appartement à GRENOBLE
Appartement à GRENOBLE
Appartement à GRENOBLE
Appartement à GRENOBLE
Appartement à GRENOBLE
Appartement à GRENOBLE
Appartement à GRENOBLE
Appartement à GRENOBLE
Appartement à GRENOBLE
Appartement à GRENOBLE
Appartement à GRENOBLE
Appartement à GRENOBLE
Appartement à GRENOBLE
Appartement à GRENOBLE
Appartement à GRENOBLE
Ce site est protégé par reCAPTCHA la Politique de confidentialité et les Conditions d’utilisation de Google s’appliquent.
Obtenir un prêt immobilier au meilleur taux ?

En poursuivant votre navigation sans modifier vos paramètres, vous acceptez l'utilisation de cookies susceptibles de réaliser des statistiques de visite. Cliquez ici pour plus d'informations