Vente - appartement - duplex 4 pièces - 126,11 m² - 425 000 € -

— Lyon-8e 69008 —
425 000 €
126 m²
4 pièces
balcon/terrasseascenseur

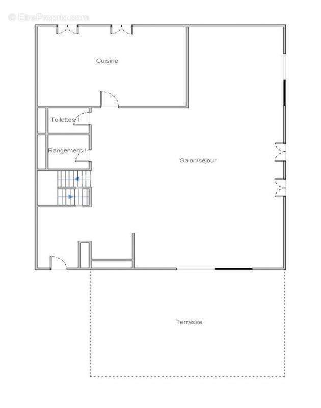
Découvrez ce magnifique appartement en duplex de 4 pièces situé dans le 8e arrondissement de Lyon. Offrant une surface habitable de 125,18 mètres carrés, ce bien est baigné de lumière naturelle, créant une ambiance chaleureuse et accueillante. Situé au 4e étage d'un immeuble de 4 étages, ce duplex est accessible par ascenseur, dispose d'une entrée independante, garantissant un confort optimal au quotidien.

Le duplex se compose de 3 chambres spacieuses dont une suite parentale, idéales pour une famille ou pour recevoir des invités. La cuisine est entièrement équipée, offrant tout le confort nécessaire pour les amateurs de cuisine. Le séjour beneficie d'une terrasse de 23m2 et la chambre parentale est équipée d'un dressing et bénéficie d'un balcon, parfait pour profiter des beaux jours.

Le chauffage au gaz (comptage individuel) assure une température agréable tout au long de l'année, tandis que la climatisation réversible permet de rafraîchir les espaces en été. Les nombreux rangements intégrés dans chaque pièce offrent un espace de stockage optimal.
Avec ses deux salles de bain séparées, des toilettes à chaque niveau, ce duplex allie fonctionnalité et confort.

Posssibilité de deux garages en supplément, offrant une solution de stationnement sécurisée et pratique. De plus la copropriété dispose d'un jardin offrant un espace extérieur pour se détendre.

Le prix de vente est fixé à 459 000 euros, reflétant la qualité et le standing de ce bien exceptionnel. Ne manquez pas cette opportunité unique de vous installer dans un quartier prisé de Lyon, alliant tranquillité et proximité des commodités.
Bien soumis au statut de la copropriété : Non.
Charges courantes annuelles de copropriété : 3 880 €.
Procédure en cours sur la copropriété : Non.
DPE : 138 (C).
Pour découvrir cette réelle opportunité d'acquisition, contactez-moi : Philippe AGUILAR - [Coordonnées masquées] - régie gindre - 147 Bd de la croix rousse - 69004 Lyon.
Nos honoraires : https://www.regiegindre.fr/metier/honoraires-agence
Voir plus

Référence: 76358
Honoraires à la charge du vendeur.
DPE
A
B
C
D
E
F
G
GES
A
B
C
D
E
F
G

Prêt immobilier

Vous souhaitez connaître votre capacité d’emprunt et trouver le meilleur crédit immobilier ?
Réaliser une simulation gratuite

Appartement à LYON-8E
Appartement à LYON-8E
Appartement à LYON-8E
Appartement à LYON-8E
Appartement à LYON-8E
Appartement à LYON-8E
Appartement à LYON-8E
Appartement à LYON-8E
Appartement à LYON-8E
Appartement à LYON-8E
Appartement à LYON-8E
Appartement à LYON-8E
Appartement à LYON-8E
Ce site est protégé par reCAPTCHA la Politique de confidentialité et les Conditions d’utilisation de Google s’appliquent.
Obtenir un prêt immobilier au meilleur taux ?

En poursuivant votre navigation sans modifier vos paramètres, vous acceptez l'utilisation de cookies susceptibles de réaliser des statistiques de visite. Cliquez ici pour plus d'informations