Bénéficiez des services de nos partenaires locaux soigneusement sélectionnés
pour vous accompagner dans votre parcours d'achat immobilier

Appartement le mans

— Le Mans 72000 —
199 500 €
87 m²
1 pièce
parkingbalcon/terrasse

Nos partenaires locaux
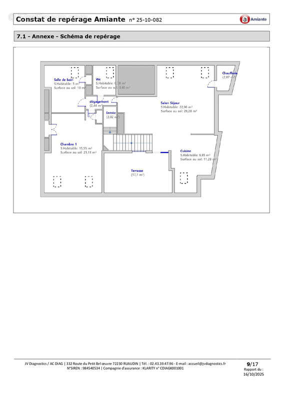
Votre agence Fontaine Immobilier vous propose sur la commune du Mans secteur gare / Palais des congrès (Rue Paul Beldant ). Un appartement au 5ème et dernier étage comprenant : Entrée, cuisine ouverte sur salon, une chambre, salle de bains, wc, chaufferie, cave, garage. Surface totale de l'appartement 87,28 surface Carrez 57,40.

Bien en copropriété. Charges de copropriété : 1792 €.
Honoraires d'agence de 5% à la charge de l'acquéreur
Barème des honoraires
DPE
A
B
C
D
E
F
G
GES
A
B
C
D
E
F
G

Prêt immobilier

Vous souhaitez connaître votre capacité d’emprunt et trouver le meilleur crédit immobilier ?
Réaliser une simulation gratuite

Appartement à LE MANS
Appartement à LE MANS
Appartement à LE MANS
Appartement à LE MANS
Appartement à LE MANS
Appartement à LE MANS
Appartement à LE MANS
Appartement à LE MANS
Appartement à LE MANS
Ce site est protégé par reCAPTCHA la Politique de confidentialité et les Conditions d’utilisation de Google s’appliquent.
Obtenir un prêt immobilier au meilleur taux ?

En poursuivant votre navigation sans modifier vos paramètres, vous acceptez l'utilisation de cookies susceptibles de réaliser des statistiques de visite. Cliquez ici pour plus d'informations