Maison de vilalge de 150 m² renovee avec deux appartements independants

— Espinasses 05190 —
298 000 €
150 m²
2 pièces

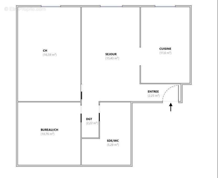
1894 - L'immobilier vous propose à Espinasses, une maison de village rénovée de 150 m² composée de deux appartements (65 m² et 77 m²). Chaque lot dispose de sa grande cave environ 18 m² et d'un accès à un petit jardin commun à l'arrière de la maison.
Balcon, double vitrage, chauffage à pellets, toiture récente.
Idéal famille ou investisseur.
Honoraires à charge vendeur.
Contact Cathy Lechevallier - EI: [Coordonnées masquées]
Agent commercial en immobilier enregistré au RSAC du greffe de Nice sous le n°911317907 titulaire de la carte de démarchage immobilier pour le compte de la société 1894-L'immobilier.
La présente annonce a été rédigée sous la responsabilité éditoriale de l'agent commercial en contact.
Selon l'article L.561.5 du Code Monétaire et Financier, pour l'organisation de la visite, la présentation d'une pièce d'identité vous sera demandée.
Référence agence : 14692
Voir plus

Référence: 5ULA-T2O-IEP
Honoraires à la charge du vendeur.
DPE
A
B
C
D
E
F
G
GES
A
B
C
D
E
F
G

Prêt immobilier

Vous souhaitez connaître votre capacité d’emprunt et trouver le meilleur crédit immobilier ?
Réaliser une simulation gratuite

Maison à ESPINASSES
Maison à ESPINASSES
Maison à ESPINASSES
Maison à ESPINASSES
Maison à ESPINASSES
Ce site est protégé par reCAPTCHA la Politique de confidentialité et les Conditions d’utilisation de Google s’appliquent.
Obtenir un prêt immobilier au meilleur taux ?

En poursuivant votre navigation sans modifier vos paramètres, vous acceptez l'utilisation de cookies susceptibles de réaliser des statistiques de visite. Cliquez ici pour plus d'informations