Bénéficiez des services de nos partenaires locaux soigneusement sélectionnés
pour vous accompagner dans votre parcours d'achat immobilier

Maison 164m² à mezidon-canon

— Mezidon-Canon 14270 —
310 000 €
164 m² / 580 m²
6 pièces
parkingjardin

Nos partenaires locaux
Nouvelle exclusivité chez UNI Immobilier !

Maison T7 de 164 m² (carrez) avec double garage et dépendance à rénover

Localisation : Mézidon Vallée d'Auge - à 4 min de la gare SNCF

Découvrez ce bien à travers le mot du propriétaire : « Construite en 1898 par le pharmacien du village, cette maison a gardé tout son charme avec ses parquets d'époque et ses belles cheminées en marbre. Nous avons toujours aimé son emplacement idéal, à 4 minutes de la gare et seulement 15 minutes en train de Caen. C'est une maison lumineuse, pleine de caractère, dans laquelle on se sent tout de suite bien. Nous espérons qu'elle trouvera des propriétaires qui sauront en profiter autant que nous. »

Les points forts de ce bien :

- Maison de caractère du 19e siècle

- Cheminées en marbre, parquets massifs et belle hauteur sous plafond

- Refection complète de la toiture en 2020

- Idéal location courte durée pour 9 voyageurs

Année de construction : 1898

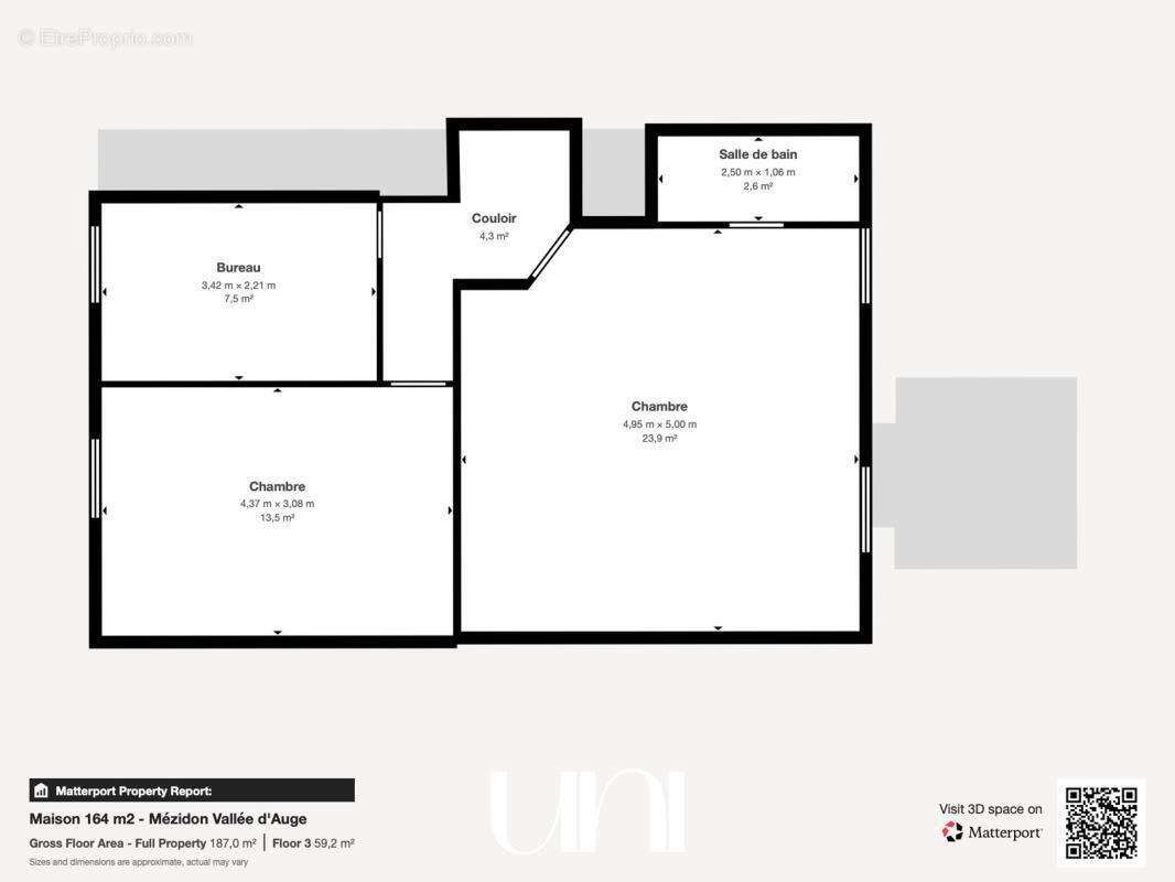
Cette maison se compose comme suit :

Au rez-de-chaussée

- 1 cuisine

- 1 salle à manger ouverte sur salon

- 1 WC

1er étage :

- 2 chambres

- 1 salle de bain avec WC

- 1 petite pièce servant de dressing

2eme étage :

- 2 chambres dont 1 avec salle de douche

- 1 bureau

- 1 WC

Annexes :

- 1 double garage

- 1 dépendance à rénover

Huisseries : double vitrage PVC et bois

Type de chauffage : chaudière gaz

DPE : D (229) GES : D (49)

Estimation des coûts annuels d'énergie du logement : entre 3 260 euros et 4 460 euros

Taxe foncière : 1373 €

Les informations sur les risques auxquels ce bien est exposé sont disponibles sur le site Géorisques : www.georisques.gouv.fr

Prix : 310 000 euros HAI

Taux d'honoraires : 6,90 % TTC, soit 290 000 euros hors frais.

Lien de l'annonce avec visite virtuelle : https://my.matterport.com/show/?m=qHu55JtL5uU

Lien du site internet : www.uni-immobilier.fr

Contact direct :

Malick DIENG

[Coordonnées masquées]

[Coordonnées masquées]

Cette annonce a été rédigée par l'agence immobilière UNI (SIRET : 9[Coordonnées masquées]011) et par EI Malick DIENG, mandataire indépendant en immobilier, agent commercial de l'agence UNI (Immatriculation au RCS : 949 706 139 R.C.S CAEN)
Voir plus

Référence: 7292613
DPE
A
B
C
D
E
F
G
GES
A
B
C
D
E
F
G

Prêt immobilier

Vous souhaitez connaître votre capacité d’emprunt et trouver le meilleur crédit immobilier ?
Réaliser une simulation gratuite

Maison à MEZIDON-CANON
Maison à MEZIDON-CANON
Maison à MEZIDON-CANON
Maison à MEZIDON-CANON
Maison à MEZIDON-CANON
Maison à MEZIDON-CANON
Maison à MEZIDON-CANON
Maison à MEZIDON-CANON
Maison à MEZIDON-CANON
Maison à MEZIDON-CANON
Maison à MEZIDON-CANON
Maison à MEZIDON-CANON
Maison à MEZIDON-CANON
Maison à MEZIDON-CANON
Maison à MEZIDON-CANON
Maison à MEZIDON-CANON
Maison à MEZIDON-CANON
Maison à MEZIDON-CANON
Maison à MEZIDON-CANON
Maison à MEZIDON-CANON
Maison à MEZIDON-CANON
Maison à MEZIDON-CANON
Maison à MEZIDON-CANON
Maison à MEZIDON-CANON
Maison à MEZIDON-CANON
Ce site est protégé par reCAPTCHA la Politique de confidentialité et les Conditions d’utilisation de Google s’appliquent.
Obtenir un prêt immobilier au meilleur taux ?

En poursuivant votre navigation sans modifier vos paramètres, vous acceptez l'utilisation de cookies susceptibles de réaliser des statistiques de visite. Cliquez ici pour plus d'informations