Appartement f5 146.52 m² de surface habitable. immeuble de caractere

— Luneville 54300 —
105 000 €
147 m²
6 pièces

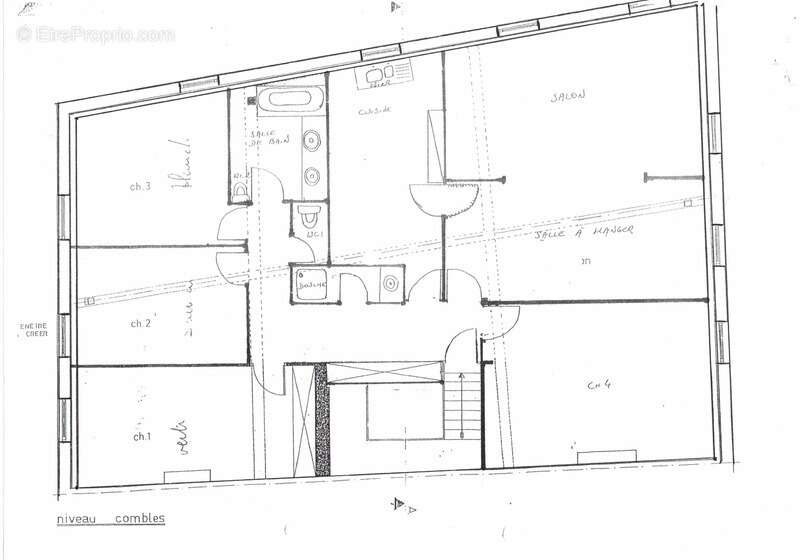
Chez OPTIMHOME Jean-Pierre PIERRON votre agent mandataire. Vous propose à Lunéville 54300 à proximité du Parc des Bosquets avec vue sur le théâtre et Saint Jaques + château . A vendre Appartement dans petit immeuble de caractère, petit copropriété de 3 propriétaires , syndic bénévole faible charge 50€ mensuel. Beau F5 de 146.52 m² de surface carrez en parfait état, agréable distribution situé au 3 ieme et dernier étage. Comprenant, spacieuse entrée avec nombreux placards de rangement, Cuisine dinatoire indépendante, beau et grand séjour salon, séparé par une simple cloison possibilité d'en faire un espace moderne . 4 chambres, salle de bains et salle d'eau, 2 toilettes. Chauffage central gaz de ville, apport de luminosité important par 10 fenêtres sur 3 faces libre en façade très bonne exposition , huisserie double vitrage et haute isolation classification énergétique en C/C .Commerce à proximité 5/7 mn à pied de la gare SNCF. Idéal primo accédant. Libre rapidement. Nombre de lots de la copropriété: 10, Montant moyen de la quote-part annuelle de charges (budget prévisionnel) : 600€ soit 50€ par mois. Les honoraires sont à la charge du vendeur.
Les informations sur les risques auxquels ce bien est exposé sont disponibles sur le site Géorisques : www. georisques. gouv. fr.

Contactez Jean-Pierre PIERRON Entrepreneur Individuel, Agent commercial OptimHome (RSAC N°333 367 860 Greffe de NANCY) [Coordonnées masquées] (réf. 587580 )
Voir plus

Référence: 830030332636
Bien en copropriété. Nombre de lots : 10. Charges de copropriété : 50 €.
Honoraires à la charge du vendeur.
DPE
A
B
C
D
E
F
G
GES
A
B
C
D
E
F
G

Prêt immobilier

Vous souhaitez connaître votre capacité d’emprunt et trouver le meilleur crédit immobilier ?
Réaliser une simulation gratuite

Appartement à LUNEVILLE
Appartement à LUNEVILLE
Appartement à LUNEVILLE
Appartement à LUNEVILLE
Appartement à LUNEVILLE
Appartement à LUNEVILLE
Appartement à LUNEVILLE
Appartement à LUNEVILLE
Appartement à LUNEVILLE
Appartement à LUNEVILLE
Appartement à LUNEVILLE
Appartement à LUNEVILLE
Appartement à LUNEVILLE
Appartement à LUNEVILLE
Ce site est protégé par reCAPTCHA la Politique de confidentialité et les Conditions d’utilisation de Google s’appliquent.
Obtenir un prêt immobilier au meilleur taux ?

En poursuivant votre navigation sans modifier vos paramètres, vous acceptez l'utilisation de cookies susceptibles de réaliser des statistiques de visite. Cliquez ici pour plus d'informations