Bénéficiez des services de nos partenaires locaux soigneusement sélectionnés
pour vous accompagner dans votre parcours d'achat immobilier

Maison 4 pièces de plain pieds à 1.5km du centre ville

— Mondonville 31700 —
252 000 €
98 m² / 787 m²
4 pièces
parkingjardin

Nos partenaires locaux
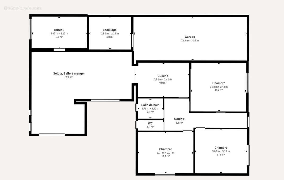
À Mondonville, découvrez une maison de plain-pied qui n’attend que votre touche personnelle pour révéler tout son potentiel. Avec environ 98 m2 habitables, elle offre une base saine, bien entretenue et idéale pour un projet de rénovation maîtrisé.
A 1.5km de toutes les commodités de Mondonville. La pièce de vie, largement ouverte vers le sud, profite d’une belle luminosité tout au long de la journée et d’un insert qui apporte un confort supplémentaire. L'espace nuit est composé de 3 belles chambres de 11.5 à 14m2. Petit plus, vous profiterez d'un bureau fermé de 8m2 pour télétravailler dans le calme. Le garage attenant permet d’envisager de multiples usages, qu’il s’agisse de stockage, d’atelier ou d’extension selon vos besoins.
La parcelle de 787 m2, entièrement clôturée, offre un cadre agréable et sécurisé, parfait pour imaginer un jardin paysager, un potager ou des espaces extérieurs conviviaux.
Piste cyclable devant la maison. Ligne de bus 74 à 200m qui dessert entres autres : le Lycée St Exupéry, le centre Commercial de Blagnac, Cornebarrieu et Mondonville. A deux pas de la forêt de Bouconne.
Acheter à Mondonville aujourd'hui c’est s’assurer un cadre de vie paisible, pratique et recherché, dans une commune qui continue de séduire par son dynamisme et sa qualité de vie.
Ce bien conviendra parfaitement à une famille souhaitant s’installer dans un environnement verdoyant et sécurisé, tout comme à une personne âgée recherchant le confort du plain-pied et la proximité des services essentiels.
Pour tout renseignement complémentaire, vous pouvez contacter l'agence S&F Immobilier Associés au O5.61.99.72.24 ou Céline FERNANDEZ au O7.86.18.29.06. Les informations sur les risques auxquels ce bien est exposé sont disponibles sur le site Géorisques : www.georisques.gouv.fr.
Communes proches : Cornebarrieu, Blagnac, Colomiers
Voir plus

Référence: 417
Honoraires d'agence de 5% à la charge de l'acquéreur
Barème des honoraires
DPE
A
B
C
D
E
F
G
GES
A
B
C
D
E
F
G

Prêt immobilier

Vous souhaitez connaître votre capacité d’emprunt et trouver le meilleur crédit immobilier ?
Réaliser une simulation gratuite

Maison à MONDONVILLE
Maison à MONDONVILLE
Maison à MONDONVILLE
Maison à MONDONVILLE
Maison à MONDONVILLE
Maison à MONDONVILLE
Maison à MONDONVILLE
Maison à MONDONVILLE
Maison à MONDONVILLE
Maison à MONDONVILLE
Maison à MONDONVILLE
Maison à MONDONVILLE
Maison à MONDONVILLE
Maison à MONDONVILLE
Maison à MONDONVILLE
Ce site est protégé par reCAPTCHA la Politique de confidentialité et les Conditions d’utilisation de Google s’appliquent.
Obtenir un prêt immobilier au meilleur taux ?

En poursuivant votre navigation sans modifier vos paramètres, vous acceptez l'utilisation de cookies susceptibles de réaliser des statistiques de visite. Cliquez ici pour plus d'informations