Bénéficiez des services de nos partenaires locaux soigneusement sélectionnés
pour vous accompagner dans votre parcours d'achat immobilier

Neuf - t2 - prestation haut de gamme

— Ballan-Mire 37510 —
187 000 €
41 m²
2 pièces
parking

Nos partenaires locaux
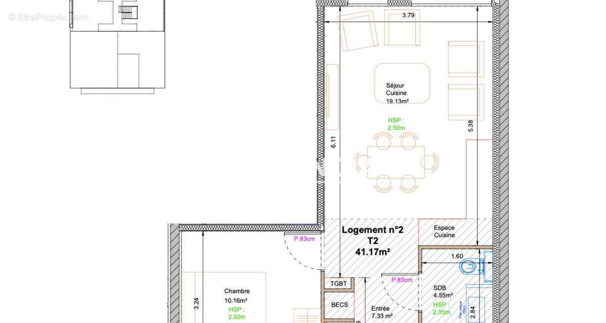
Situé dans un environnement agréable, ce programme neuf propose un appartement T2 au sein d'une résidence haut de gamme.

Il se compose d'une entrée avec placard, d'un séjour avec cuisine ouverte donnant sur un jardin et une terrasse de plus de 8 m², ainsi que d'une chambre.
Un parking extérieur complète l'ensemble.

Prestations de qualité : cuisine entièrement aménagée et équipée (BOSCH, Samsung), domotique, place de stationnement, parquet en chêne.
La livraison est prévue pour le premier trimestre 2027.

Pour plus d'informations, contactez Laura VIE du cabinet FONCIA.
Voir plus

Référence: 00749239
Honoraires à la charge du vendeur.
Barème des honoraires

Prêt immobilier

Vous souhaitez connaître votre capacité d’emprunt et trouver le meilleur crédit immobilier ?
Réaliser une simulation gratuite

Appartement à BALLAN-MIRE
Appartement à BALLAN-MIRE
Appartement à BALLAN-MIRE
Ce site est protégé par reCAPTCHA la Politique de confidentialité et les Conditions d’utilisation de Google s’appliquent.
Obtenir un prêt immobilier au meilleur taux ?

En poursuivant votre navigation sans modifier vos paramètres, vous acceptez l'utilisation de cookies susceptibles de réaliser des statistiques de visite. Cliquez ici pour plus d'informations