Appartement 4 pièces 89 m2

— Montpellier 34070 —
320 000 €
89 m²
4 pièces
parkingbalcon/terrasseascenseur

A Vendre, en exclusivité,

quartier calme, rue peu passante,
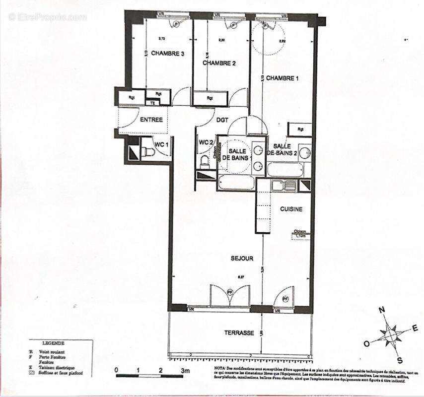
un appartement T4 + 2 salles de bains + 2 WC séparé + terrasse + garage.

Idéalement situé, dans une rue très calme et résidentielle, entouré de maison , proche arrêt de tram Saint-Cléophas, cet appartement de 90 m², niché au 2ème et dernier étage d'une résidence sécurisée BBC de 2013, ne manque pas d'atouts !
- Dès l'entrée, des placards intégrés offrent un espace de rangement pratique.
- Le salon-séjour, orienté sud, séduit par sa très belle hauteur sous plafond, créant une sensation d'espace unique.
La cuisine ouverte, complète cet espace convivial, prolongé par une agréable terrasse idéale pour profiter des beaux jours.

Côté nuit, trois chambres :
- Une suite parentale de 18 m² avec salle de bain privative.
- Deux autres chambres d'environ 10 m² chacune.
- Une 2ème salle de bain.
- Deux WC séparés pour plus de confort.
- Un garage sécurisé en sous-sol.
- L'appartement est, bien-sur, traversant.

Emplacement idéal, à deux pas des transports, commerces et commodités. Un cadre de vie parfait, entre dynamisme urbain et sérénité.

DPE : classe B GES : B
Montant moyen estimé des dépenses annuelles d'énergies pour un usage standard établi à partir des prix de l'énergie de l'année 2021, 2022, 2023 : entre 730 et 1050 euros

332 500 euros HAI
Honoraires charge vendeur

Pour visiter et vous accompagner dans votre projet, contactez William STRIBY, au [Coordonnées masquées] ou, par courriel à [Coordonnées masquées].
Selon l'article L.561.5 du Code Monétaire et Financier, pour l'organisation de la visite, la présentation d'une pièce d'identité vous sera demandée.
Cette présente annonce a été rédigée sous la responsabilité éditoriale de William STRIBY agissant sous le statut d'agent commercial immatriculé au RSAC RSAC Montpellier 948653167 auprès de SAS PROPRIETES PRIVEES, au capital de 44 920 euros, ZAC LE CHÊNE FERRÉ - 44 ALLÉE DES CINQ CONTINENTS 44120 VERTOU; SIRET 487 624 777 00040, RCS Nantes. Carte Professionnelle Transactions sur immeubles et fonds de commerce (T) et Gestion immobilière (G) n°CPI 44[Coordonnées masquées]10 388 délivrée par la CCI Nantes - Saint Nazaire. Compte séquestre n°3[Coordonnées masquées] BPA SAINT-SEBASTIEN-SUR-LOIRE (44230). Garantie GALIAN - 89 rue de la Boétie, 75008 Paris - n°28137 J pour 2 000 000 euros pour T et 120 000 euros pour G. Assurance responsabilité civile professionnelle par GALIAN n° de police 28137.J

Mandat réf : 398396- Le professionnel garantit et sécurise votre projet immobilier.

William STRIBY (EI) Agent Commercial - Numéro RSAC : RSAC Montpellier 948653167 - .
Les informations sur les risques auxquels ce bien est exposé sont disponibles sur le site Géorisques : www. georisques. gouv. fr
Voir plus

Référence: 39839.6WST
Bien en copropriété. Charges de copropriété : 169 €.
Honoraires à la charge du vendeur.
DPE
A
B
C
D
E
F
G
GES
A
B
C
D
E
F
G

Prêt immobilier

Vous souhaitez connaître votre capacité d’emprunt et trouver le meilleur crédit immobilier ?
Réaliser une simulation gratuite

Appartement à MONTPELLIER
Appartement à MONTPELLIER
Appartement à MONTPELLIER
Appartement à MONTPELLIER
Appartement à MONTPELLIER
Appartement à MONTPELLIER
Appartement à MONTPELLIER
Appartement à MONTPELLIER
Appartement à MONTPELLIER
Appartement à MONTPELLIER
Appartement à MONTPELLIER
Appartement à MONTPELLIER
Appartement à MONTPELLIER
Appartement à MONTPELLIER
Appartement à MONTPELLIER
Appartement à MONTPELLIER
Appartement à MONTPELLIER
Ce site est protégé par reCAPTCHA la Politique de confidentialité et les Conditions d’utilisation de Google s’appliquent.
Obtenir un prêt immobilier au meilleur taux ?

En poursuivant votre navigation sans modifier vos paramètres, vous acceptez l'utilisation de cookies susceptibles de réaliser des statistiques de visite. Cliquez ici pour plus d'informations