Bénéficiez des services de nos partenaires locaux soigneusement sélectionnés
pour vous accompagner dans votre parcours d'achat immobilier

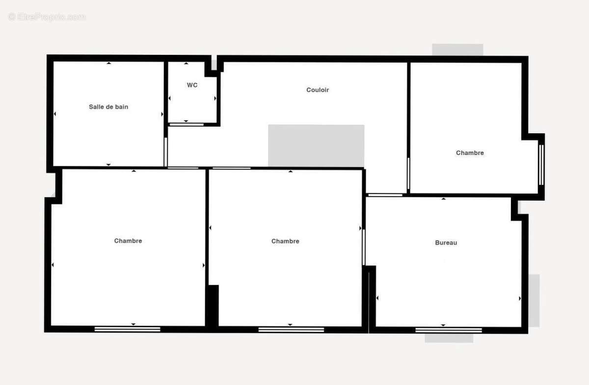
Maison de 5 pièces, 4 chambres avec garage et terrain

— Janville 28310 —
169 900 €
115 m² / 300 m²
5 pièces
parkingbalcon/terrassejardin

Nos partenaires locaux
28310. JANVILLE EN BEAUCE. Maison de 5 pièces avec 4 chambres, garage, jardin, proche de toutes commodités. Prix : 169 900 euros honoraires à la charge vendeur. Sophie Abraham et Nicolas Prébay vous proposent une charmante maison comprenant : entrée avec dressing, cuisine aménagée, séjour. Au premier étage : palier, 4 chambres, salle de bains, wc. Cour avec jardin clos, garage, chaufferie - atelier.
Prestations : panneaux photovoltaïques, chaudière gaz à condensation, isolation du grenier. Maison reliée au tout à l'égout.
Proche écoles, commerces et gare SNCF à 8 min. Proche D2020 et A10.
Consommation énergétique : D 163 kWh/m²/an
Emission de gaz à effet de serre : D 34CO2/m²/an
Estimation des dépenses annuelles d'énergie : entre 1730 euros et 2350 euros/an, prix moyens des énergies indexés des années 2021, 2022, 2023. (abonnements compris).
" Les informations sur les risques auxquels ce bien est exposé sont disponibles sur le site Géorisques : www.georisques.gouv.fr "
Pour visiter et vous accompagner dans votre projet, contactez Sophie ABRAHAM, au [Coordonnées masquées] ou par courriel à [Coordonnées masquées]
Selon l'article L.561.5 du Code Monétaire et Financier, pour l'organisation de la visite, la présentation d'une pièce d'identité vous sera demandée.
Cette présente annonce a été rédigée sous la responsabilité éditoriale de Sophie ABRAHAM agissant en qualité de conseiller immobilier indépendant sous portage salarial auprès de la SAS PROPRIETES PRIVEES, au capital de 44 920 euros, ZAC LE CHÊNE FERRÉ - 44 ALLÉE DES CINQ CONTINENTS 44120 VERTOU; SIRET 487 624 777 00040, RCS Nantes. Carte professionnelle Transactions sur immeubles et fonds de commerce (T) et Gestion immobilière (G) n° CPI 44[Coordonnées masquées]10 388 délivrée par la CCI Nantes - Saint Nazaire. Compte séquestre n°3[Coordonnées masquées] BPA SAINT-SEBASTIEN-SUR-LOIRE (44230) ; Garantie GALIAN - 89 rue de la Boétie, 75008 Paris - n°28137 J pour 2 000 000 euros pour T et 120 000 euros pour G. Assurance responsabilité civile professionnelle par MMA Entreprise n° de police 120.137.405
Mandat réf : 431570- Le professionnel garantit et sécurise votre projet immobilier.
Voir plus

Référence: 431570ASO
Honoraires à la charge du vendeur.
DPE
A
B
C
D
E
F
G
GES
A
B
C
D
E
F
G

Prêt immobilier

Vous souhaitez connaître votre capacité d’emprunt et trouver le meilleur crédit immobilier ?
Réaliser une simulation gratuite

Maison à JANVILLE
Maison à JANVILLE
Maison à JANVILLE
Maison à JANVILLE
Maison à JANVILLE
Maison à JANVILLE
Maison à JANVILLE
Maison à JANVILLE
Maison à JANVILLE
Maison à JANVILLE
Maison à JANVILLE
Maison à JANVILLE
Ce site est protégé par reCAPTCHA la Politique de confidentialité et les Conditions d’utilisation de Google s’appliquent.
Obtenir un prêt immobilier au meilleur taux ?

En poursuivant votre navigation sans modifier vos paramètres, vous acceptez l'utilisation de cookies susceptibles de réaliser des statistiques de visite. Cliquez ici pour plus d'informations