Côtes d'armor 22190 plérin maison d'architecte 7 chambres, sous-sol total, terrasse exposée sud, terrain

— Plerin 22190 —
375 000 €
146 m² / 813 m²
7 pièces

Située à seulement 850 m du centre de Plérin, cette maison offre un accès rapide aux commerces, écoles et services.
A 2 minutes de la RN12 et à 4 minutes de l'hôpital privé des Côtes d'Armor.
Moins de 4 km pour profiter des plages, du bord de mer et des activités nautiques.

Surface de la parcelle : 813 m², entièrement clos avec terrasse exposée plein sud, sans vis-à-vis, abri en bois et salon de jardin en pierre.
7 chambres, idéal pour familles nombreuses, profession libérale, chambres d'hôtes ou famille d'accueil. Placards intégrés sur chaque niveau.
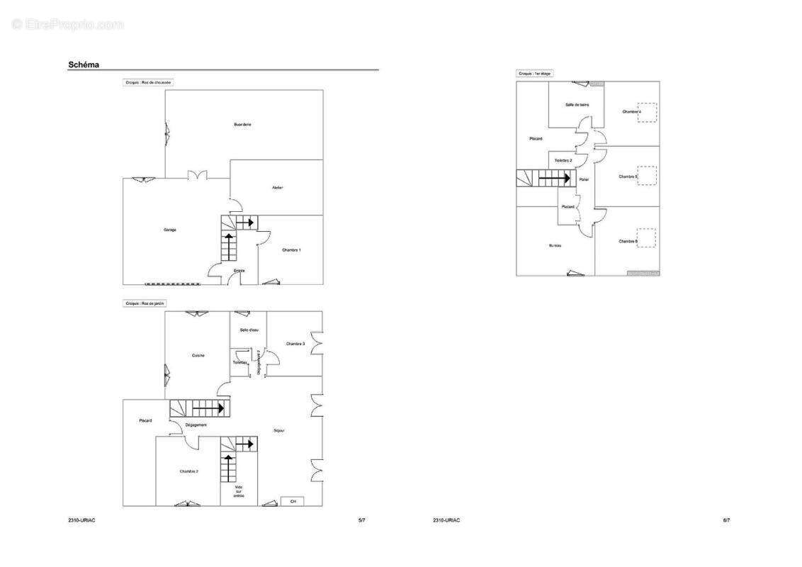
Rez-de-chaussée :
Entrée cathédrale : Spacieuse, lumineuse et accueillante.
Un grand espace avec point d'eau, parfait pour une profession libérale ou activité indépendante.
Accès direct au garage de 30m², ce dernier dispose d'une porte motorisée, atelier, buanderie et espaces de stockage supplémentaires.
Premier étage : Salon/séjour lumineux avec deux grandes portes-fenêtres plein sud, accès direct à la terrasse.
Cheminée avec insert, pour une ambiance chaleureuse en hiver.
Cuisine dînatoire aménagée et équipée, avec deux fenêtres et un espace convivial.
Deux chambres confortables.
Une salle d'eau moderne avec douche.
WC séparés pour plus de praticité.
Deuxième étage : Quatre chambres supplémentaires (superficie de 9 à 13 m²), idéales pour famille ou invités.
Une salle de bain et des toilettes séparées.
Un grenier aménageable ou utilisable en espace de rangement.
Radiateurs électriques combinés avec un chauffe-eau solaire pour une gestion économique des énergies.
Fenêtres en bois et PVC double vitrage pour une isolation thermique et acoustique optimale. Tableau électrique remis aux normes.
Raccordement au tout à l'égout.
Allée bitumée, permettant le stationnement de plusieurs véhicules.

Au prix de 375000 euros incluant les honoraires d'agence d'un montant de 4.17% d'honoraires à la charge de l'acquéreur (soit 15000 euros).
Frais notariés en sus : 28400 euros.
DPE: E. GES: B. Montant estimé des dépenses annuelles d'énergie pour un usage standard entre 2170 euros et 3010 euros indexées aux années 2021, 2022 et 2023 Pour visiter et vous accompagner dans votre projet, contactez Julien PÉROT, au [Coordonnées masquées] ou, par courriel à [Coordonnées masquées]. Selon l'article L.561.5 du Code Monétaire et Financier, pour l'organisation de la visite, la présentation d'une pièce d'identité vous sera demandée. Cette présente annonce a été rédigée sous la responsabilité éditoriale de Julien PÉROT agissant sous le statut d'agent commercial immatriculé au RSAC SAINT BRIEUC 822474151 auprès de SAS PROPRIETES PRIVEES, au capital de 44 920 euros, ZAC LE CHÊNE FERRÉ - 44 ALLÉE DES CINQ CONTINENTS 44120 VERTOU ; SIRET 487 624 777 00040, RCS Nantes. Carte Professionnelle Transactions sur immeubles et fonds de commerce (T) et Gestion immobilière (G) n°CPI 44[Coordonnées masquées]10 388 délivrée par la CCI Nantes - Saint Nazaire. Compte séquestre n°3[Coordonnées masquées] BPA SAINT-SEBASTIEN-SUR-LOIRE (44230). Garantie GALIAN-SMABTP - 89 rue de la Boétie, 75008 Paris - n°28137 J pour 2 000 000 euros pour T et 120 000 euros pour G. Assurance responsabilité civile professionnelle par GALIAN-SMABTP n° de police 28137.J Mandat réf : 431701- Le professionnel vous accompagne dans votre projet immobilier.

(4.17 % honoraires TTC à la charge de l'acquéreur.)

Julien PÉROT (EI) Agent Commercial - Numéro RSAC : SAINT BRIEUC 822474151 - .
Les informations sur les risques auxquels ce bien est exposé sont disponibles sur le site Géorisques : www. georisques. gouv. fr
Voir plus

Référence: 431701OHYJUP
Honoraires d'agence de 4.17% à la charge de l'acquéreur
DPE
A
B
C
D
E
F
G
GES
A
B
C
D
E
F
G

Prêt immobilier

Vous souhaitez connaître votre capacité d’emprunt et trouver le meilleur crédit immobilier ?
Réaliser une simulation gratuite

Maison à PLERIN
Maison à PLERIN
Maison à PLERIN
Maison à PLERIN
Maison à PLERIN
Maison à PLERIN
Maison à PLERIN
Maison à PLERIN
Maison à PLERIN
Maison à PLERIN
Maison à PLERIN
Maison à PLERIN
Maison à PLERIN
Maison à PLERIN
Maison à PLERIN
Maison à PLERIN
Maison à PLERIN
Maison à PLERIN
Ce site est protégé par reCAPTCHA la Politique de confidentialité et les Conditions d’utilisation de Google s’appliquent.
Obtenir un prêt immobilier au meilleur taux ?

En poursuivant votre navigation sans modifier vos paramètres, vous acceptez l'utilisation de cookies susceptibles de réaliser des statistiques de visite. Cliquez ici pour plus d'informations