Bénéficiez des services de nos partenaires locaux soigneusement sélectionnés
pour vous accompagner dans votre parcours d'achat immobilier

Vente maison 208m2 bordeaux (33800)

— Bordeaux 33800 —
869 000 €
208 m²
7 pièces
balcon/terrassejardin

Nos partenaires locaux
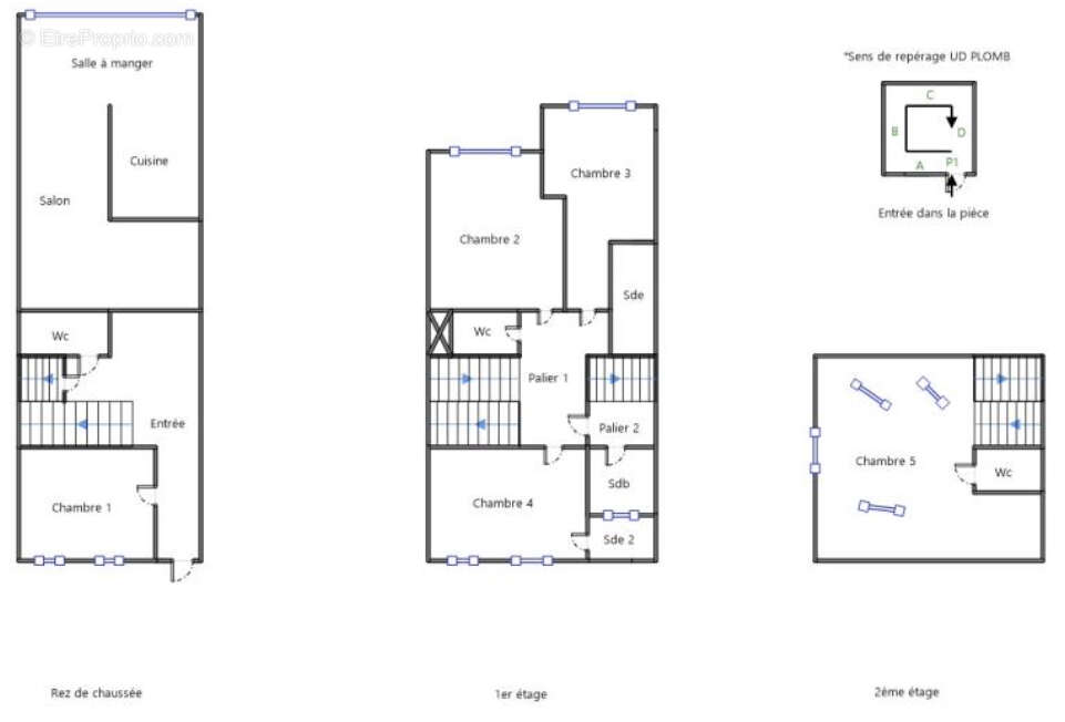
33800 - BORDEAUX - NANSOUTY. C'est dans le quartier très recherché de NANSOUTY, à deux pas de la PLACE NANSOUTY, que prend place cette belle maison FAMILIALE distribuée sur trois niveaux avec GRAND JARDIN PISCINABLE. Développée sur 216m2 au sol, elle offre trois niveaux généreux et chaleureux. Dès la grande entrée vous serez sous le charme : hauts plafonds, carreaux de ciment, cheminée, parquet et murs en pierre côtoient tout le confort actuel. Au rez-de-chaussée, une extension récente réalisée par un ARCHITECTE laisse place à un grand salon et une salle à manger avec sa cuisine équipée/aménagée à la fois fonctionnelle et esthétique avec vue sur la terrasse et son JARDIN de 160m2 PISCINABLE EXPOSE SUD. Côté pratique, on y trouve également une pièce TV pouvant faire office de chambre ainsi qu'un WC indépendant. Un escalier en pierre vous conduit à l'étage composé de 3 grandes chambres dont deux avec salle d'eau privative. Une salle de bains indépendante et un espace buanderie complètent ce niveau. Au dernier étage, vous trouverez une quatrième chambre parentale avec dressing et WC. Une GRANDE CAVE saine ainsi qu'un abri de jardin offrent de nombreux espaces de rangements supplémentaires. Cette maison située dans un des quartiers les plus prisés de Bordeaux est unique par son charme et ses agréments recherchés. CACHET DE L'ANCIEN préservé. Chauffage au gaz, radiateurs en fonte, CHAUDIERE FRISQUET NEUVE. Proche COMMERCES DE BOUCHE et ECOLES recherchées. A 10 min à pied du tram B (arrêt Barrière Saint-Genès). Accès facile à la GARE SAINT-JEAN.
PRIX : 869 000 euros
DPE : D - GES : D. Montant moyen estimé des dépenses annuelles d'énergie pour un usage standard établi à partir des prix de l'énergie de l'année 2021 : entre 2480 euros et 3400 euros
Pour visiter et vous accompagner dans votre projet, contactez Arnaud FRAYRET, au [Coordonnées masquées] ou par courriel à [Coordonnées masquées]
Cette présente annonce a été rédigée sous la responsabilité éditoriale de Arnaud FRAYRET agissant sous le statut d'agent commercial immatriculé au RSAC Nantes 837775543 auprès de la SAS PROPRIETES PRIVEES, Réseau national immobilier, au capital de 40000 euros, 44 ALLÉE DES CINQ CONTINENTS - ZAC LE CHÊNE FERRÉ, 44120 VERTOU, RCS Nantes n° 487 624 777 00040, Carte professionnelle T et G n° CPI 44[Coordonnées masquées]10 388 CCI Nantes-Saint Nazaire. Garantie GALIAN - 89 rue de la Boétie, 75008 Paris.
Mandat réf : 403095 - Le professionnel garantit et sécurise votre projet immobilier. (3.95 % honoraires TTC à la charge de l'acquéreur.)

Arnaud FRAYRET (EI) Agent Commercial - Numéro RSAC : STRASBOURG 837775543 - .
Les informations sur les risques auxquels ce bien est exposé sont disponibles sur le site Géorisques : www. georisques. gouv. fr
Voir plus

Référence: 403095MARY
Honoraires d'agence de 3.95% à la charge de l'acquéreur
DPE
A
B
C
D
E
F
G
GES
A
B
C
D
E
F
G

Prêt immobilier

Vous souhaitez connaître votre capacité d’emprunt et trouver le meilleur crédit immobilier ?
Réaliser une simulation gratuite

Maison à BORDEAUX
Maison à BORDEAUX
Maison à BORDEAUX
Maison à BORDEAUX
Maison à BORDEAUX
Maison à BORDEAUX
Maison à BORDEAUX
Maison à BORDEAUX
Maison à BORDEAUX
Maison à BORDEAUX
Maison à BORDEAUX
Ce site est protégé par reCAPTCHA la Politique de confidentialité et les Conditions d’utilisation de Google s’appliquent.
Obtenir un prêt immobilier au meilleur taux ?

En poursuivant votre navigation sans modifier vos paramètres, vous acceptez l'utilisation de cookies susceptibles de réaliser des statistiques de visite. Cliquez ici pour plus d'informations