Rue orfila - 3 pièces balcon, cave et parking - paris 20

— Paris-20e 75020 —
630 000 €
71 m²
3 pièces
parkingbalcon/terrasse

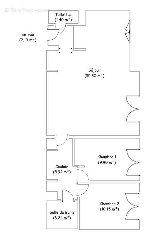
Exclusivité BOWIMMO ! Idéalement situé dans le secteur recherché de Gambetta, 3 pièces familial de 68,06m2 Carrez avec balcon (7,69m2), cave et parking, au cœur d’un environnement vivant et à deux pas des commerces de la rue des Pyrénées.
Au 1er étage d’un immeuble de standing édifié en 2004, l’appartement offre une pièce de vie de 35,30m2 ouverte sur une cuisine aménagée et équipée, avec accès direct au balcon, deux chambres, une salle de bain, un WC indépendant et de nombreux rangements.
 
Ses atouts ? Etat impeccable, finitions soignées, au calme sur cour intérieure, distribution optimisée, sans perte de place, local vélos, cave et emplacement de parking en sous-sol inclus, ascenseur.
 
Transports à proximité : Métro Gambetta (L3 L3bis) à 310 m, Métro Pelleport (L3bis) à 180 m, Bus 26, 60, 61, 64, 69, 96, 102.
 
Envie d'en savoir plus ? 
Contact : Stéphanie Alperovitch [Coordonnées masquées]
 
Bien en copropriété. 43 copropriétaires. Production d’eau chaude et chauffage individuels électriques. Charges de copropriété : 1876€/an (fonds travaux inclus), soit 469€/trimestre. Taxe foncière : 1247€. Honoraires à la charge du vendeur.
 
Aucune procédure en cours fondée sur les articles 29-1 A et 29-1 de la loi du 10 juillet 1965 et l’article L. 615-6 du CCH.
Les informations sur les risques auxquels ce bien est exposé sont disponibles sur georisques.gouv.fr
Annonce rédigée sous la responsabilité éditoriale de Mme Lemercier, agent immobilier immatriculé au RCS de Paris sous le no 834 039 646.
 
Voir plus

Bien en copropriété. Nombre de lots : 43. Charges de copropriété : 1786 €.
Honoraires à la charge du vendeur.
Barème des honoraires
DPE
A
B
C
D
E
F
G
GES
A
B
C
D
E
F
G

Prêt immobilier

Vous souhaitez connaître votre capacité d’emprunt et trouver le meilleur crédit immobilier ?
Réaliser une simulation gratuite

Appartement à PARIS-20E
Appartement à PARIS-20E
Appartement à PARIS-20E
Appartement à PARIS-20E
Appartement à PARIS-20E
Appartement à PARIS-20E
Appartement à PARIS-20E
Appartement à PARIS-20E
Appartement à PARIS-20E
Appartement à PARIS-20E
Appartement à PARIS-20E
Appartement à PARIS-20E
Appartement à PARIS-20E
Ce site est protégé par reCAPTCHA la Politique de confidentialité et les Conditions d’utilisation de Google s’appliquent.
Obtenir un prêt immobilier au meilleur taux ?

En poursuivant votre navigation sans modifier vos paramètres, vous acceptez l'utilisation de cookies susceptibles de réaliser des statistiques de visite. Cliquez ici pour plus d'informations