Bénéficiez des services de nos partenaires locaux soigneusement sélectionnés
pour vous accompagner dans votre parcours d'achat immobilier

Commerce 3000m² à plaisir

— Plaisir 78370 —
3 848 000 €
3 000 m²
parking

Nos partenaires locaux
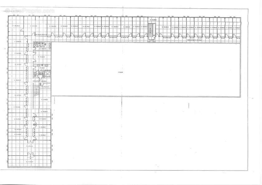
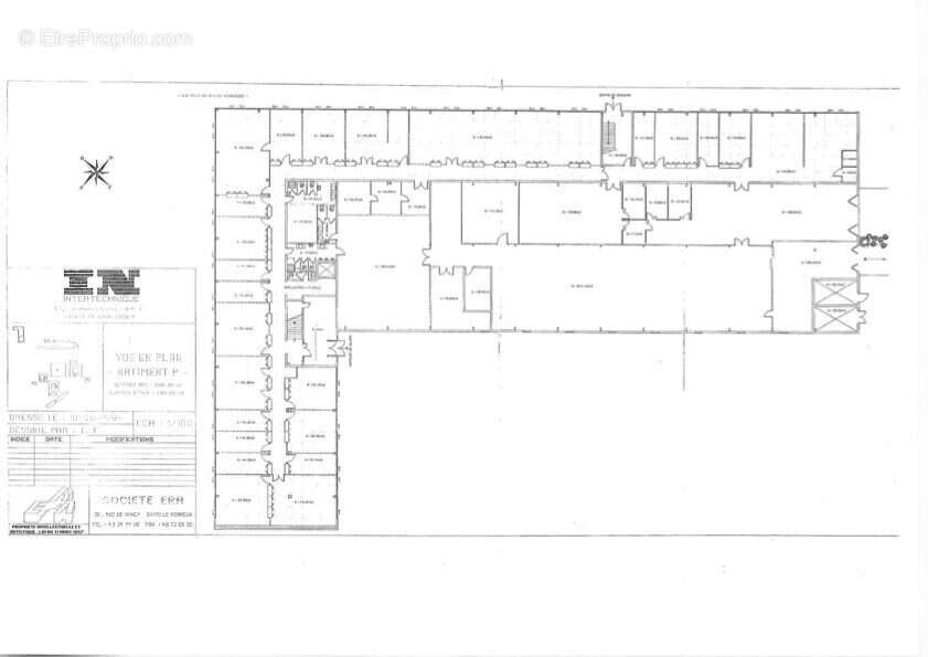
Un entrepôt d'une surface de 3000m² sur un terrain de 7000m² comprenant : une partie bureau et une partie entrepôt.
Bureaux : moquette sur dalle béton, chauffage gaz, bureaux cloisonnés.
Entrepôt : Chauffage par air pulsé, hauteur sous plafond : 6, monte charge, local technique, accès plain-pied, accès quai, peinture anti-poussière au sol.
Environ 100 places de stationnement.
Visibilité commerciale N12 et proche des grands axes routiers

Honoraires inclus de 4% à la charge de l'acquéreur. Prix hors honoraires 3 700 000 €. DPE en cours. Les informations sur les risques auxquels ce bien est exposé sont disponibles sur le site Géorisques : georisques.gouv.fr.
Voir plus

Référence: VP117-SOFIA
Honoraires d'agence de 4% à la charge de l'acquéreur
Barème des honoraires

Prêt immobilier

Vous souhaitez connaître votre capacité d’emprunt et trouver le meilleur crédit immobilier ?
Réaliser une simulation gratuite

Commerce à PLAISIR
Commerce à PLAISIR
Commerce à PLAISIR
Commerce à PLAISIR
Commerce à PLAISIR
Commerce à PLAISIR
Ce site est protégé par reCAPTCHA la Politique de confidentialité et les Conditions d’utilisation de Google s’appliquent.
Obtenir un prêt immobilier au meilleur taux ?

En poursuivant votre navigation sans modifier vos paramètres, vous acceptez l'utilisation de cookies susceptibles de réaliser des statistiques de visite. Cliquez ici pour plus d'informations