Riorges - appartement type 3 en rez-de jardin 190 m2 avec terrasse couverte de 19 m2

— Riorges 42153 —
220 000 €
74 m² / 191 m²
3 pièces
balcon/terrassejardin

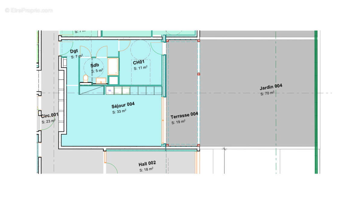
RIORGES - L'IMMOBILIERE 42 vous présente en AVANT PREMIERE ET EN EXCLUSIVITE, cet appartement de type 3 d'environ 74 m2 en rez-de-jardin d'une surface approximative de 190 m2 et 19 m2 de terrasse privative avec jolies dalles sur plots.
Le bien offre une belle pièce de vie d'environ 35 m2 lumineuse avec une baie vitrée en aluminium donnant sur la terrasse, d'une cuisine américaine, d'une chambre, d'une suite parentale avec une salle de bains, une buanderie et WC suspendu séparé.
Résidence sécurisée de standing réalisée par un architecte local ayant pignon sur rue avec des matériaux haut de gamme.
Situé au coeur d'un parc avec des arbres centenaires, vous y trouverez un havre de paix.
Situation idéale à proximité de toutes les commodités, transports, médecins
Garage et cave en sous-sol disponibles.
Contactez Sandrine pour découvrir cette opportunité
Voir plus

Bien en copropriété.
Barème des honoraires

Prêt immobilier

Vous souhaitez connaître votre capacité d’emprunt et trouver le meilleur crédit immobilier ?
Réaliser une simulation gratuite

Appartement à RIORGES
Appartement à RIORGES
Appartement à RIORGES
Appartement à RIORGES
Ce site est protégé par reCAPTCHA la Politique de confidentialité et les Conditions d’utilisation de Google s’appliquent.
Obtenir un prêt immobilier au meilleur taux ?

En poursuivant votre navigation sans modifier vos paramètres, vous acceptez l'utilisation de cookies susceptibles de réaliser des statistiques de visite. Cliquez ici pour plus d'informations