Bénéficiez des services de nos partenaires locaux soigneusement sélectionnés
pour vous accompagner dans votre parcours d'achat immobilier

T4 à vendre - thonon-les-bains (74200)

— Thonon-Les-Bains 74200 —
441 500 €
79 m²
4 pièces
parkingbalcon/terrasseascenseur

Nos partenaires locaux
À vendre Thonon-Les-Bains, votre prochaine résidence « le Bel Air » située dans le quartier Ouest, à seulement quelques minutes du centre-ville, du lac Léman et de la gare à 10 min à pied. Située à 1h en train de Genève et à 50 min en bateau de Lausanne, cette adresse est très attractive pour les travailleurs frontaliers.
Programme RE 2020, la résidence séduit par son architecture contemporaine, ses lignes élégantes et ses espaces paysagers soignés, offrant un cadre de vie moderne et serein entre lac et montagnes.

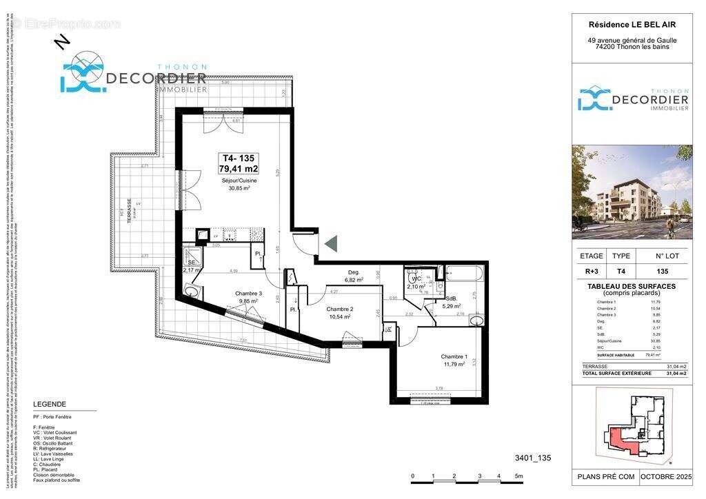
Venez découvrir votre appartement T4 de 79.41m², orienté Nord-Ouest, agrémenté d’une terrasse de 31.04m² idéal pour profiter des beaux jours. Il se compose d'un dégagement, d’une pièce de vie lumineuse avec cuisine ouverte sur séjour, de trois chambres, d'une salle d'eau avec WC et d’une salle d'eau. Deux places de parking sont incluses dans le prix de vente. Le diagnostic de performance énergétique (DPE) sera fourni au moment de la livraison du bien (livraison prévue : 4e trimestre 2027).

Une résidence offrant confort, praticité et bien-être au quotidien. Proche des commerces, établissements scolaires, commodités et espaces verts. Réservez dès maintenant votre futur appartement chez DECORDIER Immobilier Thonon.

Vendez avec DECORDIER immobilier, vos agences de proximité à Evian, Thonon et aussi à l’Île Maurice ! Estimation gratuite en ligne sur notre site. Thonon-les-Bains 74200. Idéalement située sur les rives du Lac Léman, face au massif du Jura, la ville de Thonon-les-Bains est réputée pour ses eaux thermales et sa tranquillité. Sa proximité avec les grandes métropoles suisses comme Genève et Lausanne en font une ville dynamique. Son patrimoine architectural (châteaux de Ripaille et de Sonnaz) en fait une ville tournée vers la culture. S’installer à Thonon-les-Bains permet de goûter au calme et au charme d’une ville préservée tout en bénéficiant du dynamisme de sa région et de ses nombreuses activités (sports nautiques sur le lac, thermalisme, ski...).
Voir plus

Référence: 1223 - 135

Prêt immobilier

Vous souhaitez connaître votre capacité d’emprunt et trouver le meilleur crédit immobilier ?
Réaliser une simulation gratuite

Appartement à THONON-LES-BAINS
Appartement à THONON-LES-BAINS
Appartement à THONON-LES-BAINS
Appartement à THONON-LES-BAINS
Appartement à THONON-LES-BAINS
Appartement à THONON-LES-BAINS
Appartement à THONON-LES-BAINS
Ce site est protégé par reCAPTCHA la Politique de confidentialité et les Conditions d’utilisation de Google s’appliquent.
Obtenir un prêt immobilier au meilleur taux ?

En poursuivant votre navigation sans modifier vos paramètres, vous acceptez l'utilisation de cookies susceptibles de réaliser des statistiques de visite. Cliquez ici pour plus d'informations