Bénéficiez des services de nos partenaires locaux soigneusement sélectionnés
pour vous accompagner dans votre parcours d'achat immobilier

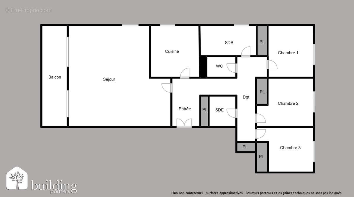
A vendre - courbevoie gambetta - appartement 4 pièces de 86.46 m² + balcon de 6.65 m²

— Courbevoie 92400 —
530 000 €
90 m² / 7 m²
4 pièces
balcon/terrassejardinascenseur

Nos partenaires locaux
Dans le quartier prisé de Gambetta à Courbevoie, BUILDING PARTNERS vous propose à la vente cet appartement 4 pièces de 86,46 m² avec balcon de 6.65 m² exposé plein Sud , situé au 5ème étage avec ascenseur d'un immeuble semi-récent de bon standing avec gardien. Ce bien très lumineux offre une vue dégagée sans vis-à-vis et bénéficie d'un plan parfaitement optimisé sans perte de place. Il se compose d'une entrée, d'un séjour exposé Sud donnant sur un spacieux balcon, d'une cuisine indépendante aménagée, de trois chambres, d'une salle de bain, d'une salle d'eau, de wc séparés, ainsi que de nombreux rangements. Deux places de parking et une cave dans l'immeuble complète ce bien. Situé à proximité immédiate des commerces, des établissements scolaires et des transports (gare de Courbevoie, métro ligne 1 via La Défense, bus), cet appartement allie confort moderne, volumes bien agencés et cadre de vie fonctionnel. Ce bien rare à la vente séduira les familles en quête d'espace, de calme et de praticité en coeur de ville. N'hésitez pas à nous contacter pour plus d'informations ou organiser une visite. Depuis 1993, BUILDING PARTNERS accompagne les propriétaires dans la vente de biens immobiliers de standing sur l'ouest parisien. Notre force ? Une organisation unique avec deux rôles experts : >Les Brokers, spécialisés dans la prospection et la valorisation de votre bien. >Les Sellers, experts en négociation et en mise en relation avec notre portefeuille d'acheteurs qualifiés. Avec 5 agences implantées au coeur des quartiers les plus recherchés (Paris 16e, Paris 17e, Neuilly, Levallois, Courbevoie), nous vous offrons une visibilité maximale, un accompagnement personnalisé et un engagement total jusqu'à la signature. Confiez-nous votre bien pour une vente rapide, au meilleur prix. Estimation offerte, confidentielle et sans engagement. Copropriété de 979 lots - dont 224 lots habitation. (Pas de procédure en cours). Charges annuelles : 5124.52 euros.
Voir plus

Bien en copropriété. Nombre de lots : 979. Charges de copropriété : 5124 €.
Honoraires à la charge du vendeur.
Barème des honoraires
DPE
A
B
C
D
E
F
G
GES
A
B
C
D
E
F
G

Prêt immobilier

Vous souhaitez connaître votre capacité d’emprunt et trouver le meilleur crédit immobilier ?
Réaliser une simulation gratuite

Appartement à COURBEVOIE
Appartement à COURBEVOIE
Appartement à COURBEVOIE
Appartement à COURBEVOIE
Appartement à COURBEVOIE
Appartement à COURBEVOIE
Appartement à COURBEVOIE
Appartement à COURBEVOIE
Appartement à COURBEVOIE
Appartement à COURBEVOIE
Appartement à COURBEVOIE
Appartement à COURBEVOIE
Ce site est protégé par reCAPTCHA la Politique de confidentialité et les Conditions d’utilisation de Google s’appliquent.
Obtenir un prêt immobilier au meilleur taux ?

En poursuivant votre navigation sans modifier vos paramètres, vous acceptez l'utilisation de cookies susceptibles de réaliser des statistiques de visite. Cliquez ici pour plus d'informations