Bénéficiez des services de nos partenaires locaux soigneusement sélectionnés
pour vous accompagner dans votre parcours d'achat immobilier

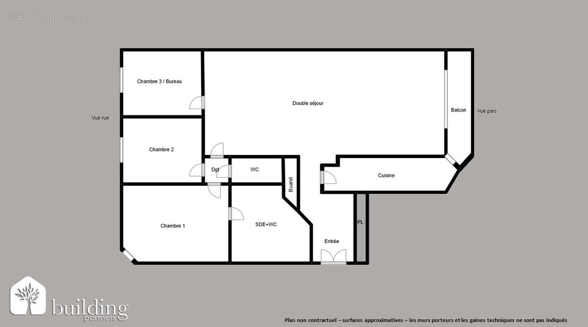
A vendre - courbevoie hôtel de ville - appartement 4 pièces de 81.09 m² et un balcon de 5.17 m²

— Courbevoie 92400 —
640 000 €
85 m² / 6 m²
4 pièces
balcon/terrassejardinascenseur

Nos partenaires locaux
Situé dans le quartier très recherché de l'Hôtel de Ville à Courbevoie, à proximité immédiate du parc de Lattre de Tassigny, Building Partners vous propose à la vente cet appartement 4 pièces de 81,09 m² avec balcon se trouvant au 8e étage avec ascenseur d'un immeuble semi-récent de bon standing, sécurisé avec gardien. Traversant, calme et baigné de lumière, ce bien en très bon état général bénéficie d'un agencement optimisé sans perte de place. Il se compose d'une entrée, d'un double séjour lumineux donnant accès à un balcon de 5,17 m², d'une cuisine indépendante aménagée et équipée, de trois chambres dont une suite parentale avec salle d'eau et WC, d'un WC séparé, ainsi que de nombreux rangements. Une cave en sous-sol complète ce bien. Un double emplacement de parking en enfilade dans l'immeuble est inclus. Son plan fonctionnel, sa luminosité, sa situation en étage élevé avec vue dégagée et son emplacement privilégié à proximité des écoles, des commerces, des transports (gare de Courbevoie, métro ligne 1 via La Défense) et des espaces verts, en font une opportunité rare sur le secteur. Ce bien séduira les familles, les actifs ou tout acquéreur à la recherche d'un cadre de vie paisible et central à Courbevoie. N'hésitez pas à nous contacter pour plus d'informations ou organiser une visite. Depuis 1993, BUILDING PARTNERS accompagne les propriétaires dans la vente de biens immobiliers de standing sur l'ouest parisien. Notre force ? Une organisation unique avec deux rôles experts : ? Les Brokers, spécialisés dans la prospection et la valorisation de votre bien ? Les Sellers, experts en négociation et en mise en relation avec notre portefeuille d'acheteurs qualifiés Avec 5 agences implantées au coeur des quartiers les plus recherchés (Paris 16e, Paris 17e, Neuilly, Levallois, Courbevoie), nous vous offrons une visibilité maximale, un accompagnement personnalisé et un engagement total jusqu'à la signature. Confiez-nous votre bien pour une vente rapide et au meilleur prix. Estimation offerte, confidentielle et sans engagement. Copropriété de 550 lots - dont 196 lots habitation. (Pas de procédure en cours). Charges annuelles : 3360 euros.
Voir plus

Référence: 17282
Bien en copropriété. Nombre de lots : 550. Charges de copropriété : 3360 €.
Honoraires à la charge du vendeur.
Barème des honoraires
DPE
A
B
C
D
E
F
G
GES
A
B
C
D
E
F
G

Prêt immobilier

Vous souhaitez connaître votre capacité d’emprunt et trouver le meilleur crédit immobilier ?
Réaliser une simulation gratuite

Appartement à COURBEVOIE
Appartement à COURBEVOIE
Appartement à COURBEVOIE
Appartement à COURBEVOIE
Appartement à COURBEVOIE
Appartement à COURBEVOIE
Appartement à COURBEVOIE
Appartement à COURBEVOIE
Appartement à COURBEVOIE
Appartement à COURBEVOIE
Appartement à COURBEVOIE
Ce site est protégé par reCAPTCHA la Politique de confidentialité et les Conditions d’utilisation de Google s’appliquent.
Obtenir un prêt immobilier au meilleur taux ?

En poursuivant votre navigation sans modifier vos paramètres, vous acceptez l'utilisation de cookies susceptibles de réaliser des statistiques de visite. Cliquez ici pour plus d'informations