Bénéficiez des services de nos partenaires locaux soigneusement sélectionnés
pour vous accompagner dans votre parcours d'achat immobilier

Sainte maxime - proche centre-ville :

— Sainte-Maxime 83120 —
1 060 000 €
270 m² / 903 m²
jardin

Nos partenaires locaux
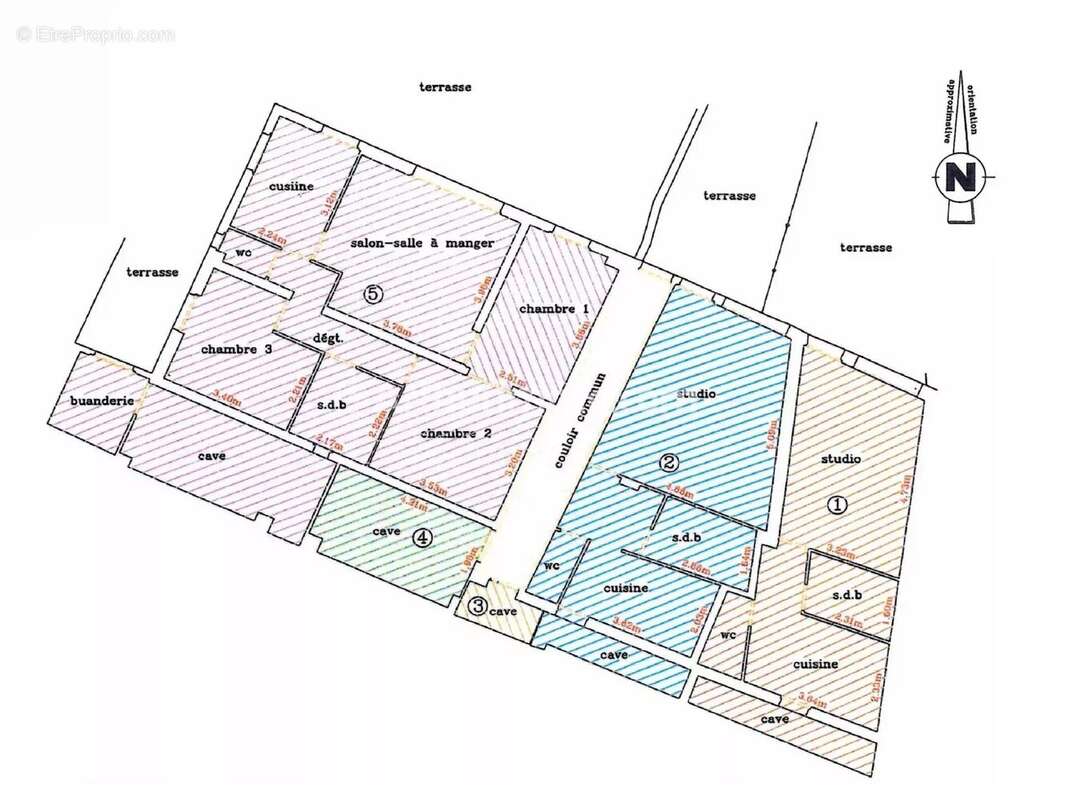
***Petite copropriété de 5 appartements***
D'une superficie totale de 270 m², édifiée sur un terrain de 903 m² composé de 3 parcelles.

Studio de 31 m² = 503 €/mois (Classé F)
Comprenant : une pièce-à-vivre, une cuisine, une salle de bains, WC, un cellier et une terrasse privative. Ainsi qu'une cave privative.

Studio de 36 m² = 530 €/mois (Classé E)
Comprenant : une pièce-à-vivre, une cuisine, une salle de bains, WC, un cellier et une terrasse privative. Ainsi qu'une cave privative.

Appartement de 65 m² = 950 €/mois(Classé E)
Comprenant : un séjour, une cuisine, 3 chambres, une salle de bains, WC, une buanderie et un jardin privatif. Ainsi qu'une grande cave privative.

Appartement de 61 m² = 850 €/mois (Classé E)
Comprenant au rez-de-chaussée : une séjour, une cuisine, un balcon et un jardin privatif.
Comprenant à l'étage : 2 chambres, une salle de bains.

Appartement de 55 m² = 830 €/mois (Classé E)
Comprenant : une entrée, un séjour avec cuisine américaine, 2 chambres, un cellier, une salle de bains, WC et une terrasse fermée.

Rentabilité totale de : 44 000 €/an

2 caves en sus !

***PRODUIT RARE SUR LE MARCHÉ***

« Les informations sur les risques auxquels ce bien est exposé sont disponibles sur le site Géorisques : www.georisques.gouv.fr ».
Voir plus

Référence: 86078308
DPE
A
B
C
D
E
F
G
GES
A
B
C
D
E
F
G

Prêt immobilier

Vous souhaitez connaître votre capacité d’emprunt et trouver le meilleur crédit immobilier ?
Réaliser une simulation gratuite

Appartement à SAINTE-MAXIME
Appartement à SAINTE-MAXIME
Appartement à SAINTE-MAXIME
Appartement à SAINTE-MAXIME
Appartement à SAINTE-MAXIME
Appartement à SAINTE-MAXIME
Appartement à SAINTE-MAXIME
Appartement à SAINTE-MAXIME
Appartement à SAINTE-MAXIME
Appartement à SAINTE-MAXIME
Appartement à SAINTE-MAXIME
Appartement à SAINTE-MAXIME
Ce site est protégé par reCAPTCHA la Politique de confidentialité et les Conditions d’utilisation de Google s’appliquent.
Obtenir un prêt immobilier au meilleur taux ?

En poursuivant votre navigation sans modifier vos paramètres, vous acceptez l'utilisation de cookies susceptibles de réaliser des statistiques de visite. Cliquez ici pour plus d'informations