Bénéficiez des services de nos partenaires locaux soigneusement sélectionnés
pour vous accompagner dans votre parcours d'achat immobilier

2 pièces nice valrose

— Nice 06000 —
230 000 €
48 m²
2 pièces
ascenseur

Nos partenaires locaux
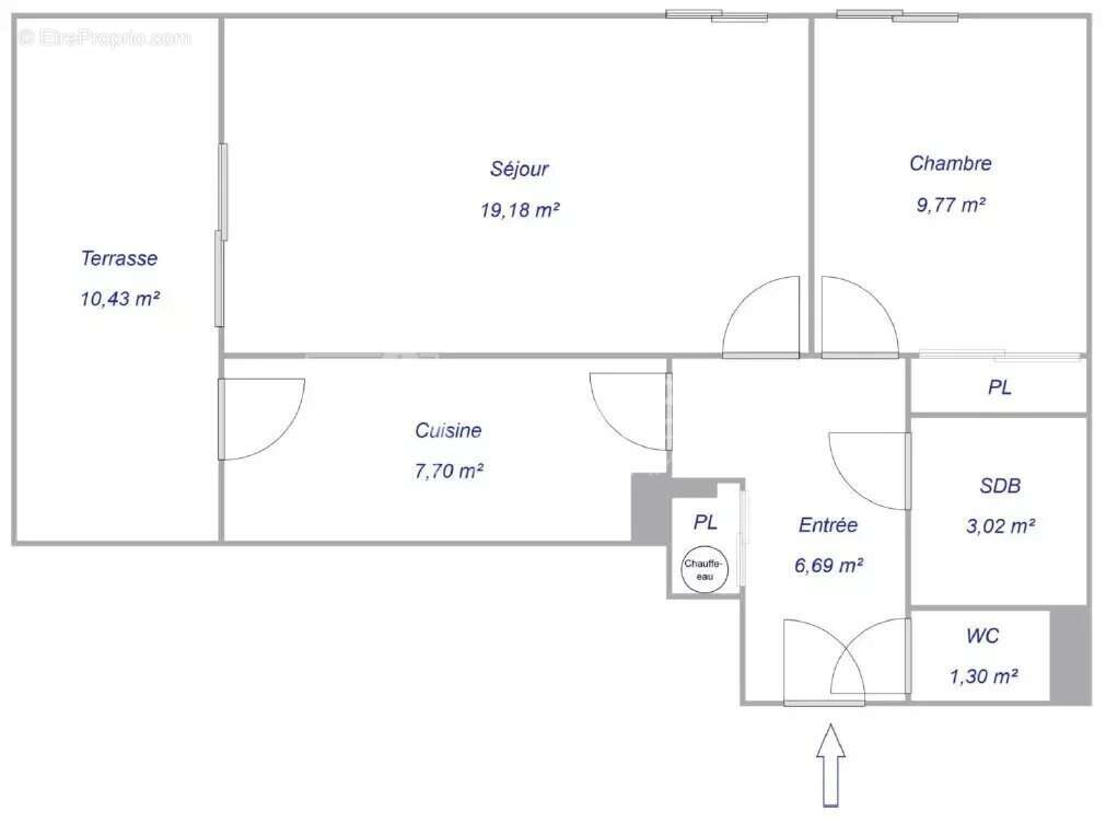
EXCLUSIVITE - NICE VALROSE appartement 2 Pièces de 47,66 m² Situé dans un immeuble construit en 1990, offrant un cadre de vie idéal au sein d'un environnement calme et recherché.
Appartement exposé principalement Ouest, il offre une belle luminosité et une vue dégagée sans vis a vis.
Le séjour est confortable et ouvre sur une belle terrasse de 10,43 m2. La cuisine indépendante est très facilement transformable en cuisine type américaine apportant un vrai confort d’usage au quotidien. La chambre de dispose d’un placard intégré.
L’appartement dans son ensemble présente un bon état d'entretien.
Vendu avec une cave en sous-sol.
Possibilité d'acquérir un garage en sus. 30,000,00€
Un appartement parfaitement situé, idéal pour une résidence principale ou un investissement.
Copropriété fermée et sécurisée avec jardins et piscine.
Charges mensuelles 195,66€
Copropriété de 60 lots principaux.
Les informations sur les risques auxquels ce bien est exposé sont disponibles sur le site Géorisques : georisques.gouv.fr
PRIX : 230.000,00€
Voir plus

Référence: 86509474
DPE
A
B
C
D
E
F
G
GES
A
B
C
D
E
F
G

Prêt immobilier

Vous souhaitez connaître votre capacité d’emprunt et trouver le meilleur crédit immobilier ?
Réaliser une simulation gratuite

Appartement à NICE
Appartement à NICE
Appartement à NICE
Appartement à NICE
Appartement à NICE
Appartement à NICE
Appartement à NICE
Appartement à NICE
Appartement à NICE
Appartement à NICE
Appartement à NICE
Appartement à NICE
Appartement à NICE
Appartement à NICE
Ce site est protégé par reCAPTCHA la Politique de confidentialité et les Conditions d’utilisation de Google s’appliquent.
Obtenir un prêt immobilier au meilleur taux ?

En poursuivant votre navigation sans modifier vos paramètres, vous acceptez l'utilisation de cookies susceptibles de réaliser des statistiques de visite. Cliquez ici pour plus d'informations