Bénéficiez des services de nos partenaires locaux soigneusement sélectionnés
pour vous accompagner dans votre parcours d'achat immobilier

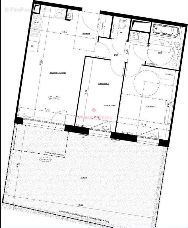
Appartement 59m² à tourcoing

— Tourcoing 59200 —
187 000 €
59 m² / 44 m²
3 pièces
parkingaccès handicapé

Nos partenaires locaux
Le quartier autour de cette adresse à Tourcoing présente un bon équilibre entre accessibilité, services et cadre de vie agréable. À moins de 10 minutes à pied, on trouve le métro qui relie rapidement au centre de Lille, ce qui facilite les trajets quotidiens pour le travail, les études ou les loisirs. Commerces de proximité, écoles (de la maternelle au lycée), supermarché, ainsi que des équipements culturels et sportifs sont proches, et pour les moments de détente, un grand parc public offre des espaces verts pour les promenades ou les activités en famille — une combinaison intéressante entre confort urbain et calme.

Le projet immobilier adopte une architecture harmonieuse : façades en briques traditionnelles du Nord, toitures variées, lucarnes en bardage bois et volumes bien proportionnés donnent à l’ensemble un caractère à la fois moderne et respectueux du style local. L’ensemble du site est sécurisé, clôturé, avec un jardin d’agrément commun d’environ 1 200 m² planté d’arbres et de végétation, ce qui offre un cadre verdoyant et paisible au cœur de la résidence. Des aménagements comme un local à vélos sont pensés pour favoriser les mobilités douces.

Les logements, du studio (ou 2 pièces) aux 3 pièces évolutifs, ainsi que des maisons 4 pièces avec jardins privatifs, sont conçus pour s’adapter à différents profils : célibataires, couples, jeunes familles ou personnes en quête de confort et de tranquillité. Chaque logement bénéficie d’un espace extérieur (balcon, terrasse ou jardin), d’un stationnement sécurisé, et de prestations contemporaines : sols faciles à vivre, volets roulants, isolation, confort thermique — autant d’atouts pour un quotidien pratique et serein. C’est un choix intéressant pour habiter ou investir dans une zone proche de Lille, tout en profitant d’un cadre résidentiel agréable. Ce bien vous est présenté par David Mahieux, votre conseiller indépendant Dr House Immo.
Voir plus

Référence: DM3004DHI2834
Bien en copropriété. Nombre de lots : 46.
Honoraires à la charge du vendeur.
Barème des honoraires
DPE
A
B
C
D
E
F
G
GES
A
B
C
D
E
F
G

Prêt immobilier

Vous souhaitez connaître votre capacité d’emprunt et trouver le meilleur crédit immobilier ?
Réaliser une simulation gratuite

Appartement à TOURCOING
Appartement à TOURCOING
Appartement à TOURCOING
Appartement à TOURCOING
Ce site est protégé par reCAPTCHA la Politique de confidentialité et les Conditions d’utilisation de Google s’appliquent.
Obtenir un prêt immobilier au meilleur taux ?

En poursuivant votre navigation sans modifier vos paramètres, vous acceptez l'utilisation de cookies susceptibles de réaliser des statistiques de visite. Cliquez ici pour plus d'informations