Maison à vendre - saint-pierre

— Le Tampon 97432 —
468 000 €
109 m² / 481 m²
4 pièces
jardinpiscine

MAISON À VENDRE Saint-Pierre, quartier de la Ligne des Bambous
Le Cabinet Lemerle & Rivière vous présente une villa contemporaine en cours de construction, avec toutes les garanties décennales nécessaires. Nichée au calme d’une impasse dans le secteur très prisé de la Ligne des Bambous, elle offre un cadre de vie paisible.
 
DÉTAILS DU BIEN EN VENTE à La Ligne des Bambous, Saint-Pierre :
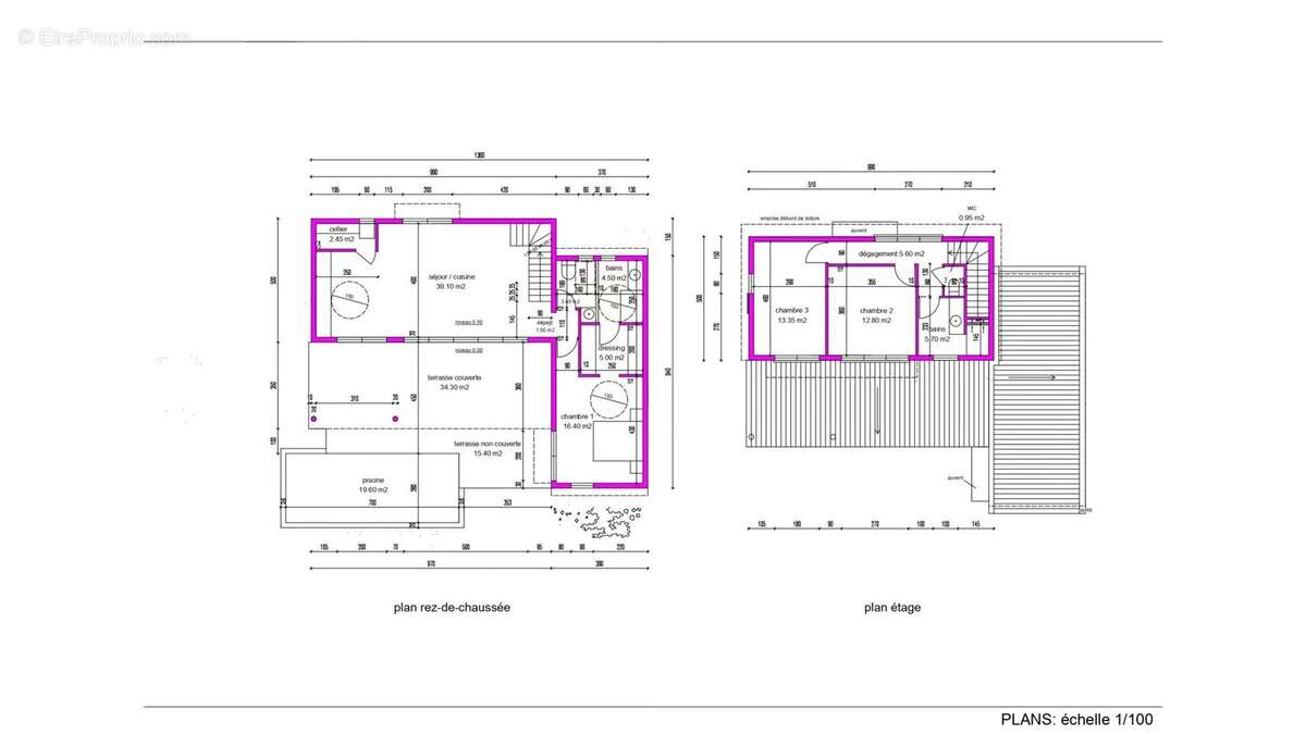
Au rez-de-chaussée, découvrez une belle pièce de vie de 39 m², alliant cuisine ouverte, séjour chaleureux et salle à manger conviviale. Cet espace s'ouvre naturellement sur deux terrasses : une première, couverte, de 34 m², idéale pour les repas ou les après-midis ombragés, et une seconde de 15 m², parfaite pour profiter du soleil au bord de la piscine.
 
Côté nuit : la suite parentale située au rez-de-chaussée offre un vrai cocon d'intimité, avec une chambre spacieuse de plus de 16 m², un dressing, une salle d'eau privative et des sanitaires indépendants.
À l'étage, deux chambres supplémentaires, une salle d'eau et un WC séparé viennent compléter ce bien, idéal pour accueillir enfants ou invités.
 
Le tout est édifié sur une parcelle de 481 m², laissant place à un beau jardin propice aux loisirs et à la détente.
 
Les atouts qui font la différence :
- Construction neuve couverte par les garanties légales : décennale
- Personnalisation possible des finitions (matériaux, couleurs, aménagements)
- Livraison prévue au 1er trimestre 2026
- Emplacement calme, dans un secteur recherché et verdoyant

Les informations sur les risques auxquels ce bien est exposé sont disponibles sur le site Géorisques : www.georisques.gouv.fr

L'Avis de Muriel, votre conseillère en immobilier :
Une maison pensée pour la vie en famille et le plaisir de recevoir. Confort moderne et espaces extérieurs généreux pour une vie douce et équilibrée, au calme d'une impasse.

LES INFOS CONTACT :
Prix : 468.000 , honoraires charge vendeur
Réf : MPR3372
Négociateur : Muriel PAYET-RÉGENT : [Coordonnées masquées]
Agent commercial sous le N° RSAC 934 502 410 à Saint Pierre
Annonce rédigée sous la responsabilité éditoriale de l'agent.
  
***
Cette annonce vous est proposée par l'agence immobilière : LEMERLE & RIVIERE à ST PIERRE REUNION.
Estimation de votre bien immobilier à ST-PIERRE (97410) au [Coordonnées masquées].
LEMERLE & RIVIERE à ST-PIERRE REUNION, diffuse dans l'intérêt de ses clients, acheteurs et vendeurs, des centaines d'annonces immobilières afin de faciliter l'achat, la vente et la location de votre maison/ appartement/ terrain.
EN BREF : Faites-nous confiance pour acheter, vendre ou louer un bien immobilier à ST-PIERRE (97410). 
A bientôt !
Nos tarifs : http://www.lemerle-riviere.re/honoraires.pdf
 
Voir plus

Référence: MPR3372
Barème des honoraires

Prêt immobilier

Vous souhaitez connaître votre capacité d’emprunt et trouver le meilleur crédit immobilier ?
Réaliser une simulation gratuite

Maison à LE TAMPON
Maison à LE TAMPON
Maison à LE TAMPON
Ce site est protégé par reCAPTCHA la Politique de confidentialité et les Conditions d’utilisation de Google s’appliquent.
Obtenir un prêt immobilier au meilleur taux ?

En poursuivant votre navigation sans modifier vos paramètres, vous acceptez l'utilisation de cookies susceptibles de réaliser des statistiques de visite. Cliquez ici pour plus d'informations